← Hart District Council

Status

Registered House extension
Received
Last month
New homes
0

Full proposal

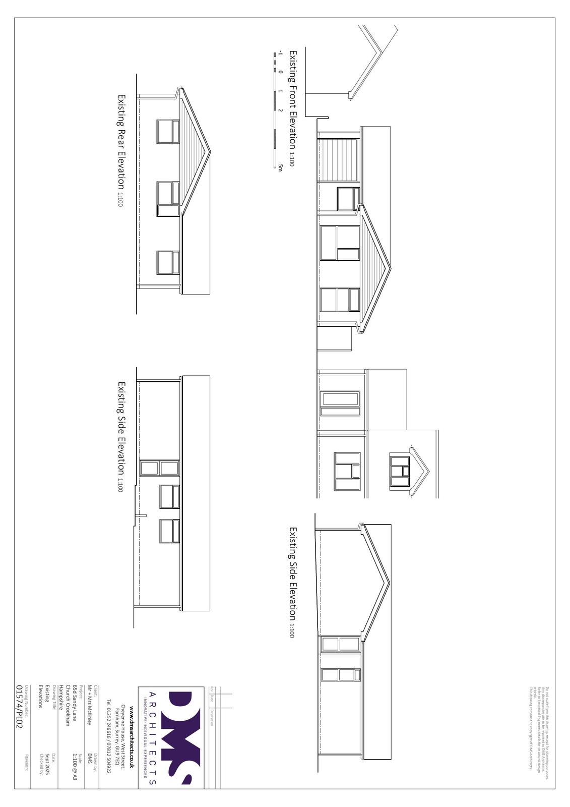
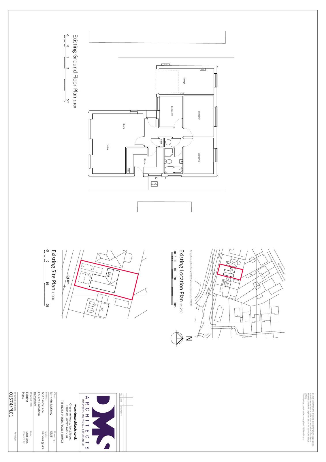
Single storey rear extension and partial conversion of garage, repositioning of side access door and reduction in size of front windows (proposed)

Have your say

Your comment matters. Councils must consider every representation that raises material planning considerations.

Write a comment