← Hart District Council

Status

Registered House extension
Received
Last month
New homes
0

Full proposal

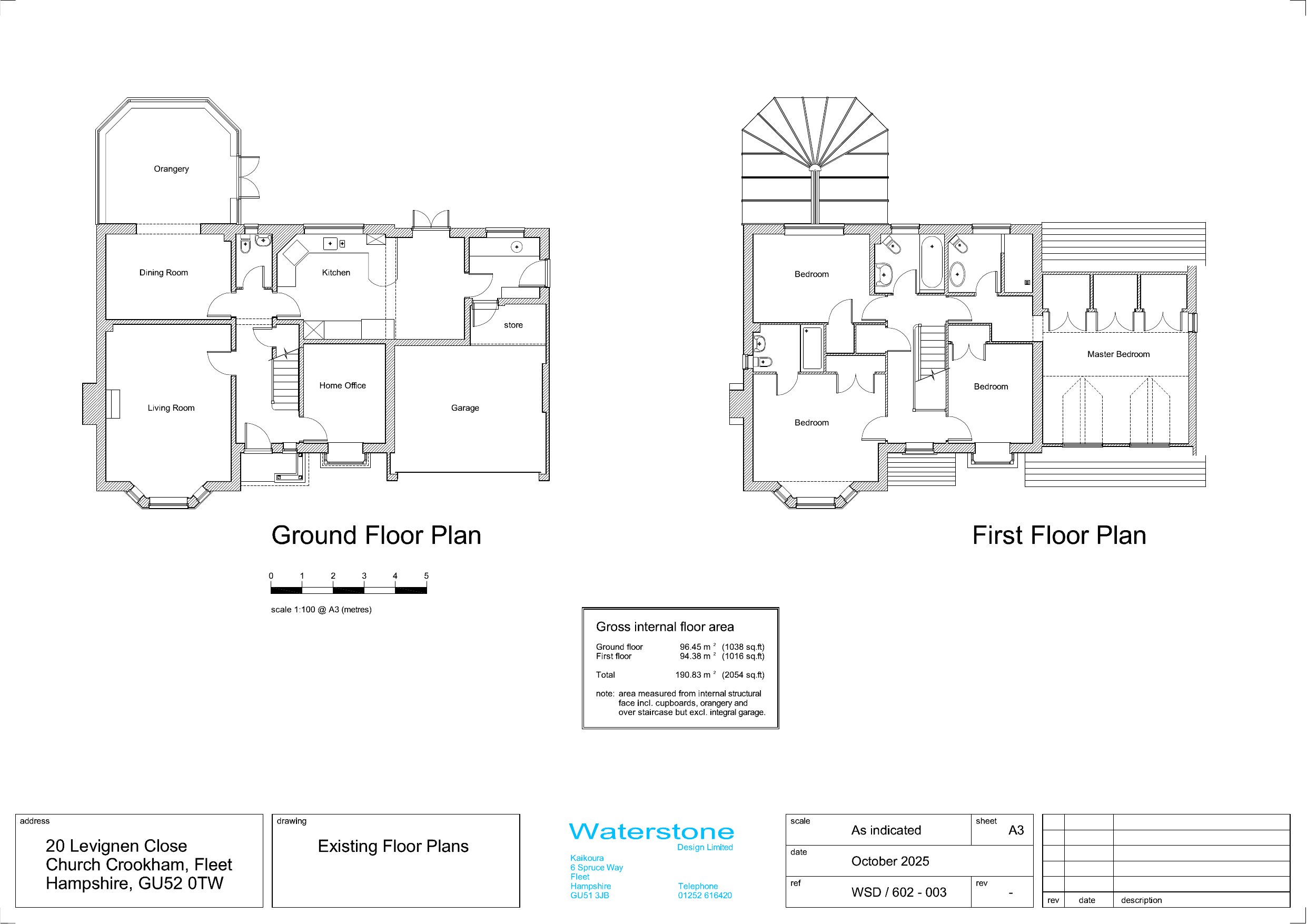
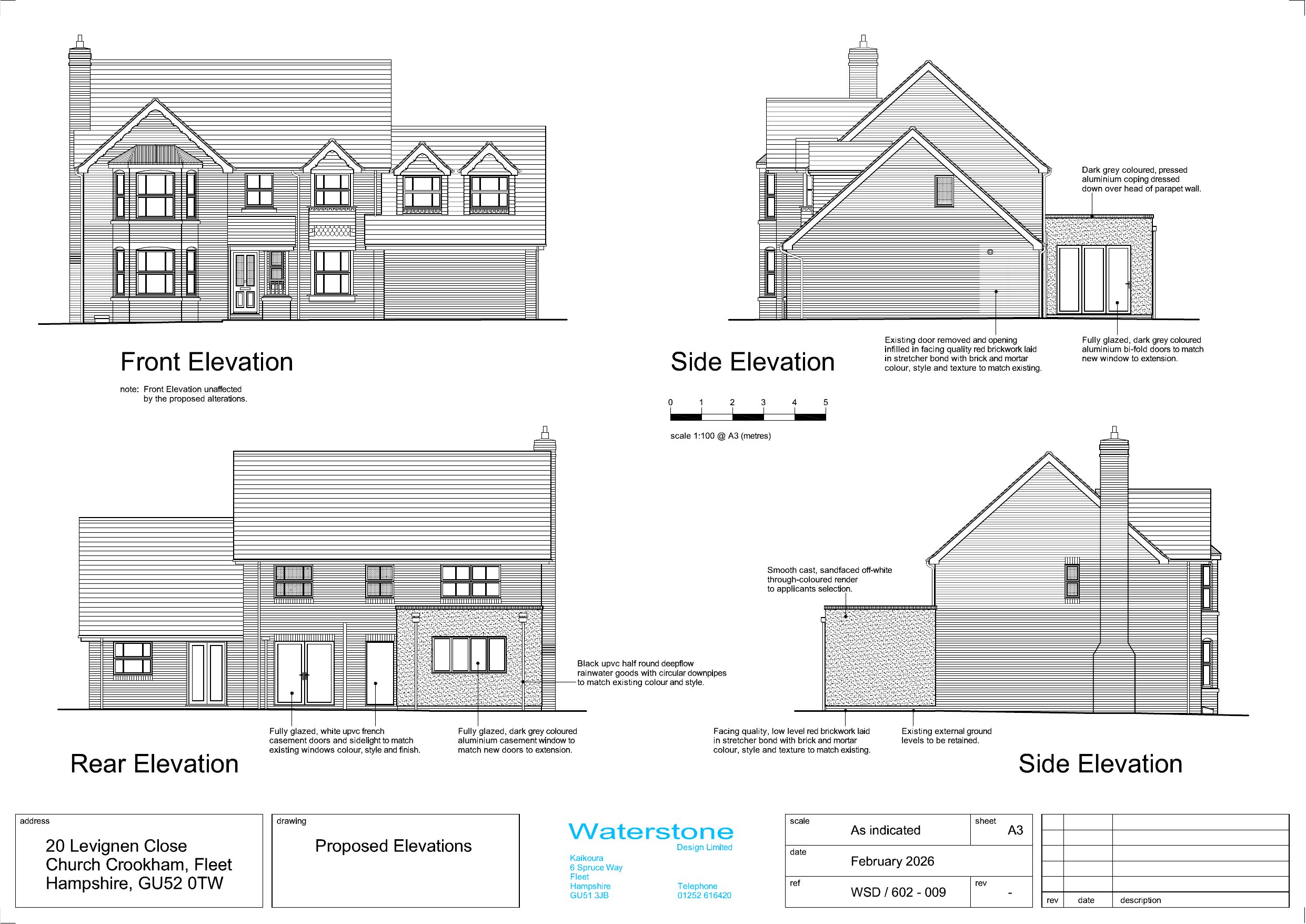
Demolition of orangery and erection of a single storey rear extension and partial garage conversion to form additional habitable accommodation

Documents

Tree Survey / Arboricultural Assessment
Archived · Original link
Application Form
Archived · Original link
Bat Survey
Archived · Original link
Flood Risk Assessment
Archived · Original link
Correspondence
Archived · Original link
Correspondence
Archived · Original link
Plans
Archived · Original link

Have your say

Your comment matters. Councils must consider every representation that raises material planning considerations.

Write a comment