← Hart District Council

Status

Registered House extension
Received
Last month
New homes
0

Full proposal

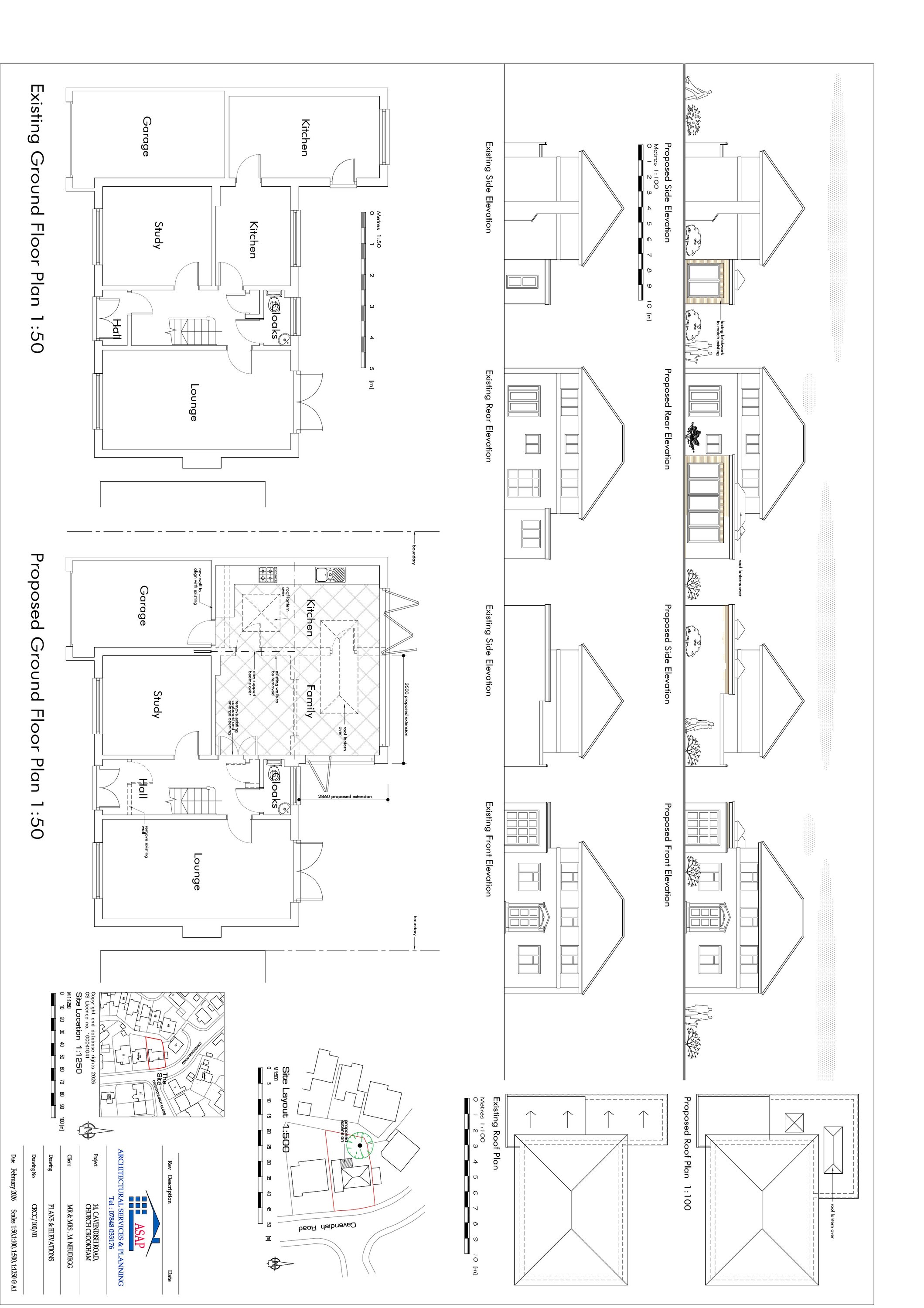
Erection of a single storey rear extension with flat roof with roof lanterns

Documents

Application Form
Archived · Original link
Plans
Archived · Original link
Correspondence
Archived · Original link
Tree Survey / Arboricultural Assessment
Archived · Original link

Have your say

Your comment matters. Councils must consider every representation that raises material planning considerations.

Write a comment