← Hart District Council

Status

Registered House extension
Received
Last month
New homes
0

Full proposal

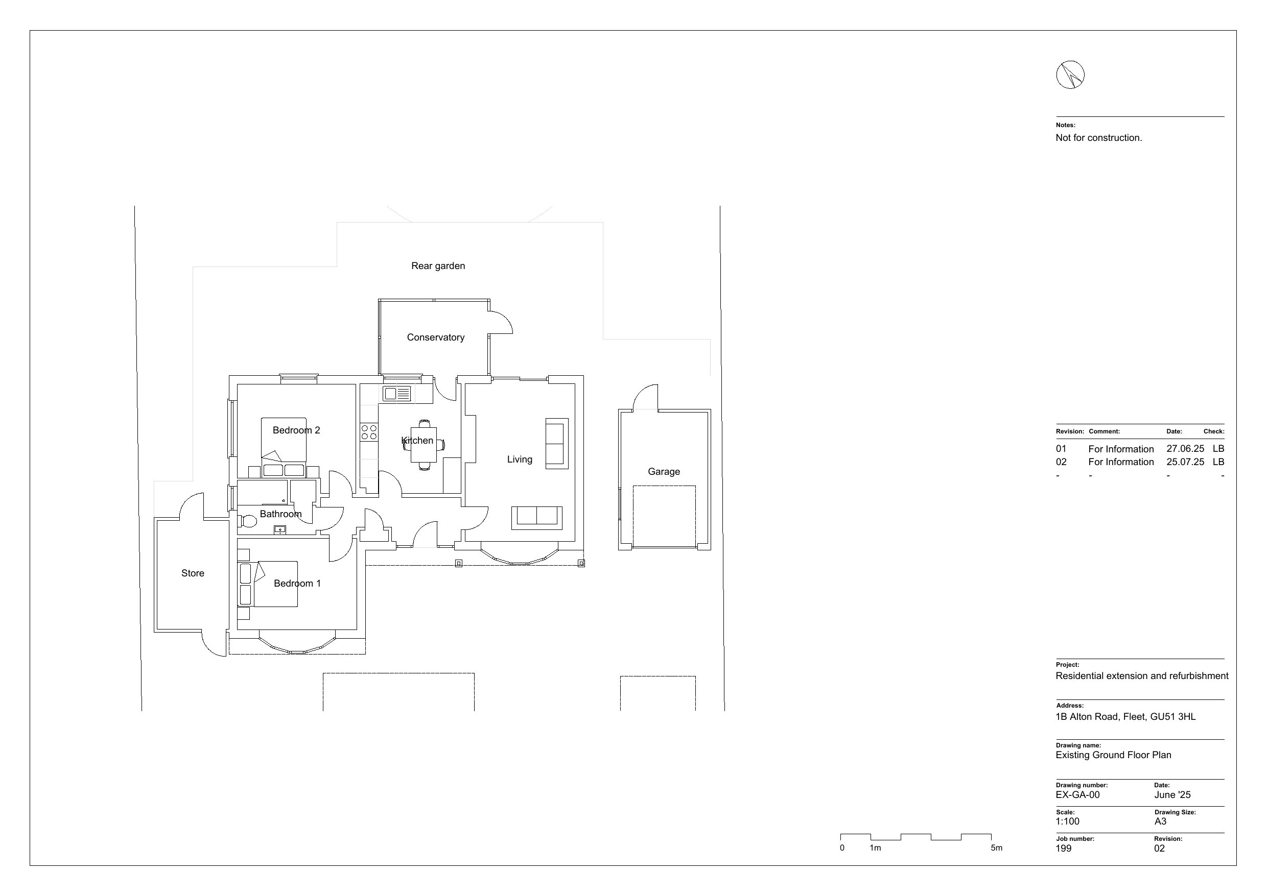
Erection of single storey front, side and rear extensions, raising the roof, erection of a dormer window to the rear and insertion of rooflights, to facilitate the conversion of the loft to habitable accommodation, and other alterations.

Documents

Correspondence
Archived · Original link

Have your say

Your comment matters. Councils must consider every representation that raises material planning considerations.

Write a comment