← Hart District Council

Status

Registered Change of use
Received
Last month
New homes
0

Full proposal

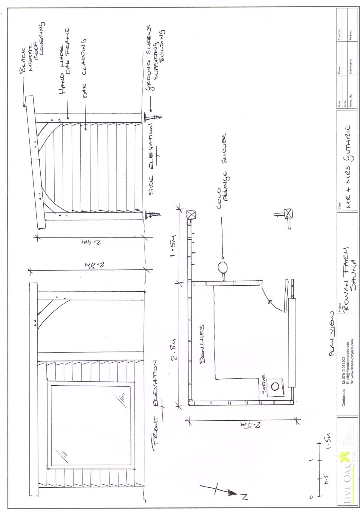
Change of use of land from agricultural to residential and installation of a home use sauna.

Documents

Application Form
Archived · Original link
Design and Access Statement
Archived · Original link
Location Plan
Archived · Original link
Correspondence
Archived · Original link
Plans
Archived · Original link
Plans
Archived · Original link

Have your say

Your comment matters. Councils must consider every representation that raises material planning considerations.

Write a comment