← Hart District Council

Status

Registered House extension
Received
Last month
New homes
0

Full proposal

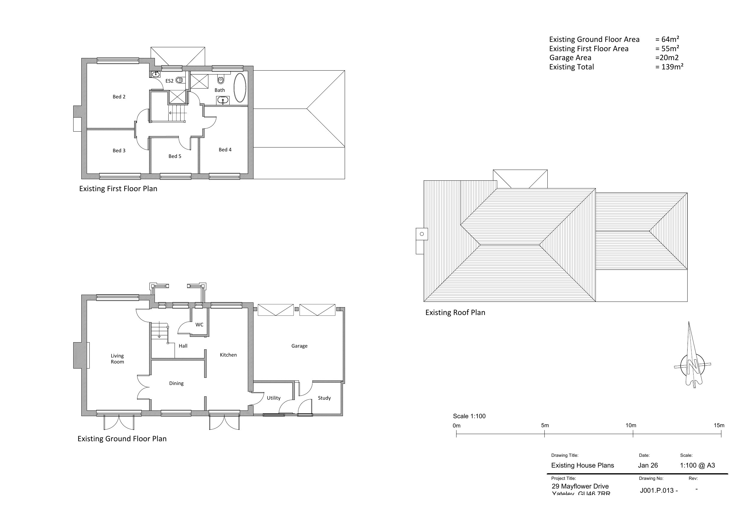
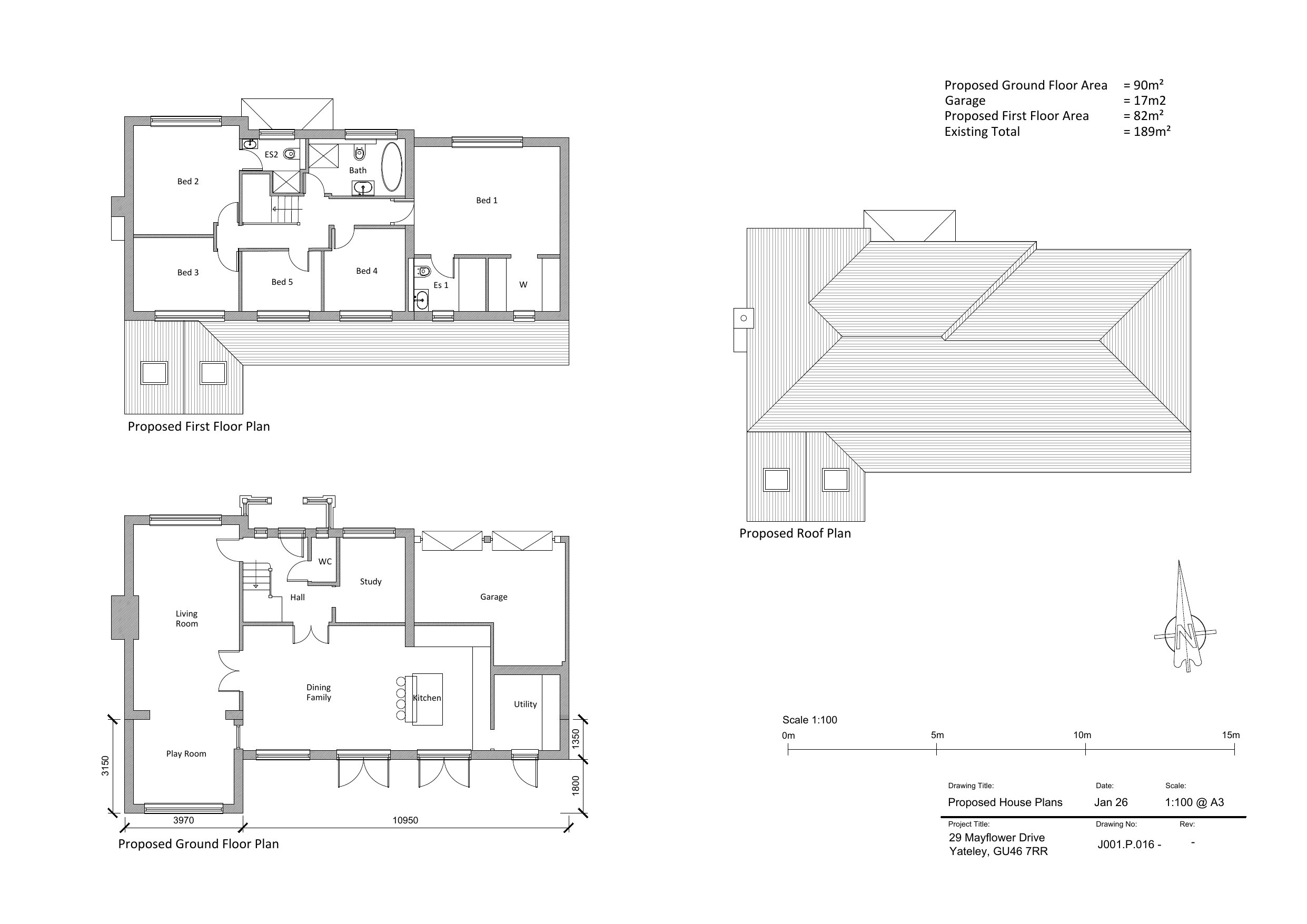
Erection of a first floor side extension over existing garage, partial garage conversion and single storey rear extension

Documents

Consultee Comment
Archived · Original link
Application Form
Archived · Original link
Block Plan
Archived · Original link
Location Plan
Archived · Original link
Support Comment
Archived · Original link
Correspondence
Archived · Original link
Block Plan
Archived · Original link

Have your say

Your comment matters. Councils must consider every representation that raises material planning considerations.

Write a comment