← Hastings Borough Council

Status

Registered Change of use
Received
10 Dec 2025
New homes
0

Full proposal

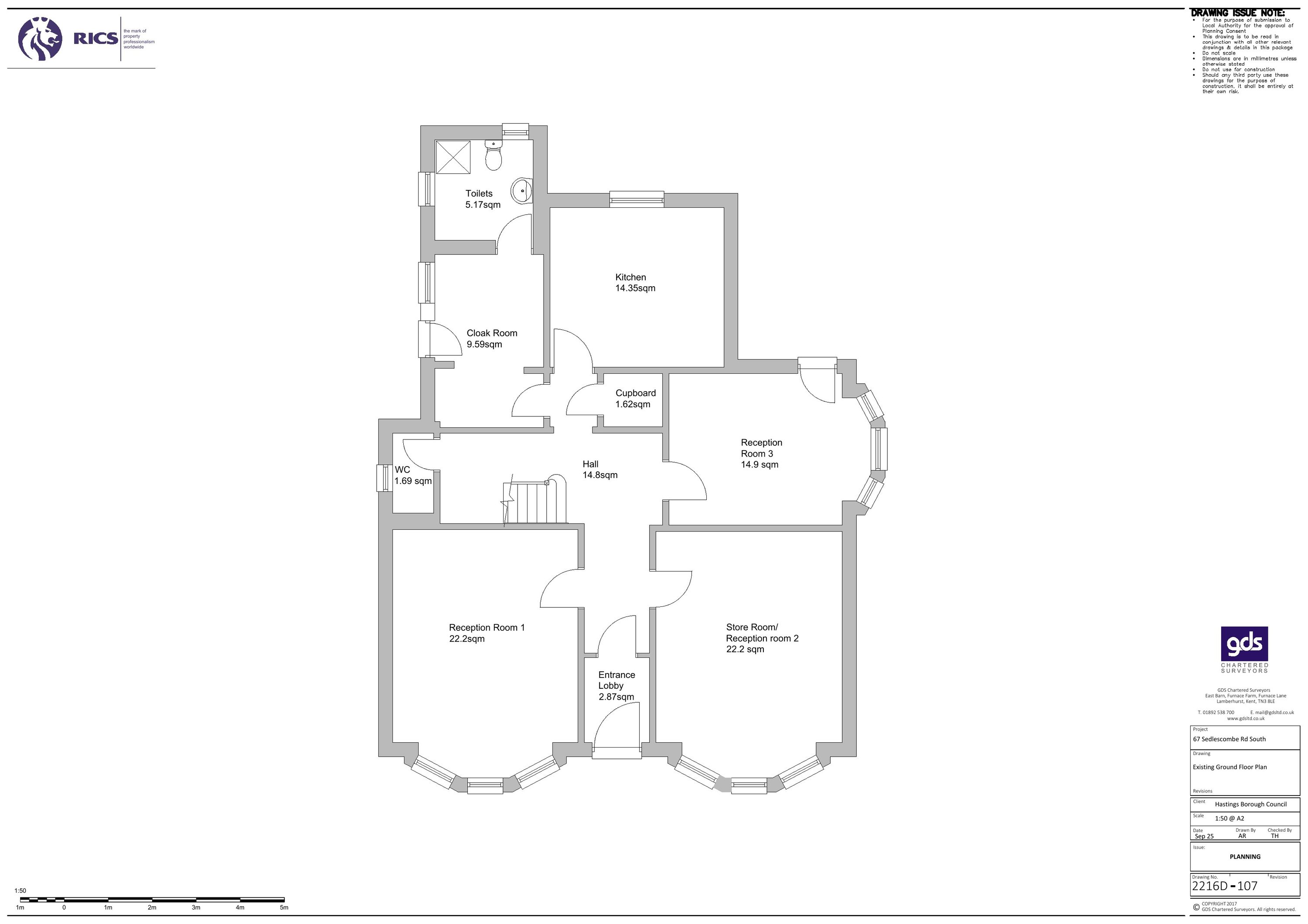
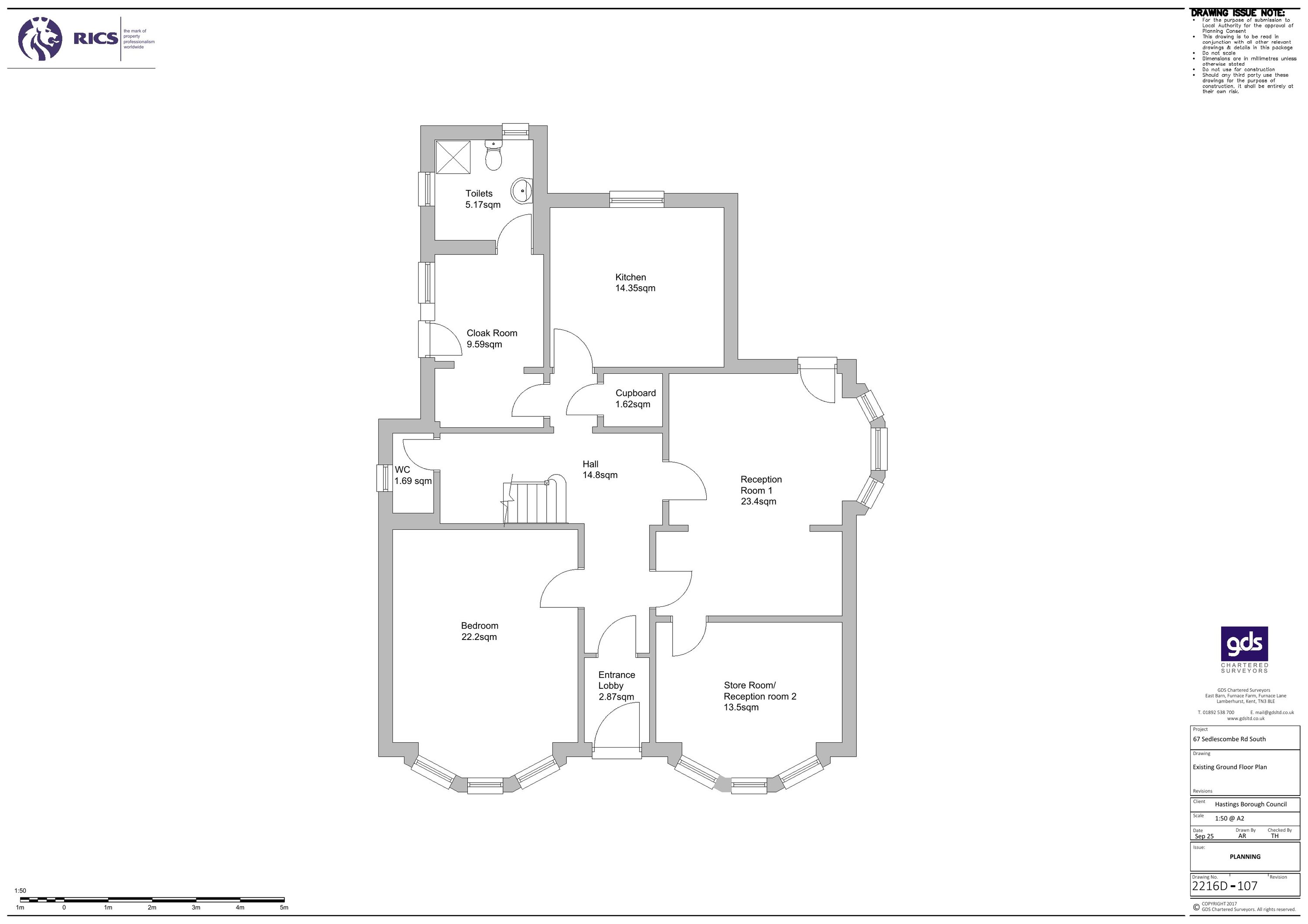
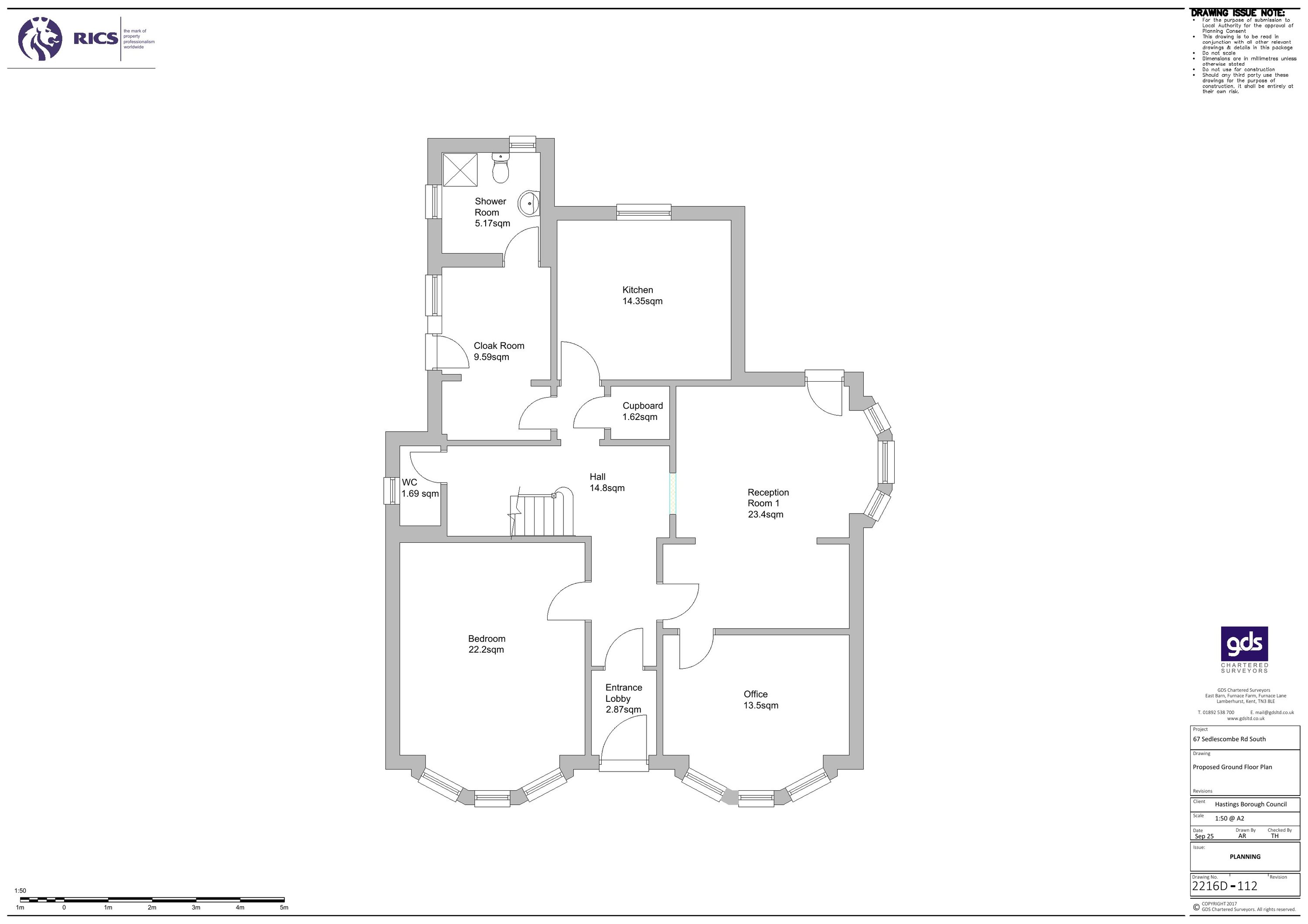
Change of use of ground floor storage/reception room (Sui Generis) to an office (Class E(g)(i)), and reception room changed to an additional bedroom within a House in Multiple Occupation (HMO) (Sui Generis), increasing number of bedrooms from 6 to 7 (retrospective) (amended description)

Documents

Application Form
Application Form
Not yet archived · Original link
Superseded Document
Archived · Original link
Superseded Document
Archived · Original link
Amended Plans
Archived · Original link
Superseded Drawing
Archived · Original link
Superseded Drawing
Archived · Original link
Amended Plans
Archived · Original link

Have your say

Your comment matters. Councils must consider every representation that raises material planning considerations.

Write a comment