← Hastings Borough Council

Status

Registered House extension
Received
19 Dec 2025
New homes
0

Full proposal

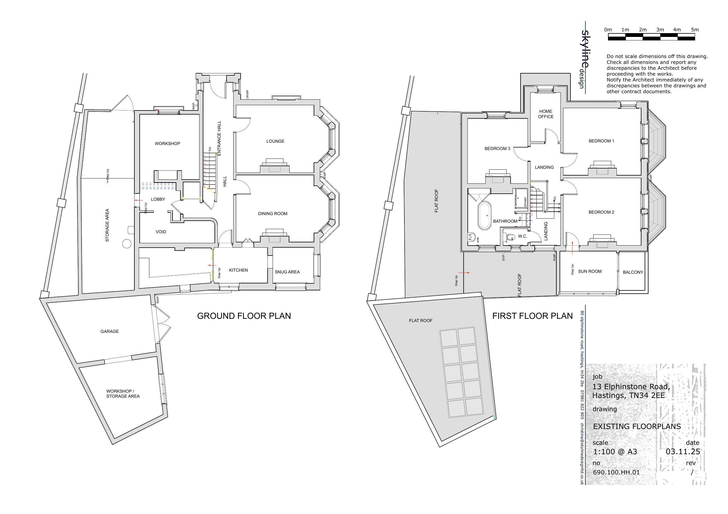
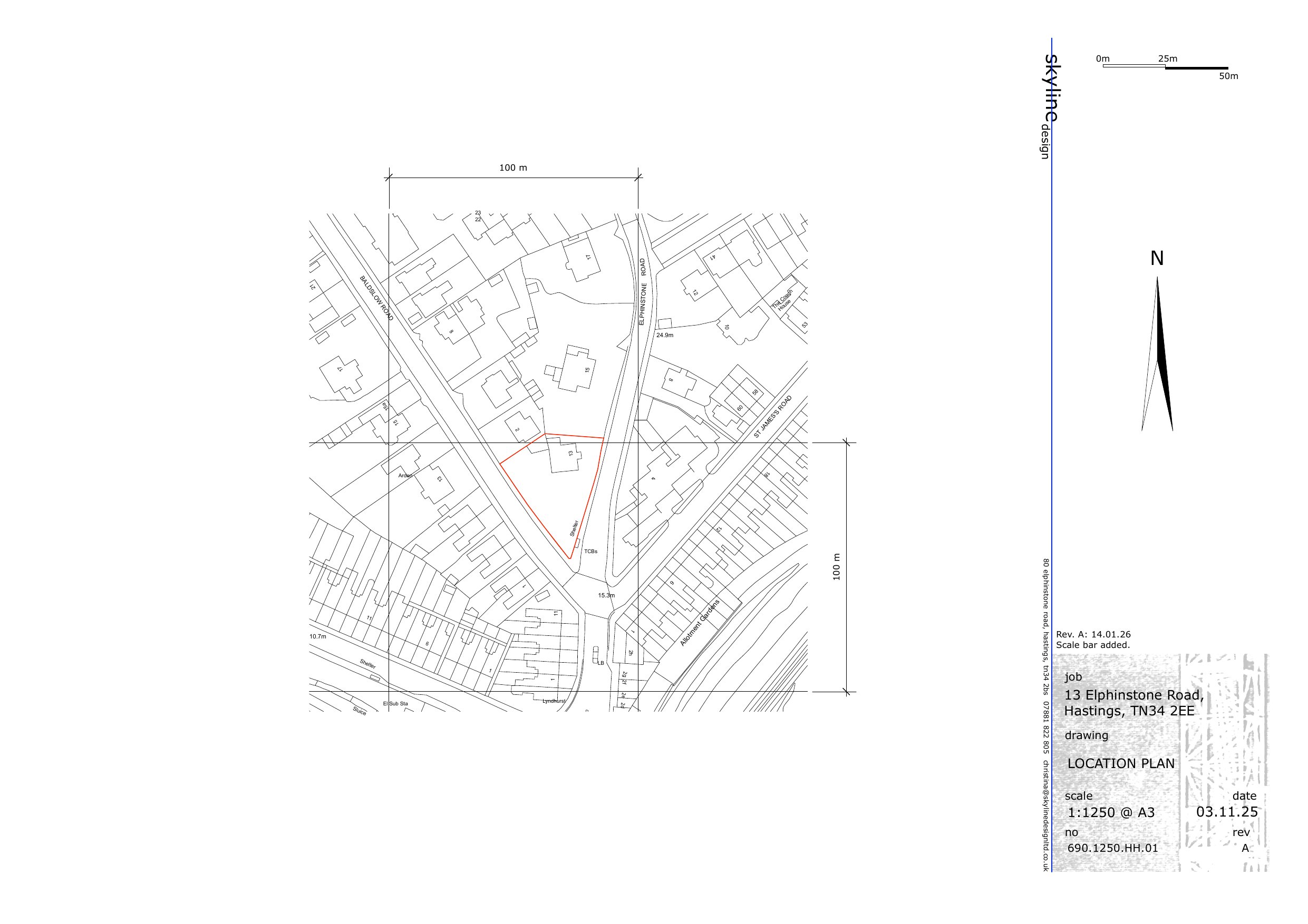
Single storey extension to west elevation following demolition of existing additions. New and altered openings. Alterations to land levels and re-configuration of driveway and garden, and single storey addition to north elevation for air source heat pump

Have your say

Your comment matters. Councils must consider every representation that raises material planning considerations.

Write a comment