← Hastings Borough Council

Status

Registered House extension
Received
16 Jan 2026
New homes
0

Full proposal

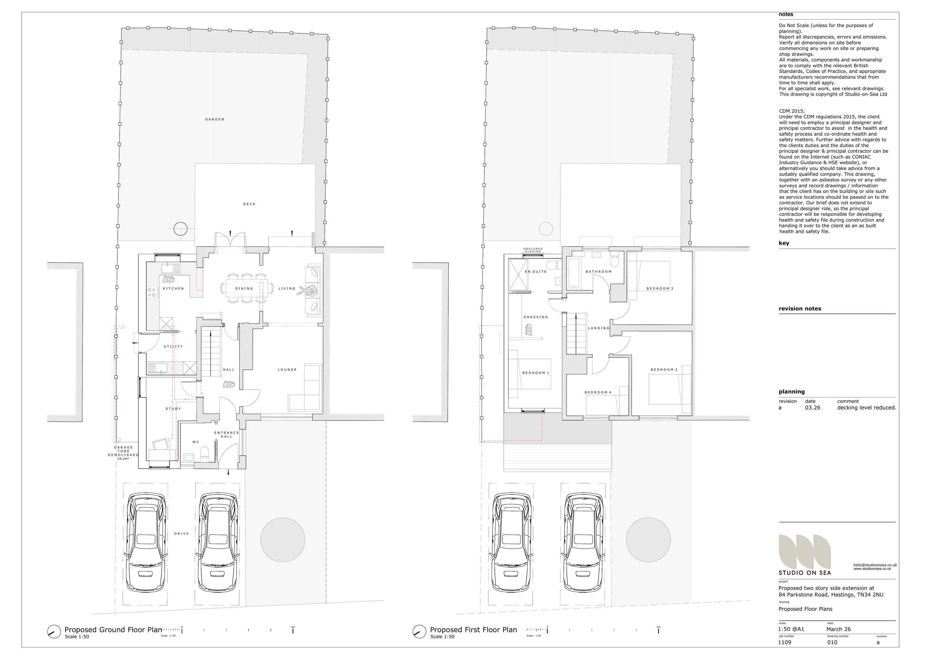
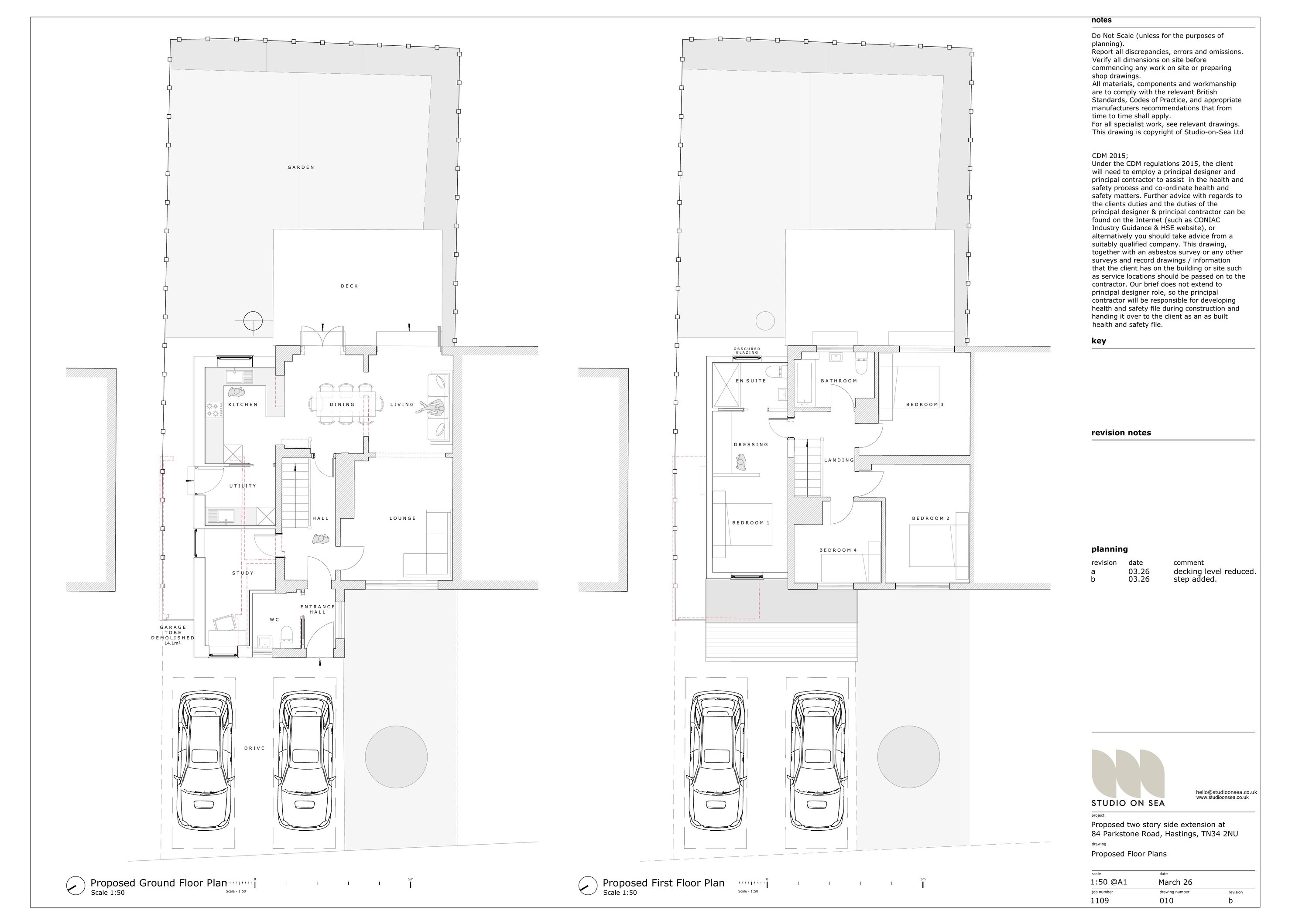
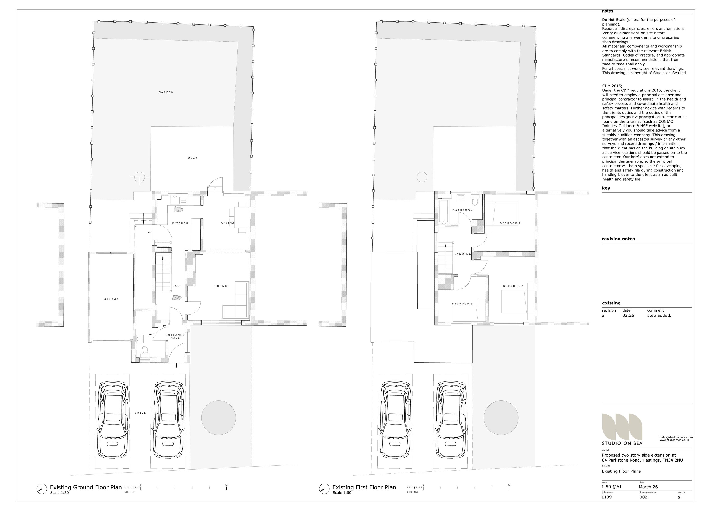
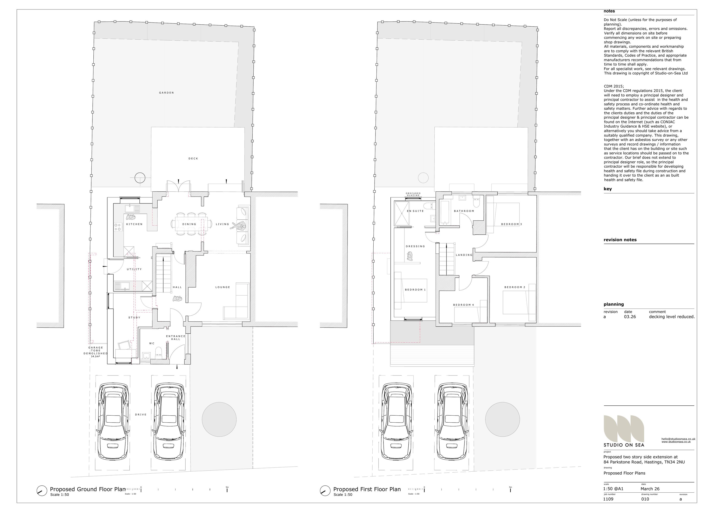
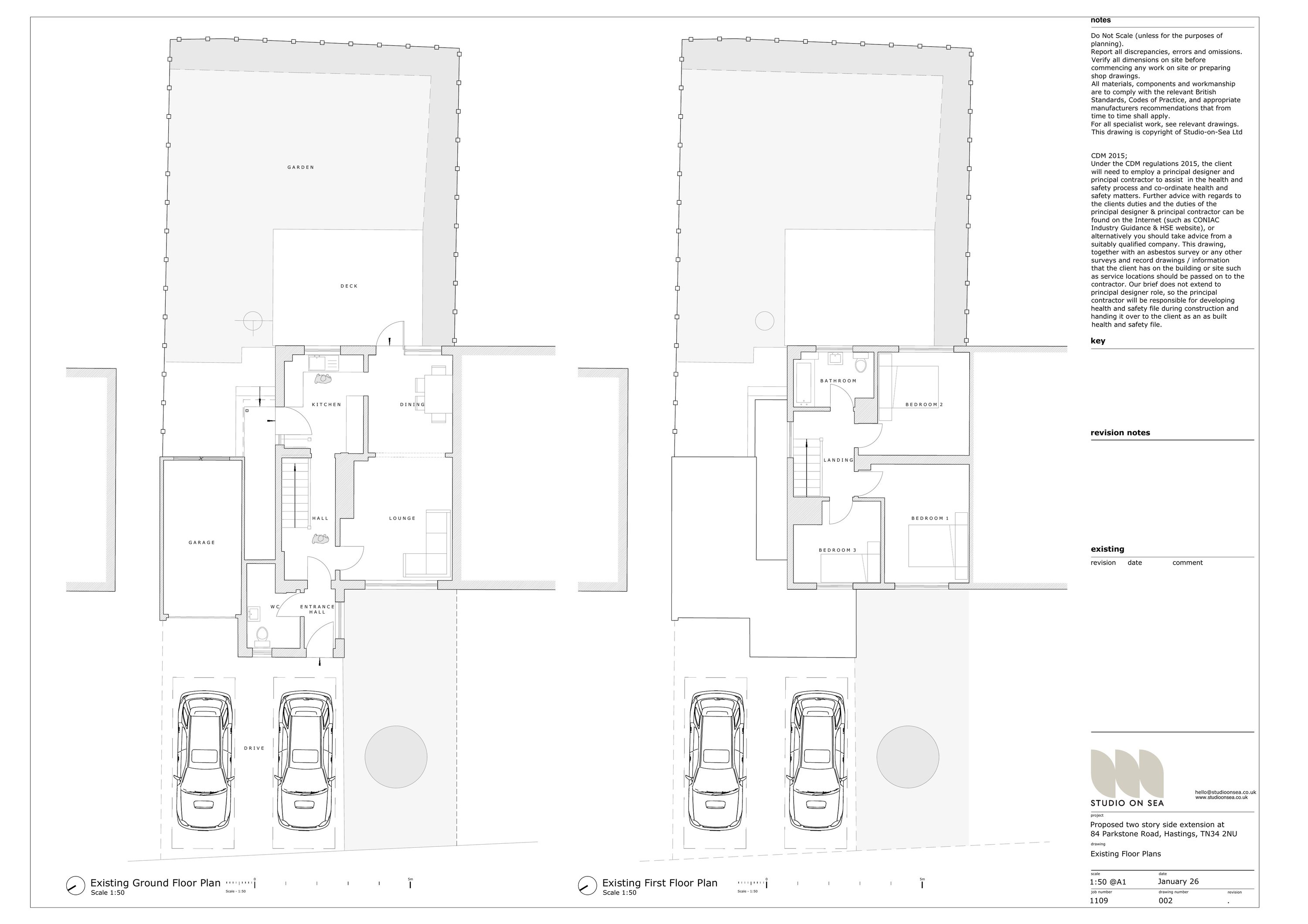
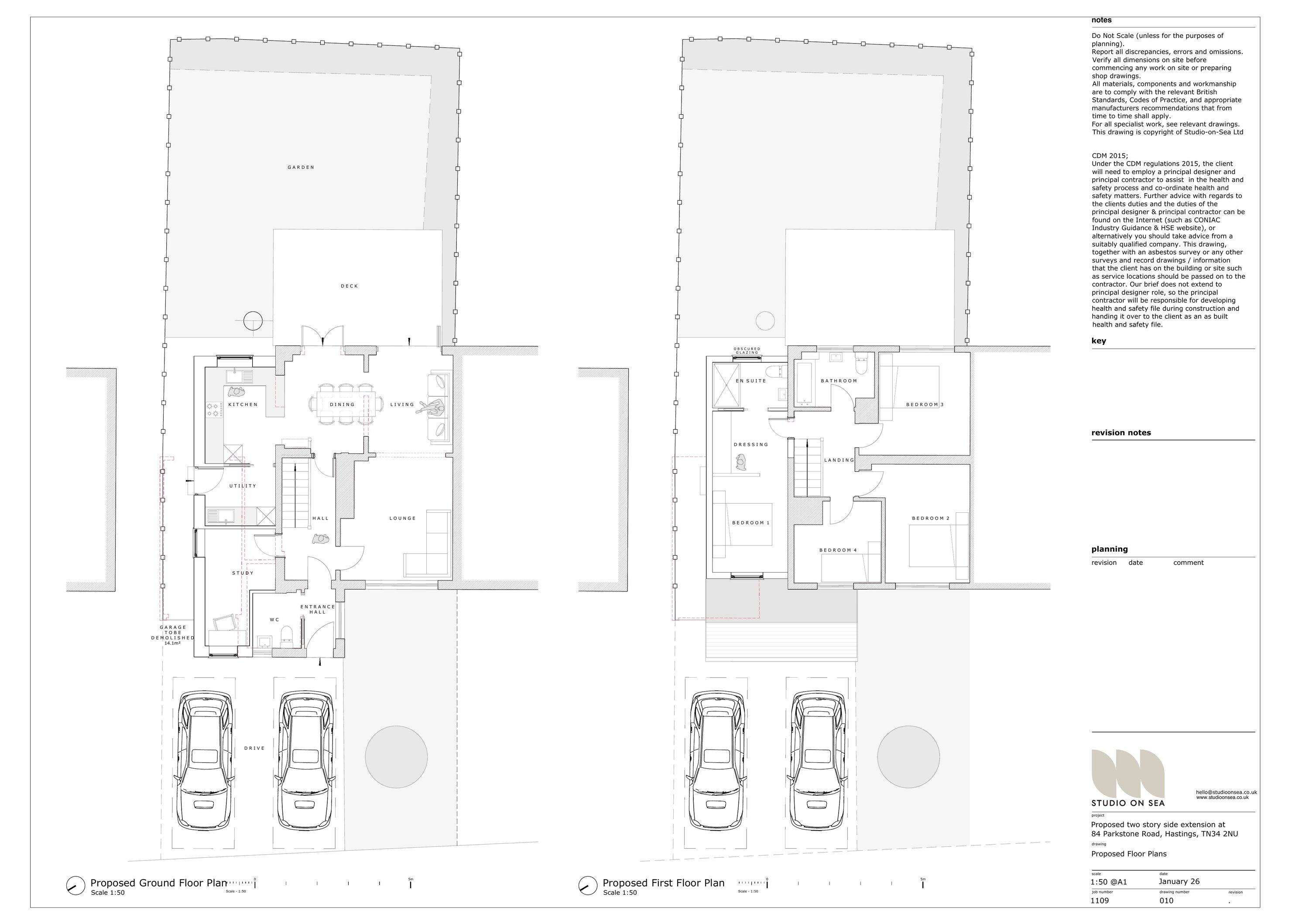
Proposed demolition of existing single storey garage with replacement two storey side extension & single storey infill extension incorporating new roof over existing single storey front addition, alterations to openings and alterations to the rear raised decking area

Documents

Superseded Drawing
Archived · Original link
Superseded Drawing
Archived · Original link
Amended Plans
Archived · Original link
Superseded Drawing
Archived · Original link
Amended Plans
Archived · Original link
Superseded Drawing
Archived · Original link
Amended Plans
Archived · Original link
Superseded Drawing
Archived · Original link
Superseded Drawing
Archived · Original link
Superseded Drawing
Archived · Original link
Superseded Drawing
Archived · Original link
Amended Plans
Archived · Original link
Superseded Drawing
Archived · Original link
Superseded Drawing
Archived · Original link
Superseded Drawing
Archived · Original link
Superseded Drawing
Archived · Original link
Amended Plans
Archived · Original link

Have your say

Your comment matters. Councils must consider every representation that raises material planning considerations.

Write a comment