← Hastings Borough Council

Status

Registered Change of use
Received
Last month
New homes
0

Full proposal

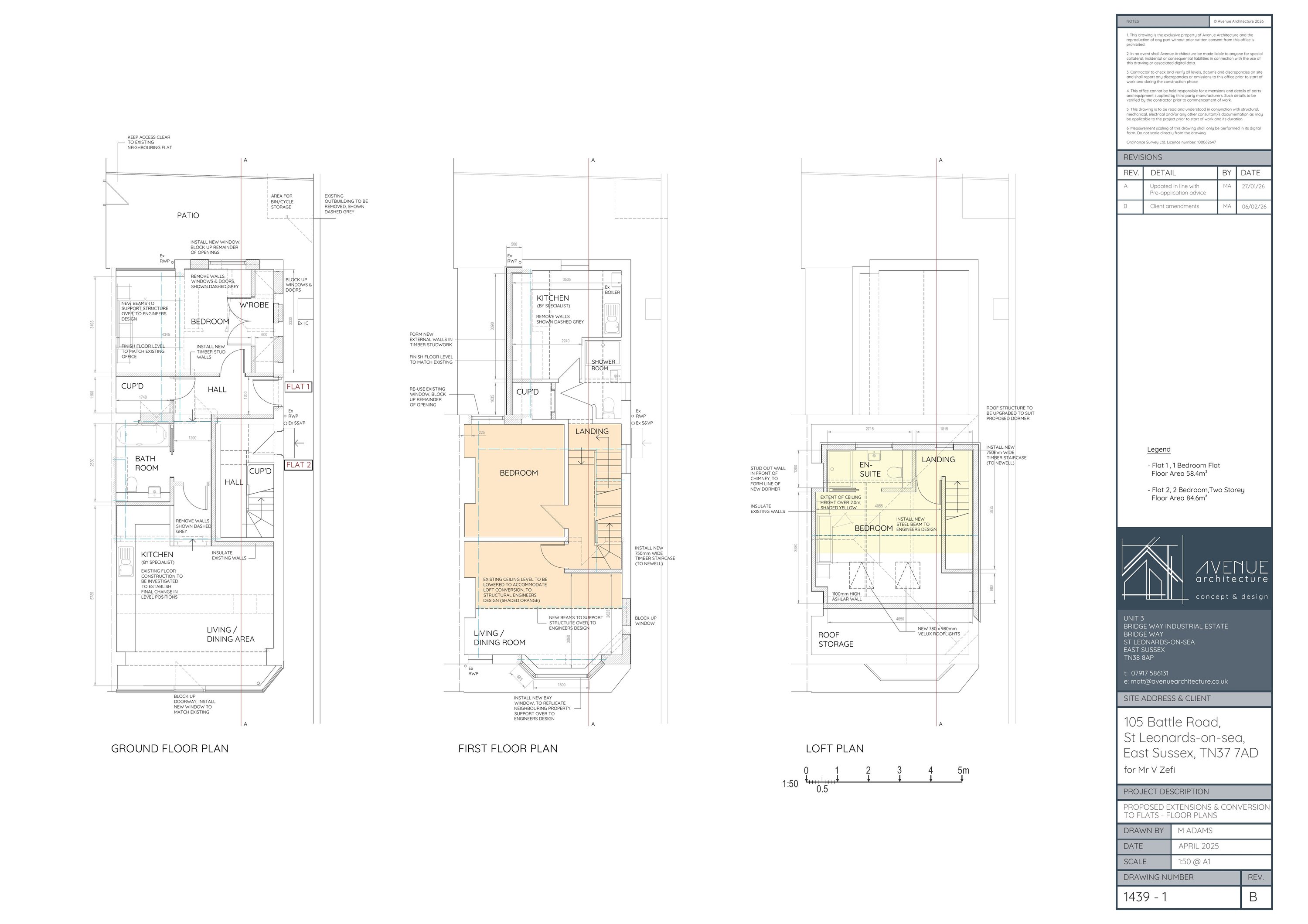
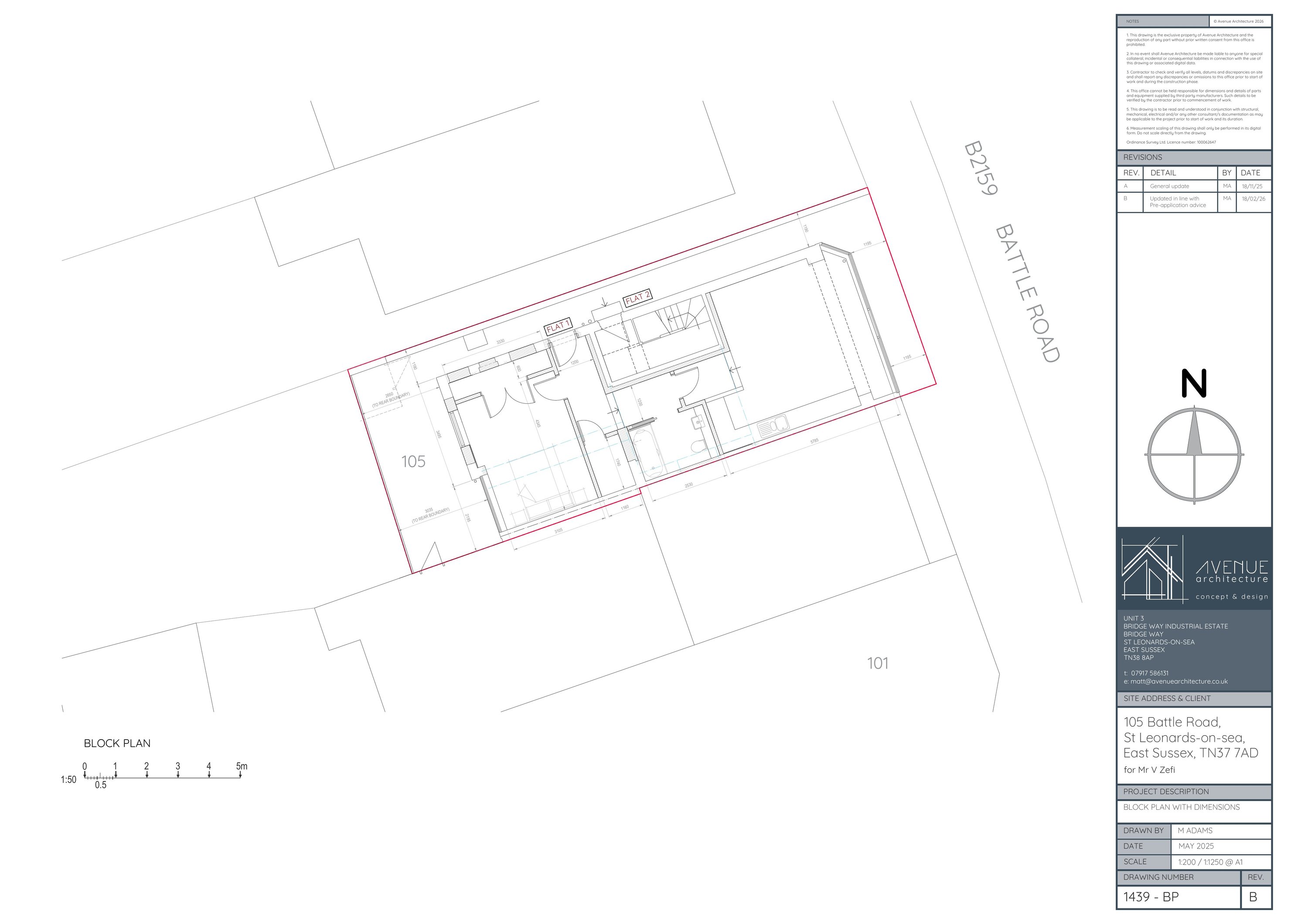
Change of use of existing ground floor unit (sui generis) to create a new (Class C3) 1-bed flat at ground floor. The development of a first-floor single-storey rear and side extension, with a first-floor front infill extension and bay window extension. A hip-to-gable roof extension, the installation of a rear dormer, and the addition of rooflights to allow for loft conversion to create a 2 bedroom first floor and loft maisonette

Documents

Application Form
Archived · Original link
Drawing
Archived · Original link
Drawing
Archived · Original link
Drawing
Archived · Original link
Consultee Comment
Archived · Original link
Drawing
Archived · Original link
Drawing
Archived · Original link
Other
Archived · Original link

Have your say

Your comment matters. Councils must consider every representation that raises material planning considerations.

Write a comment