← Hastings Borough Council

Status

Registered Commercial
Received
Last month
New homes
0

Full proposal

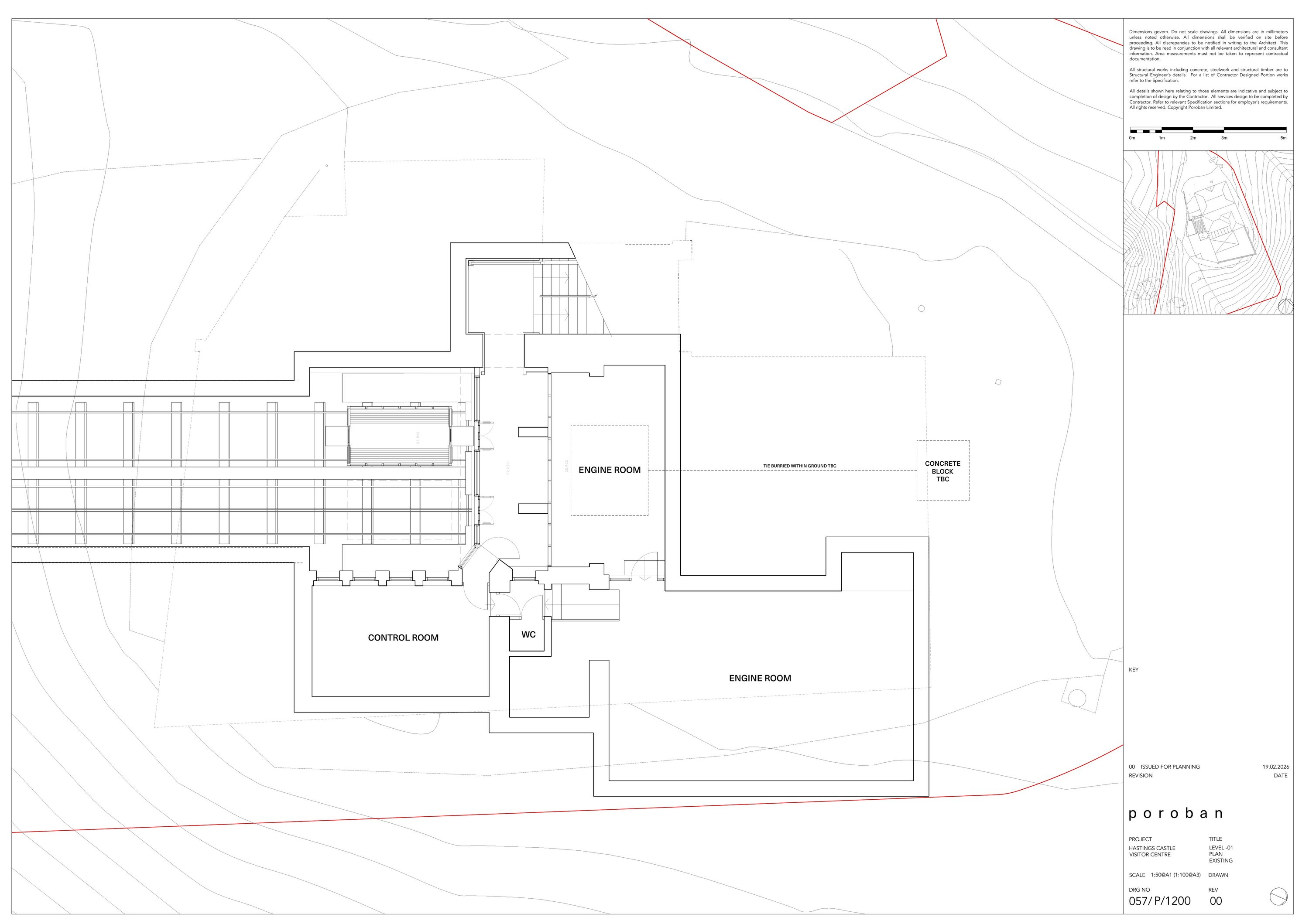
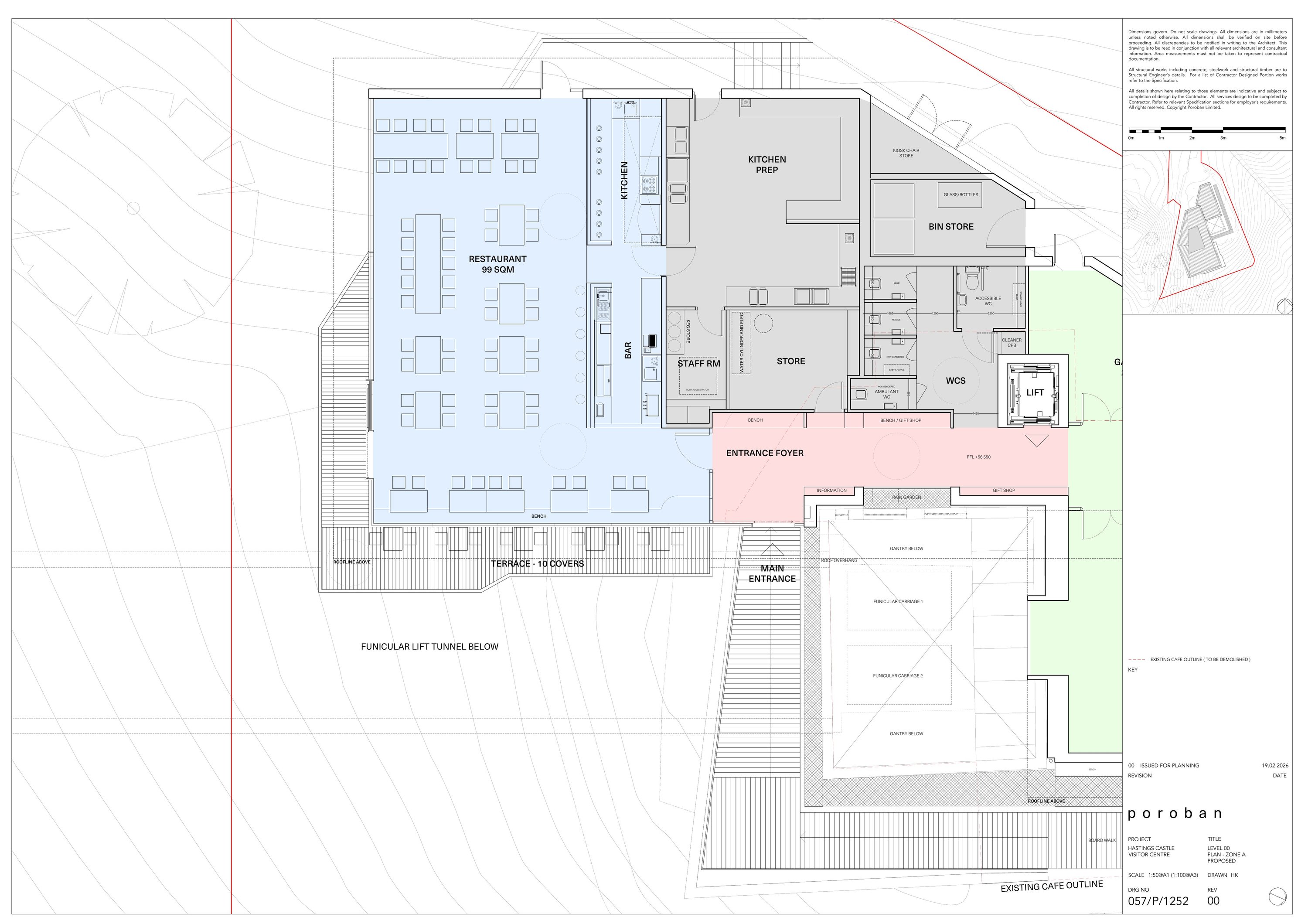
Demolition of the existing café and toilets and redevelopment to form a single storey visitor centre with café, restaurant and bar, takeaway, gallery/interpretation zones, retail and re-provision of toilets on the site of the existing West Hill Café. Creation of a new pathway/boardwalk to restaurant and installation of external lighting on pathways leading to the restaurant, wayfinding and signage. Installation of air source heat pumps and solar panels and associated landscaping improvements.

Documents

Application Form
Archived · Original link
Consultee Comment
Archived · Original link
Drawing
Archived · Original link
Drawing
Archived · Original link
Drawing
Archived · Original link
Drawing
Archived · Original link
Drawing
Archived · Original link
Drawing
Archived · Original link
Drawing
Archived · Original link
Drawing
Archived · Original link
Drawing
Archived · Original link
Drawing
Archived · Original link

Have your say

Your comment matters. Councils must consider every representation that raises material planning considerations.

Write a comment