APP/24/00932
Havant Borough Council
Status
Pending
House extension
Received
Not recorded
New homes
0
Full proposal
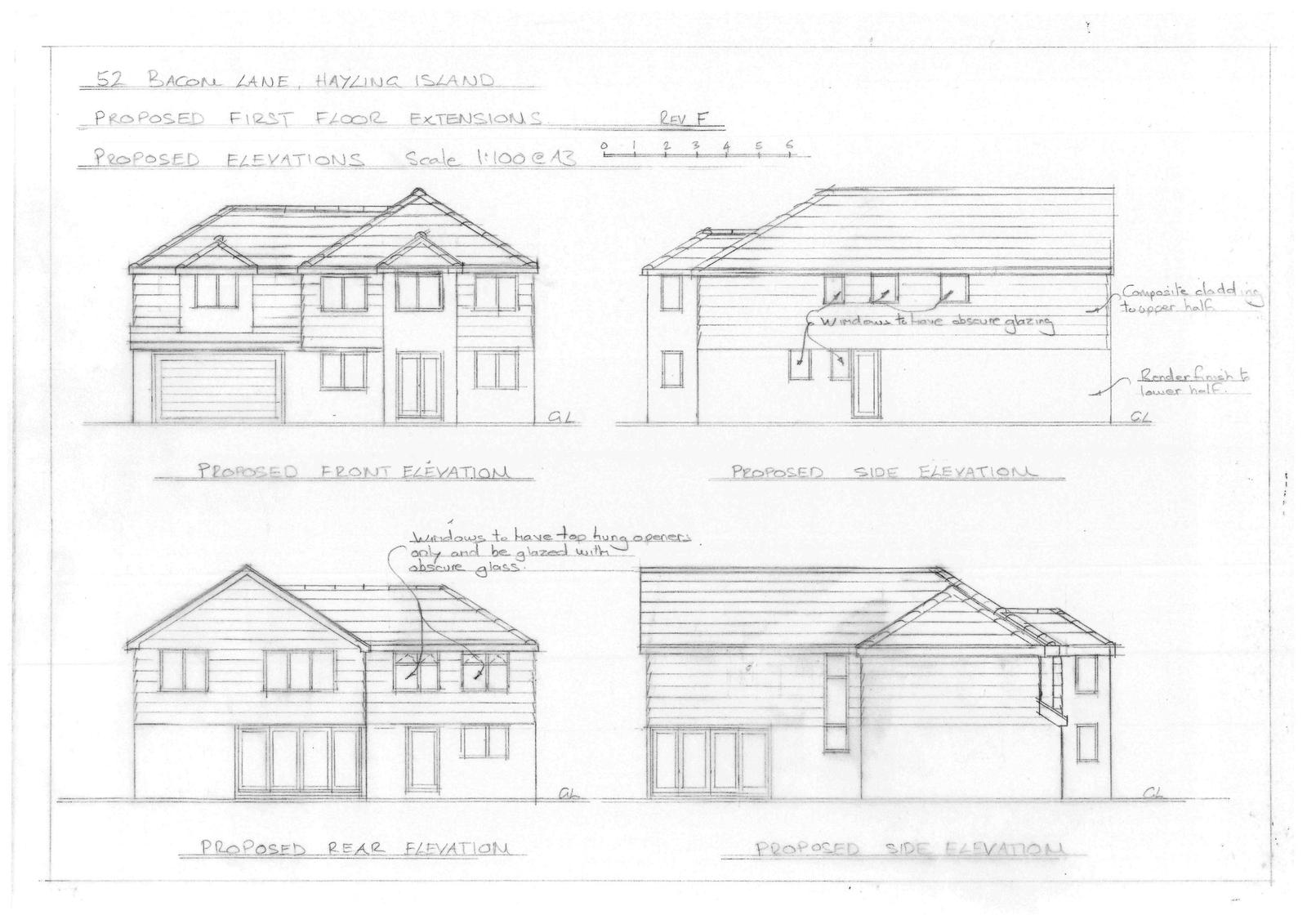
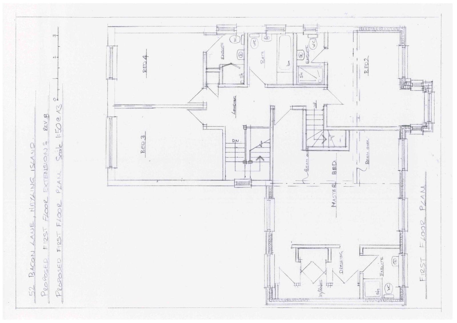
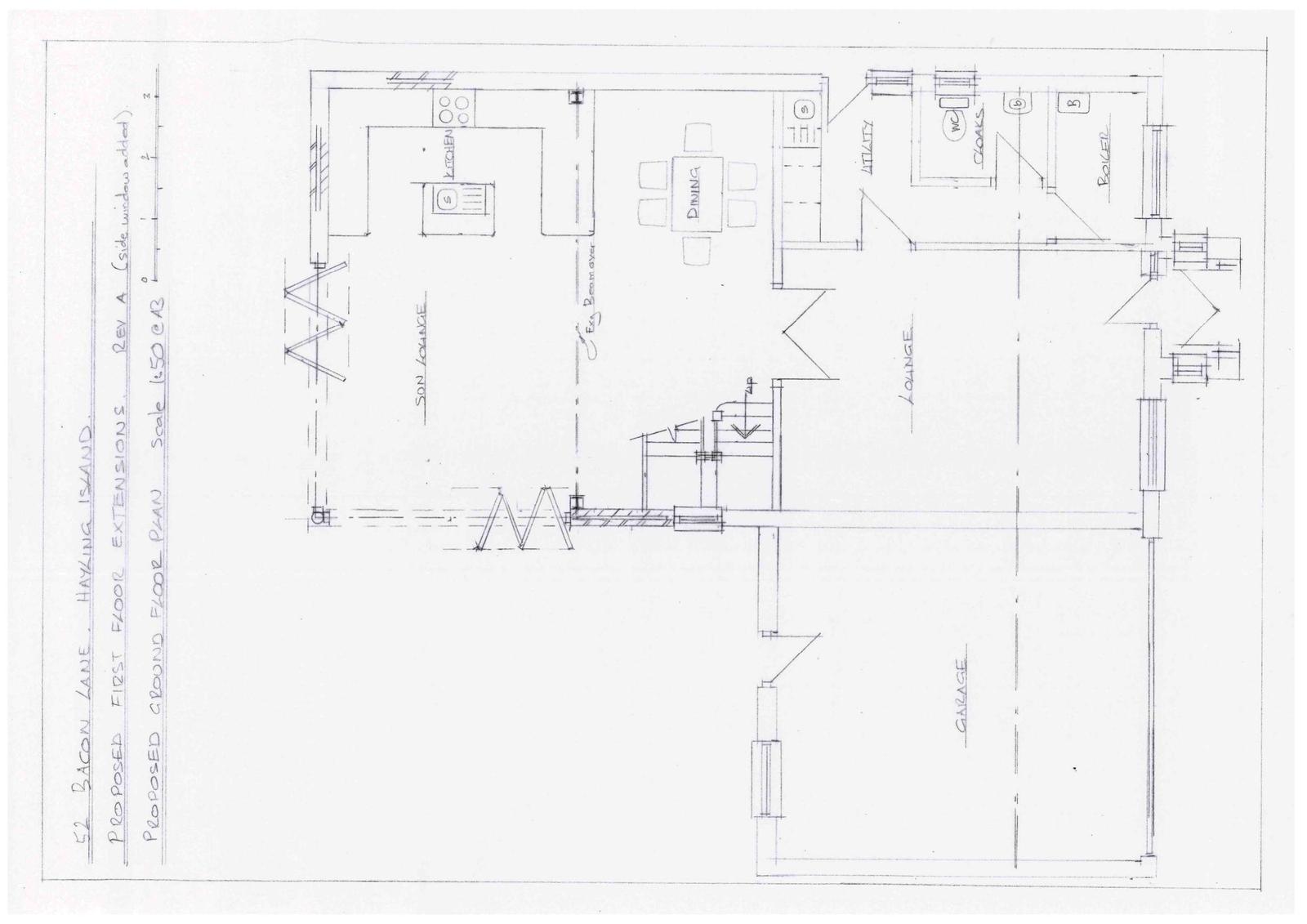
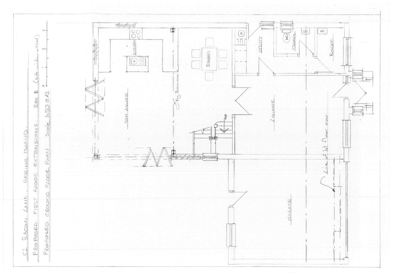
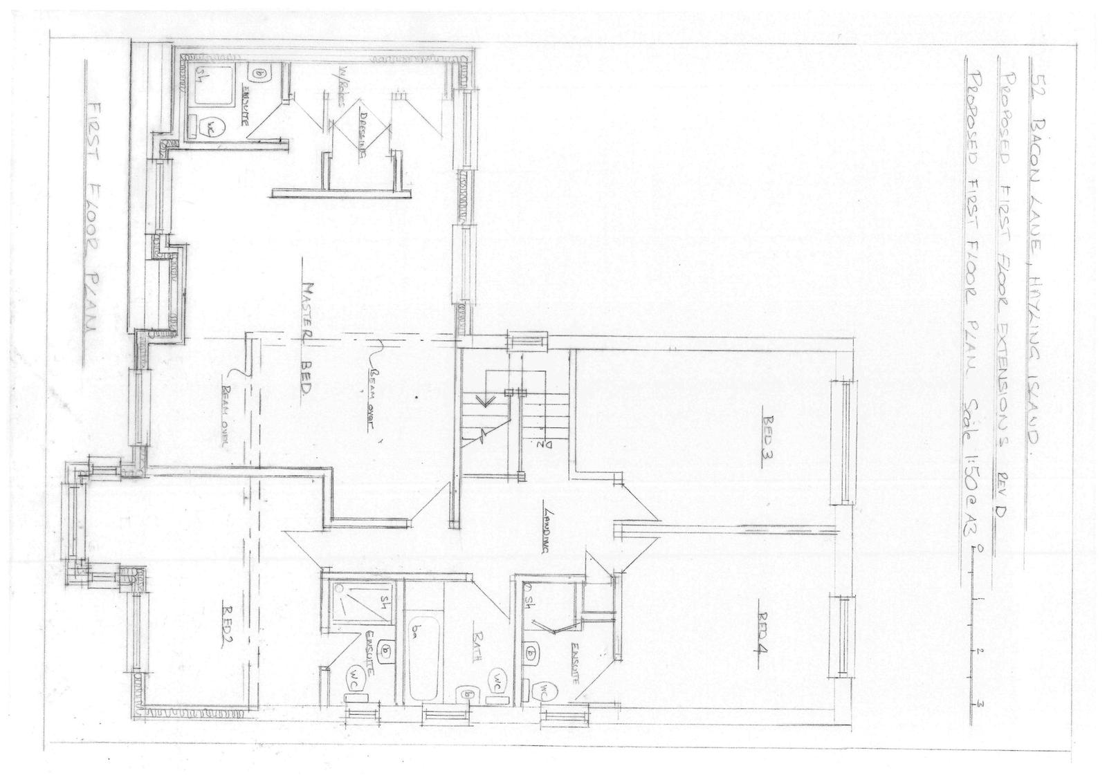
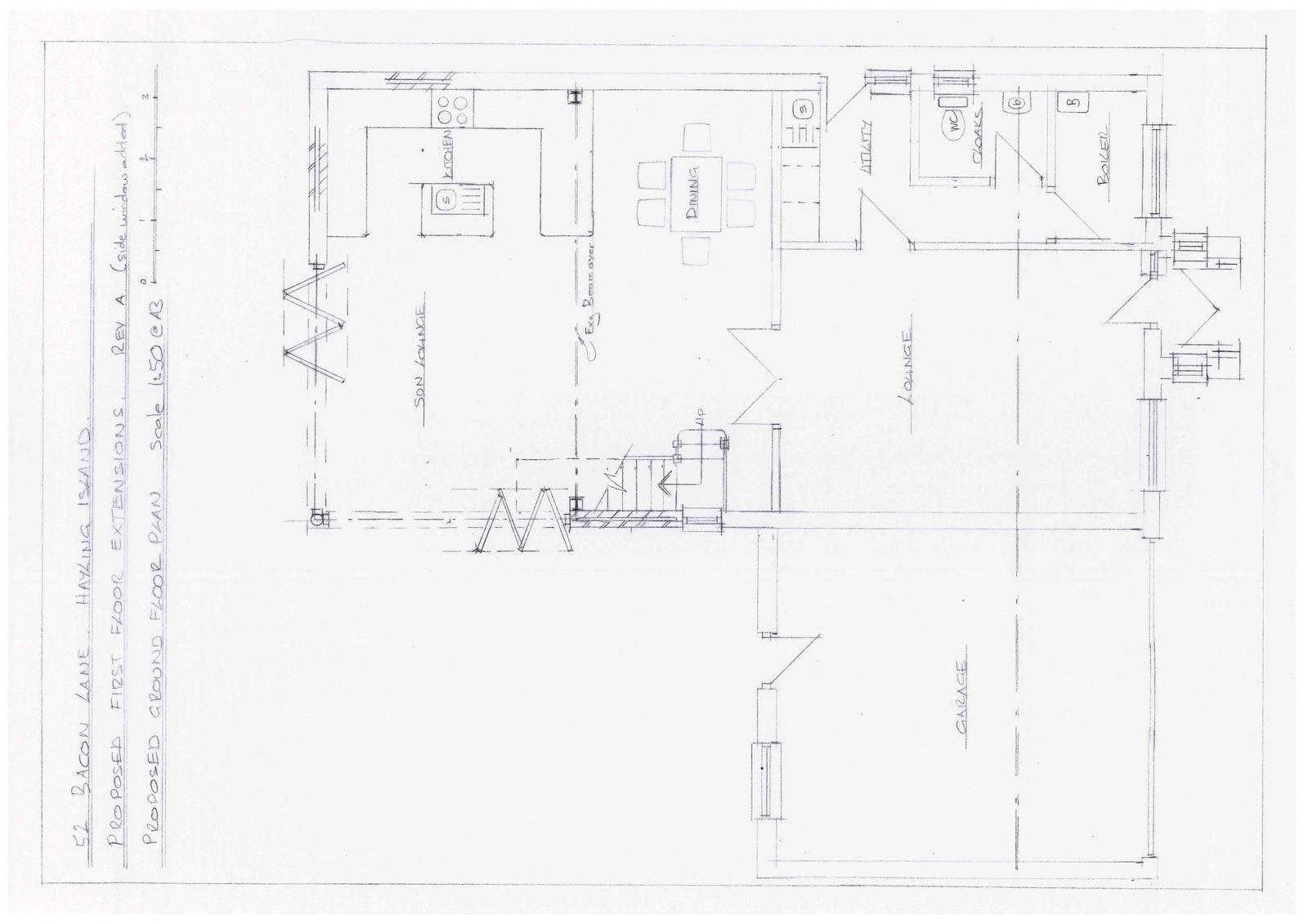
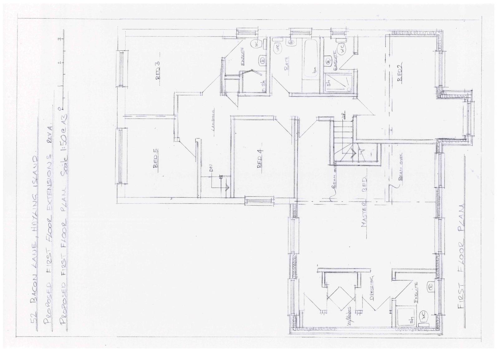
Reference APP/24/00932 Application type Householder planning permission Site address 52 Bacon Lane, Hayling Island, PO11 0DW Description Proposed two storey front extension and first floor over existing balcony, demolition of garage and replacement two storey side extension. Front dormer and other alterations to windows, change in materials with first floor cladding. Status Decision Made
Documents
Have your say
Your comment matters. Councils must consider every representation that raises material planning considerations.