← Havant Borough Council

Status

Pending House extension
Received
Not recorded
New homes
0

Full proposal

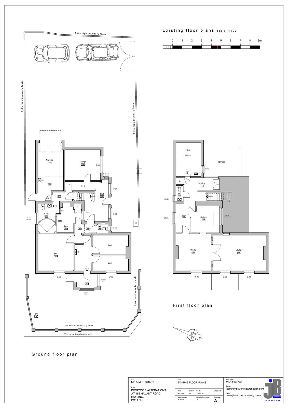
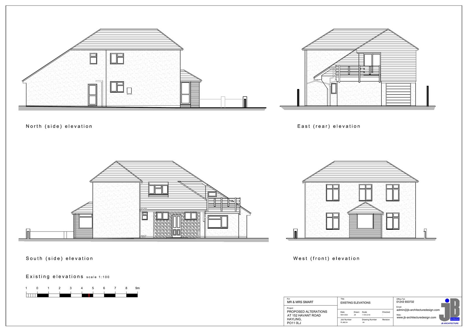
Reference APP/24/00993 Application type Householder planning permission Site address 152 Havant Road, Hayling Island, PO11 0LJ Description Erection of brick boundary walls, proposed roof alterations to rear elevation and construction of side elevation dormer. General door and window changes throughout. Status Decision Made

Documents

Uncategorised
Archived · Original link
Uncategorised
Archived · Original link
Uncategorised
Archived · Original link
Uncategorised
Archived · Original link
Uncategorised
Archived · Original link
Uncategorised
Archived · Original link
Uncategorised
Archived · Original link
Uncategorised
Archived · Original link
Uncategorised
Archived · Original link
Uncategorised
Archived · Original link
Uncategorised
Archived · Original link
Uncategorised
Archived · Original link
Uncategorised
Archived · Original link
Uncategorised
Archived · Original link
Uncategorised
Archived · Original link
Uncategorised
Archived · Original link
Uncategorised
Archived · Original link

Have your say

Your comment matters. Councils must consider every representation that raises material planning considerations.

Write a comment