APP/25/00121
Havant Borough Council
Status
Pending
House extension
Received
Not recorded
New homes
0
Full proposal
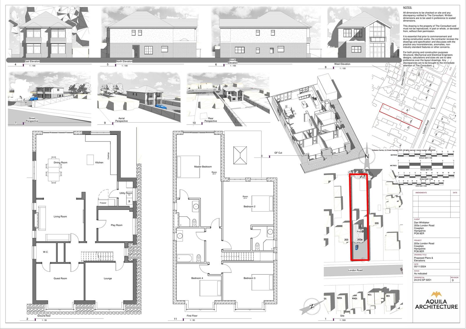
Reference APP/25/00121 Application type Householder planning permission Site address 203A London Road, Cowplain, Waterlooville, PO8 8ER Description Additional storey and two storey rear extension following demolition of existing extension. Status Decision Made
Documents
Have your say
Your comment matters. Councils must consider every representation that raises material planning considerations.