APP/25/00407
Havant Borough Council
Status
Pending
House extension
Received
Not recorded
New homes
0
Full proposal
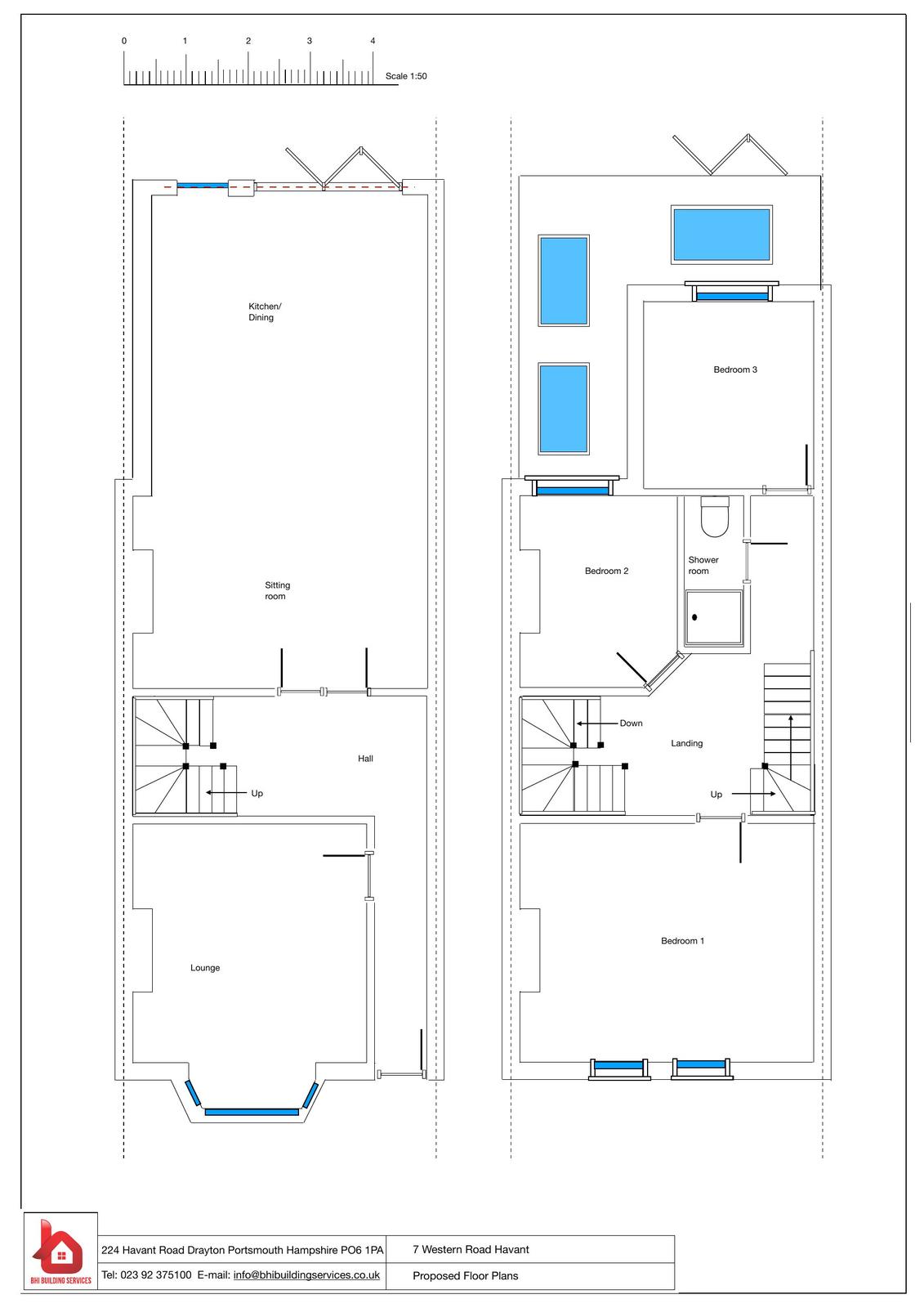
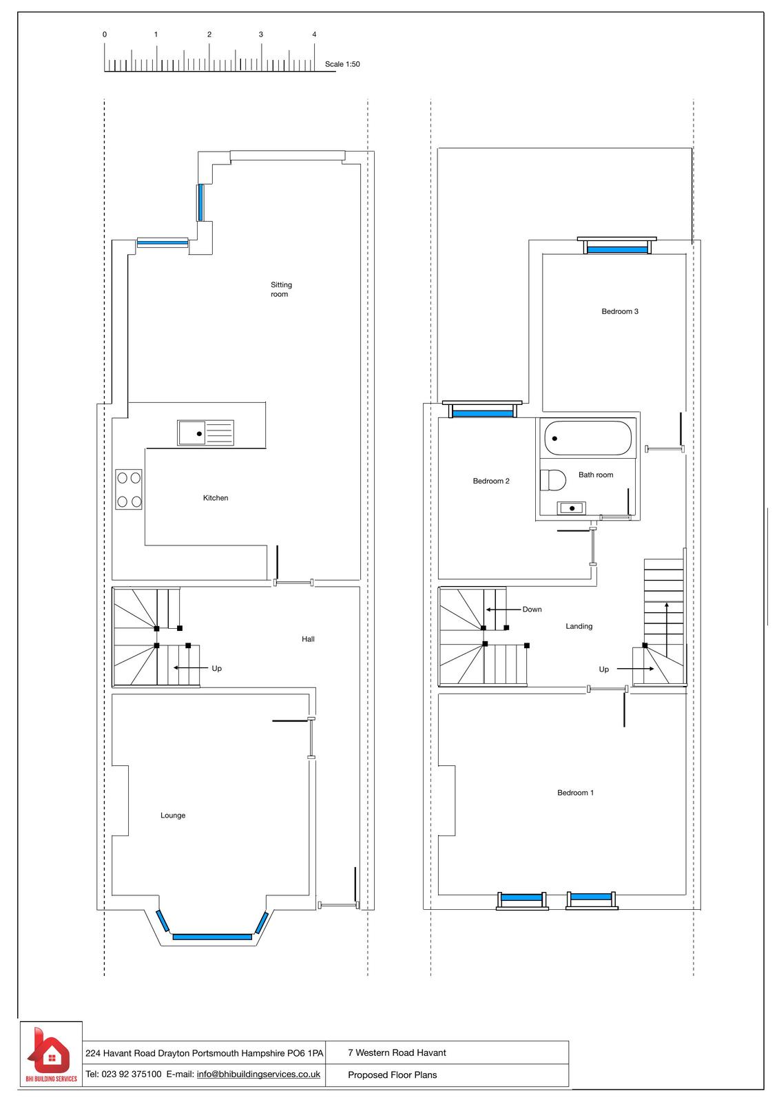
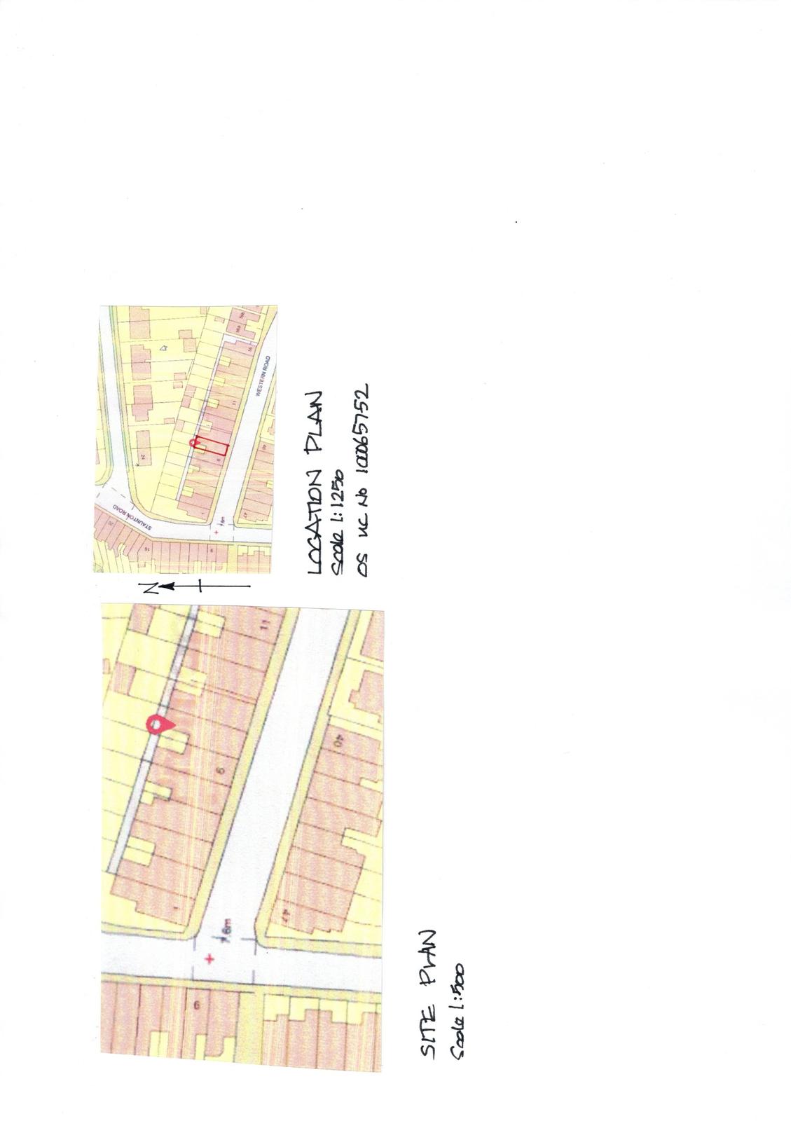
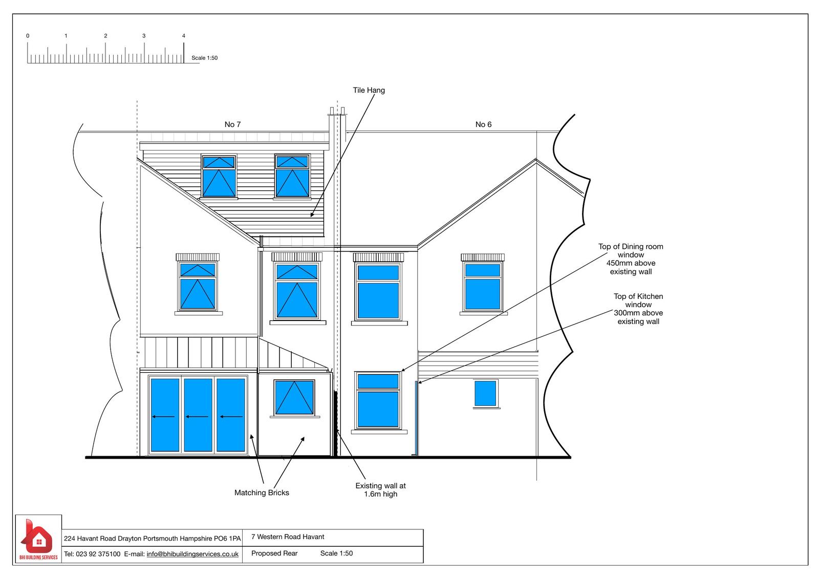
Reference APP/25/00407 Application type Householder planning permission Site address 7 Western Road, Havant, PO9 1NJ Description Rear dormer and ground floor rear extension (part retrospective) Status Decision Made
Documents
Have your say
Your comment matters. Councils must consider every representation that raises material planning considerations.