← Havant Borough Council

Status

Pending House extension
Received
Not recorded
New homes
0

Full proposal

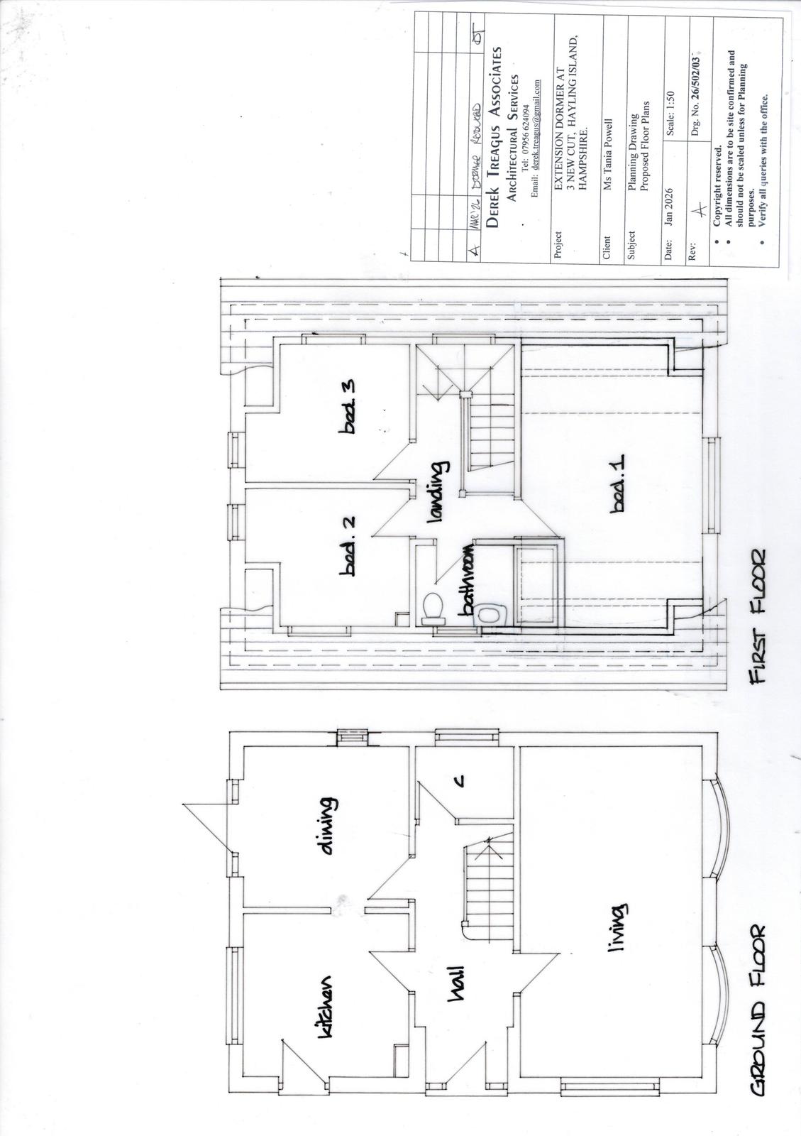
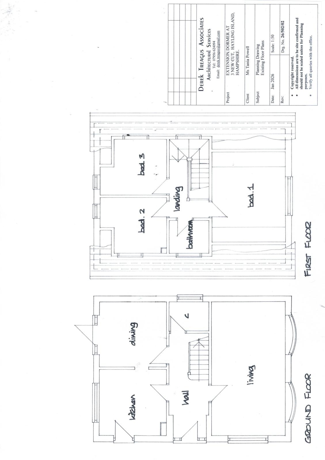
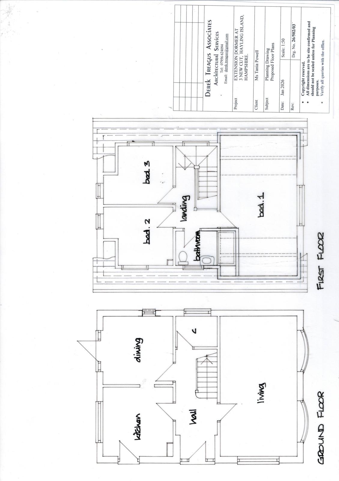
Reference APP/26/00079 Application type Householder planning permission Site address 3 New Cut, Hayling Island, PO11 0NB Description Extension to existing dormers (both sides) and alterations to external materials. Status Under Consultation

Documents

Uncategorised
Archived · Original link
Uncategorised
Archived · Original link
Uncategorised
Archived · Original link
Uncategorised
Archived · Original link
Uncategorised
Archived · Original link
Uncategorised
Archived · Original link

Have your say

Your comment matters. Councils must consider every representation that raises material planning considerations.

Write a comment