← Havant Borough Council

Status

Pending House extension
Received
Not recorded
New homes
0

Full proposal

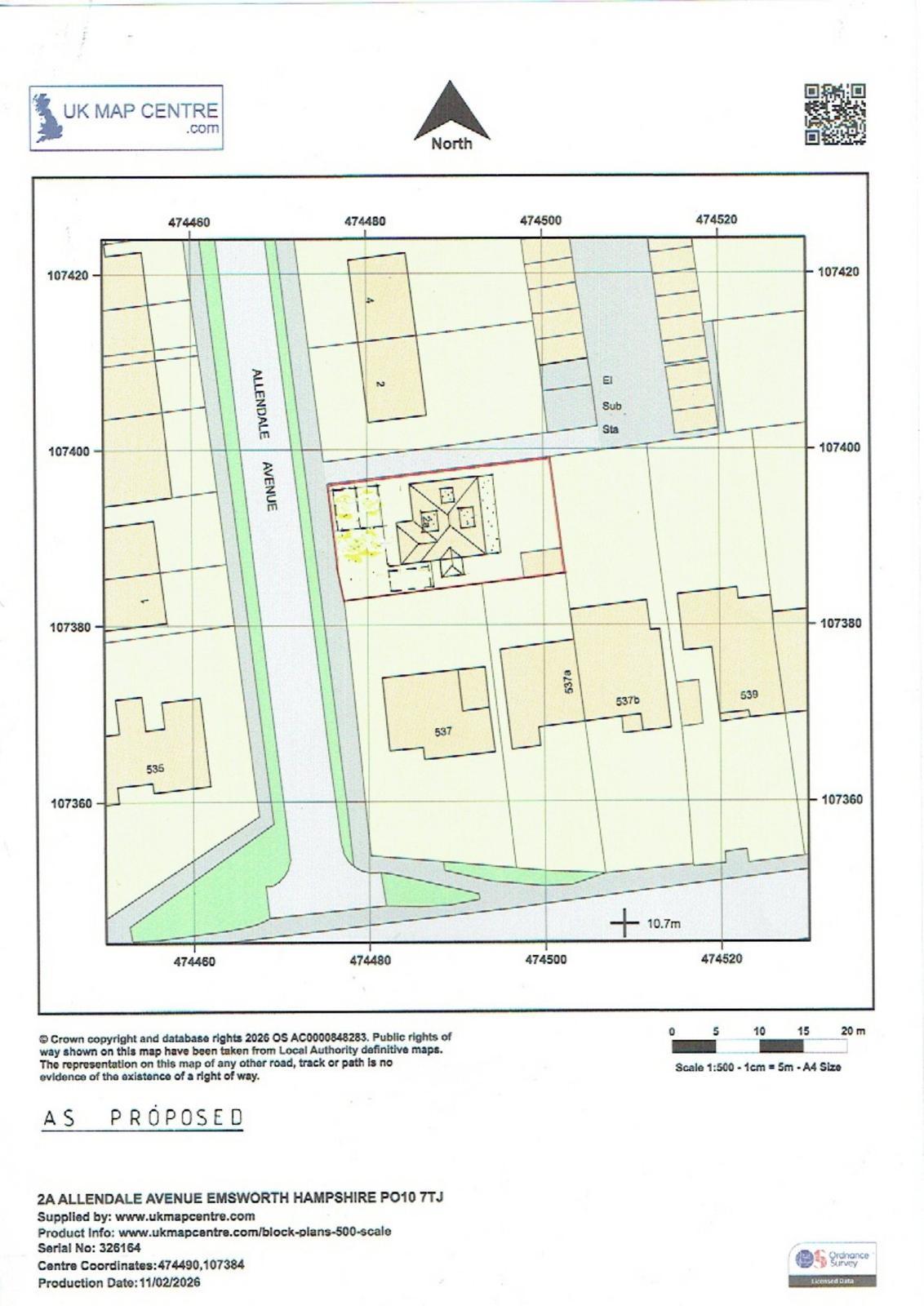
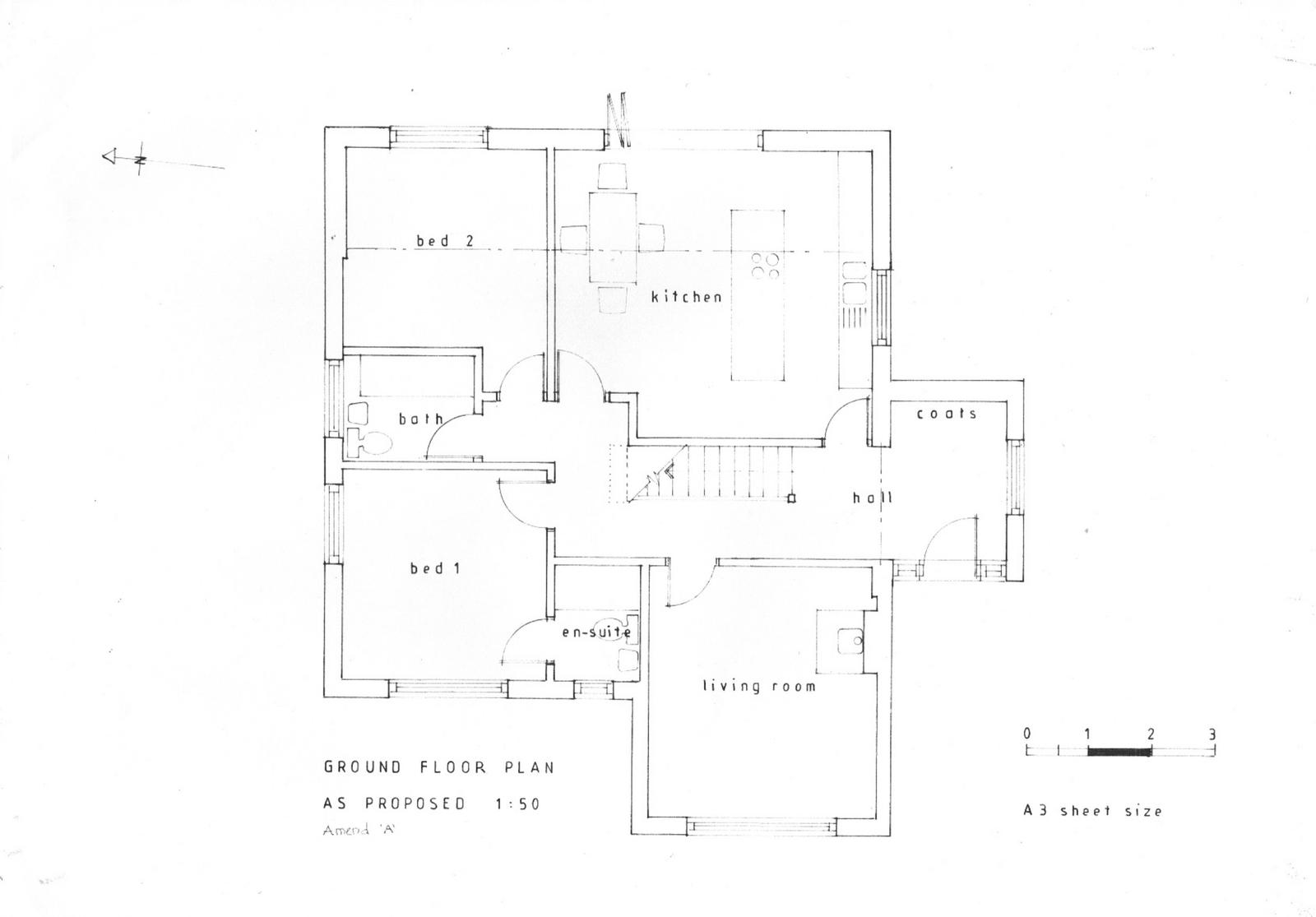
Reference APP/26/00101 Application type Householder planning permission Site address 2A Allendale Avenue, Emsworth, PO10 7TJ Description Single storey rear extension and single storey side extension and 3 number dormer windows Status Under Consultation

Documents

Uncategorised
Archived · Original link
Uncategorised
Archived · Original link
Uncategorised
Archived · Original link
Uncategorised
Archived · Original link
Uncategorised
Archived · Original link
Uncategorised
Archived · Original link
Uncategorised
Archived · Original link
Uncategorised
Archived · Original link
Uncategorised
Archived · Original link
Uncategorised
Archived · Original link
Uncategorised
Archived · Original link
Uncategorised
Archived · Original link
Uncategorised
Archived · Original link

Have your say

Your comment matters. Councils must consider every representation that raises material planning considerations.

Write a comment