← Havant Borough Council

Status

Pending House extension
Received
Not recorded
New homes
0

Full proposal

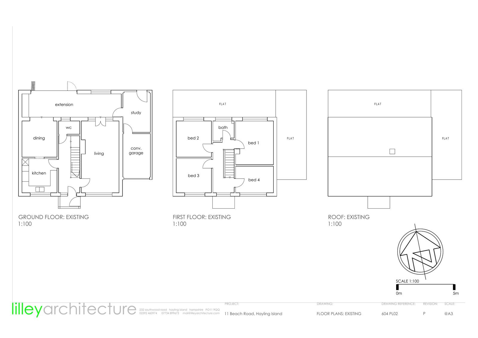
Reference APP/26/00123 Application type Householder planning permission Site address 11 Beach Road, Hayling Island, PO11 0AA Description Proposed replacement roof with accommodation, raised ridge height, rear dormer and roof windows. Front single storey kitchen extension and open porch. Extend drop kerb, change in external materials. Status Under Consultation

Documents

Uncategorised
Archived · Original link
Uncategorised
Archived · Original link
Uncategorised
Archived · Original link
Uncategorised
Archived · Original link
Uncategorised
Archived · Original link
Uncategorised
Archived · Original link
Uncategorised
Archived · Original link
Uncategorised
Archived · Original link

Have your say

Your comment matters. Councils must consider every representation that raises material planning considerations.

Write a comment