← London Borough of Hillingdon

Status

Approval House extension
Received
28 Jan 2025
New homes
0

Summary

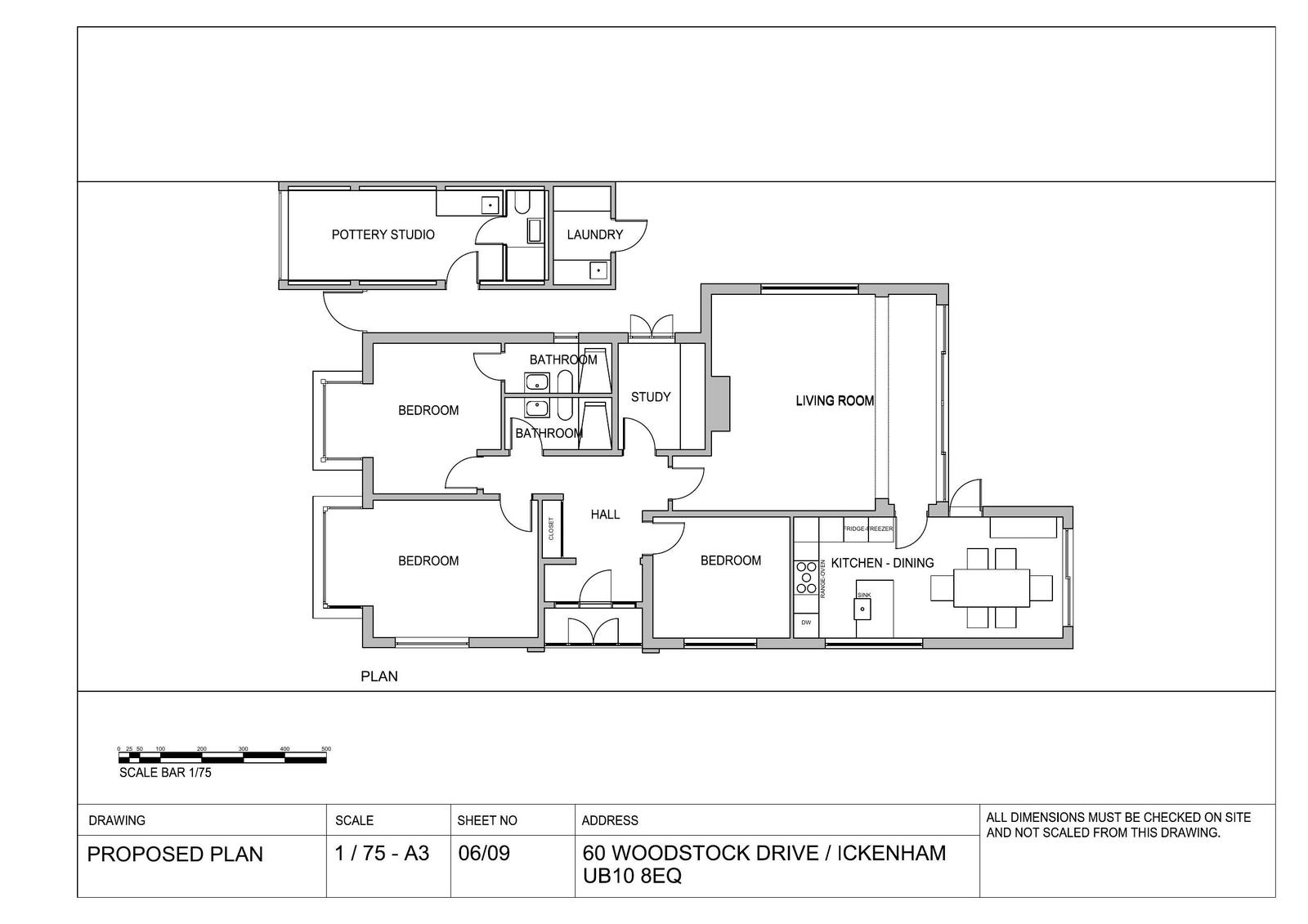
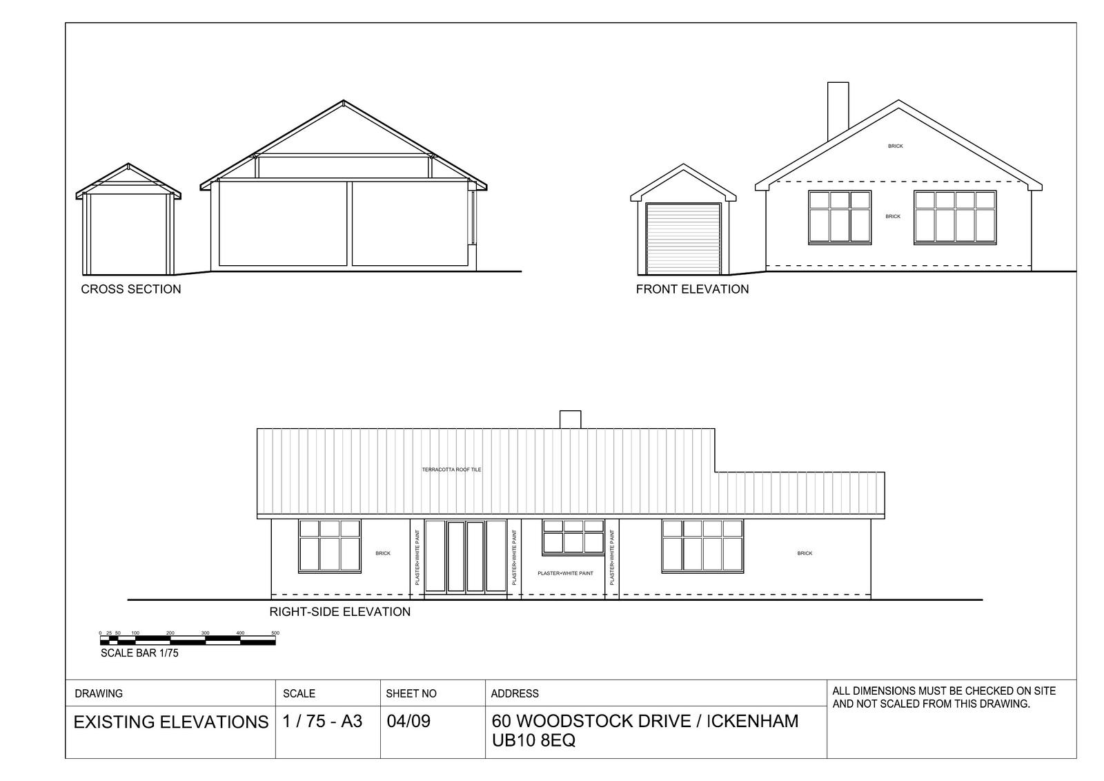
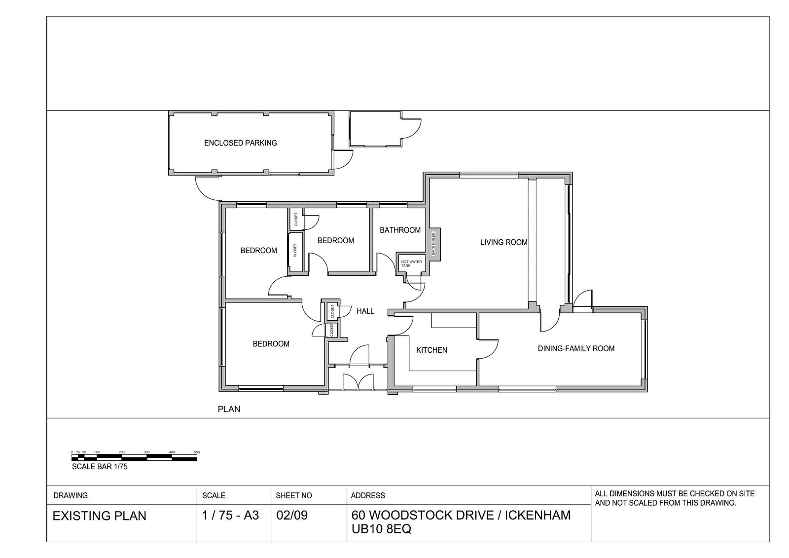
Garage conversion to habitable accommodation with single-storey front extensions and bay windows.

Full proposal

Extension/conversion of garage to habitable accommodation. Erection of single story front extensions with the inclusion of bay windows to the façade.. Amendments to fenestration.

Documents

Document
Archived · Original link
Document
Archived · Original link
Document
Archived · Original link
Document
Archived · Original link
Document
Archived · Original link
Document
Archived · Original link
Document
Archived · Original link
Document
Archived · Original link
Document
Archived · Original link
Document
Archived · Original link

Have your say

Your comment matters. Councils must consider every representation that raises material planning considerations.

Write a comment