← Back to London Borough of Hillingdon

Status

Approval House extension
Received 07 Jan 2025
New dwellings 0

What you can do

Take Action

Make your voice heard. Authorities need to hear from people who support new homes.

Summary

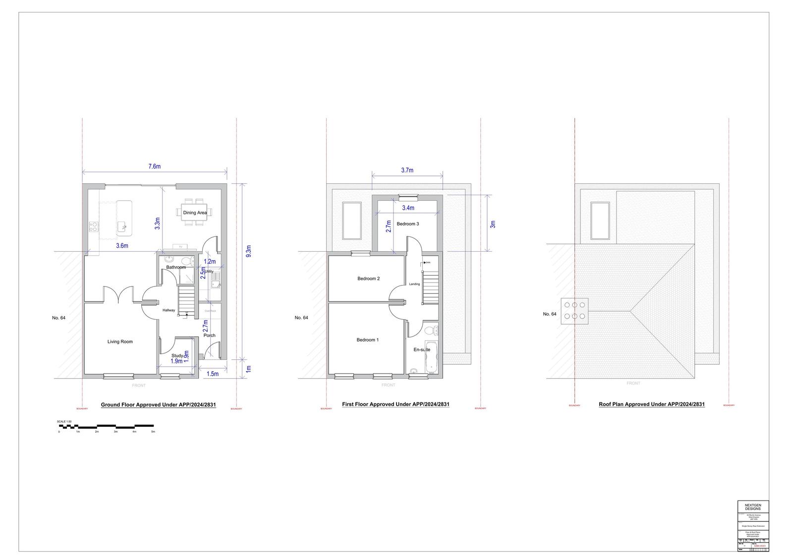
Single-storey side and rear extension and part first-floor rear extension to dwelling.

Full Proposal

Erection of a single storey side and rear extension and a part first floor rear extension (amended description)

Detail pages

Documents

APPLICATION FORM
Document
Not downloaded · Council link
BLOCK PLAN
Document
Not downloaded · Council link
DECISION NOTICE
Document
Not downloaded · Council link
EXISTING ELEVATIONS
Document
Not downloaded · Council link
EXISTING FLOOR PLANS
Document
Not downloaded · Council link
LOCATION PLAN
Document
Not downloaded · Council link
OFFICERS REPORTS
Document
Not downloaded · Council link
PROPOSED ELEVATIONS
Document
Not downloaded · Council link
PROPOSED FLOOR PLANS
Document
Archived copy · Council link
PROPOSED FLOOR PLANS AMENDED
Document
Archived copy · Council link
SITE LAYOUT - PROPOSED AMENDED
Document
Not downloaded · Council link
SUPPORTING INFORMATION
Document
Not downloaded · Council link
SUPPORTING INFORMATION
Document
Not downloaded · Council link