← London Borough of Hillingdon

Status

Prior Approval N/Req House extension
Received
08 May 2025
New homes
0

Full proposal

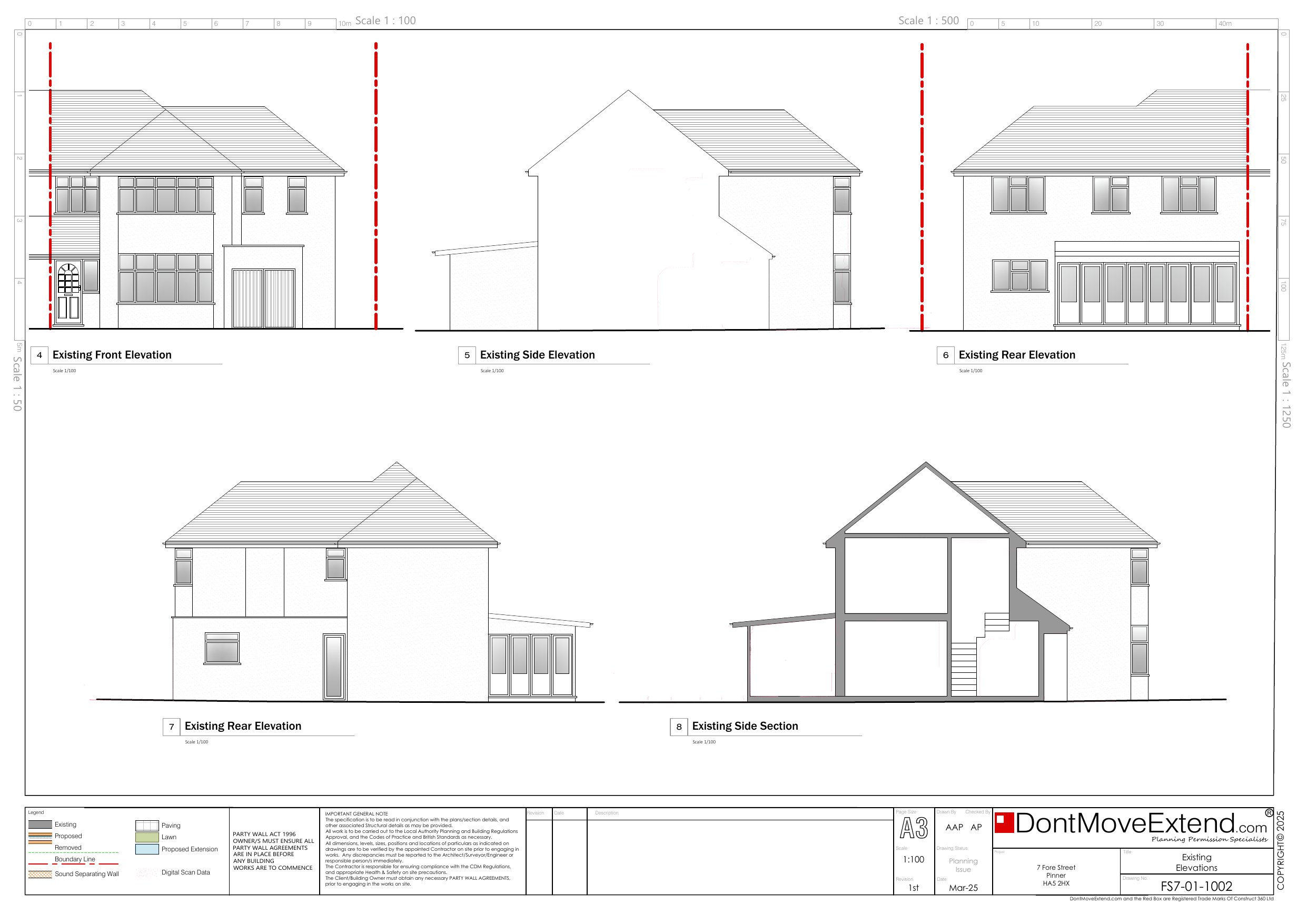
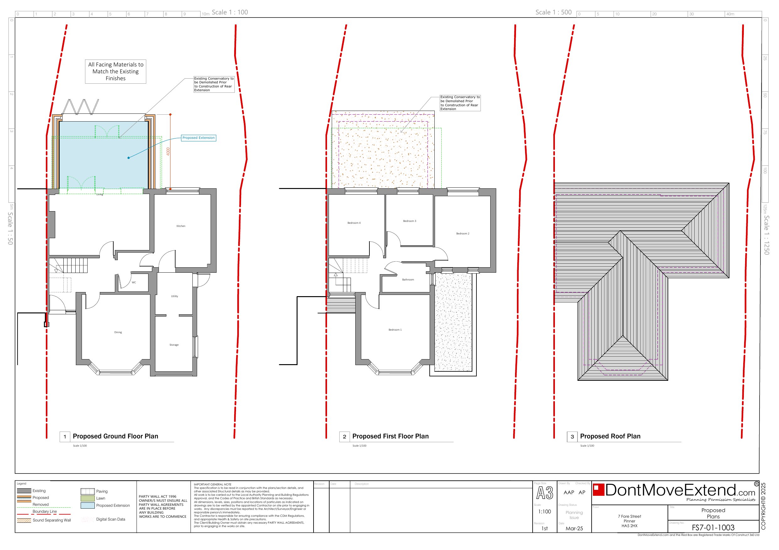
Erection of a single storey rear extension, which would extend beyond the rear wall of the original house by 4.00 metres, for which the maximum height would be 3.00 metres, and for which the height of the eaves would be 2.90 metres.

Documents

Document
Archived · Original link
Document
Archived · Original link
Document
Archived · Original link
Document
Archived · Original link
Document
Archived · Original link
Document
Archived · Original link
Document
Archived · Original link
Document
Archived · Original link

Have your say

Your comment matters. Councils must consider every representation that raises material planning considerations.

Write a comment