← London Borough of Hillingdon
14352/APP/2025/1357
London Borough of Hillingdon
Status
Approval
House extension
Received
14 May 2025
New homes
0
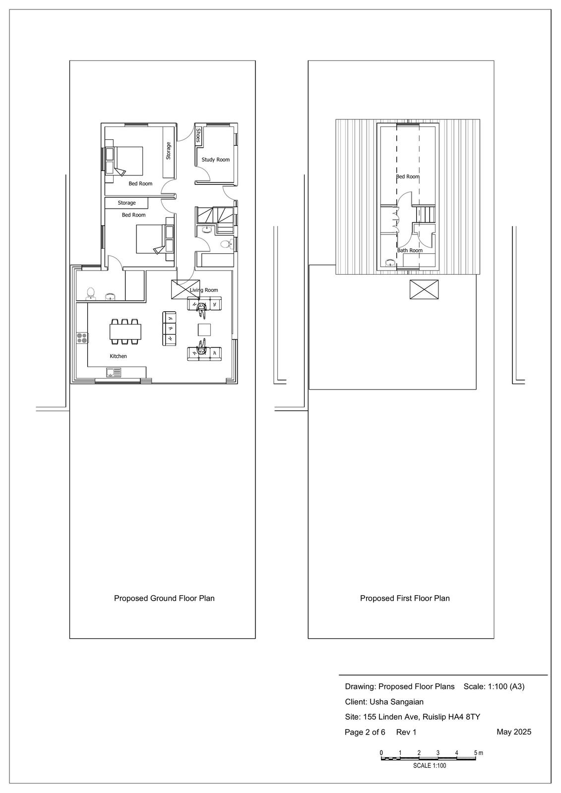
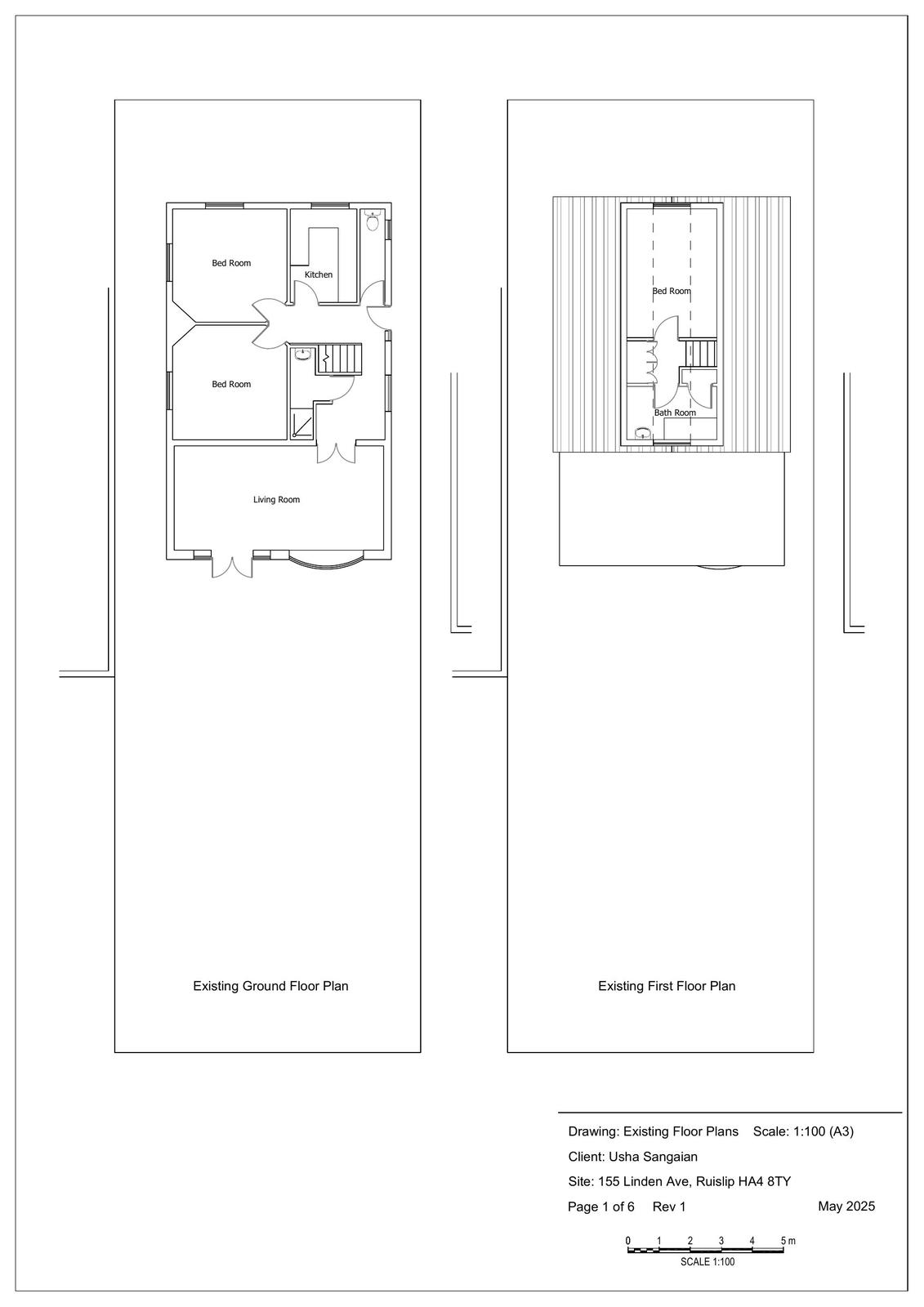
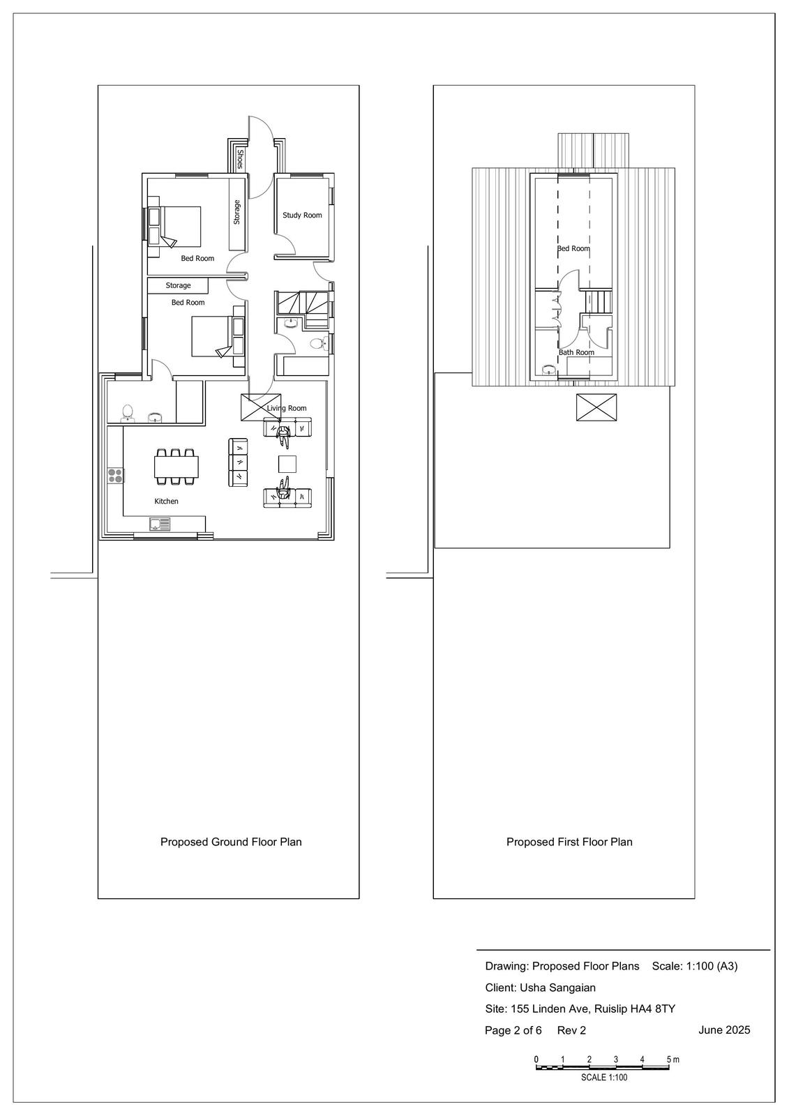
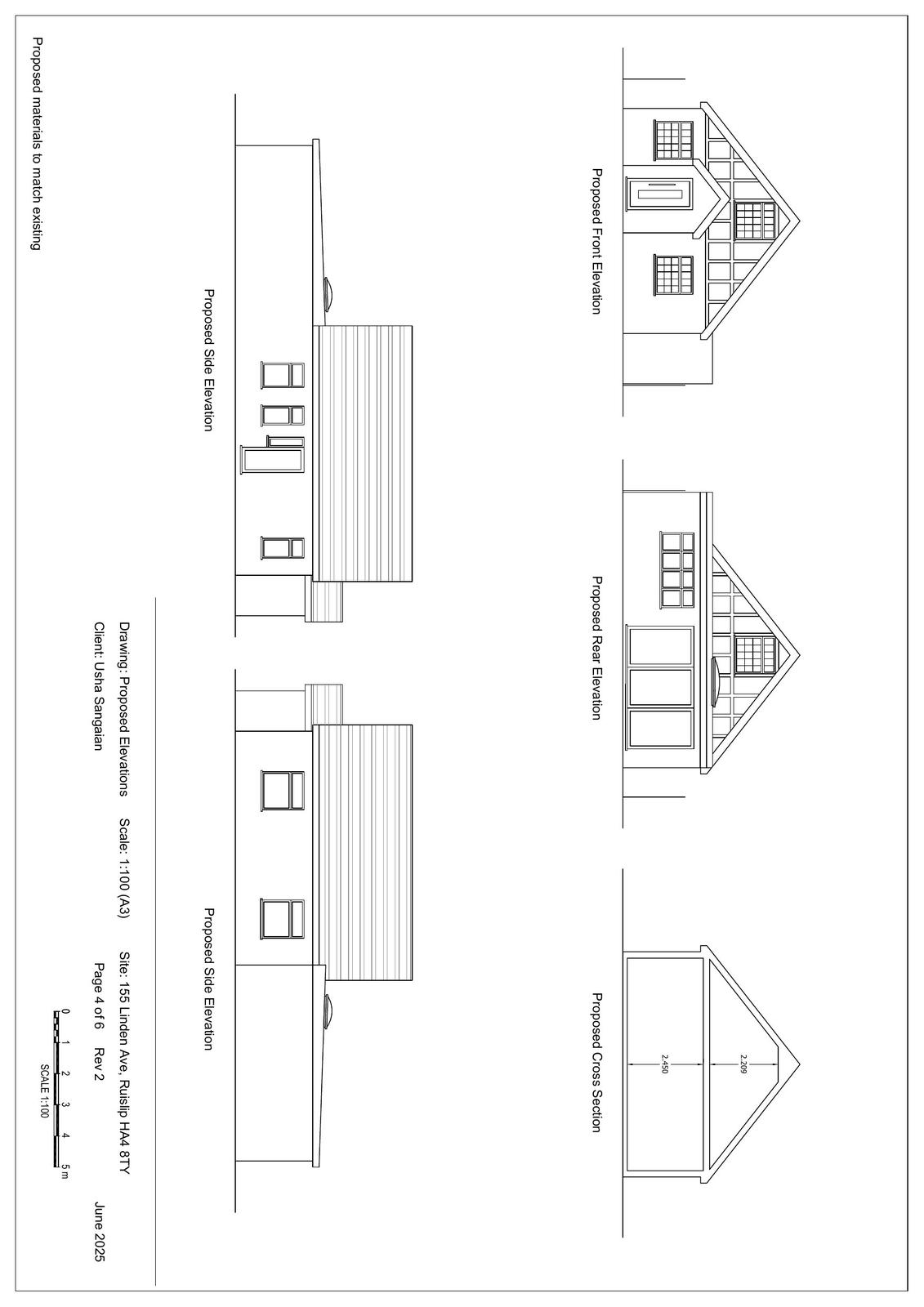
Full proposal
Erection of a single storey front, side and rear extension and amendments to fenestration including a new front door.
Documents
Have your say
Your comment matters. Councils must consider every representation that raises material planning considerations.