← Back to London Borough of Hillingdon
Application
15999/APP/2025/15
London Borough of Hillingdon · OCELLA
Status
Refusal
House extension
Received
06 Jan 2025
New dwellings
0
What you can do
Take Action
Make your voice heard. Authorities need to hear from people who support new homes.
Summary
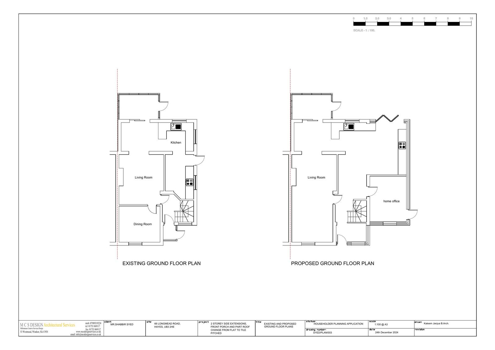
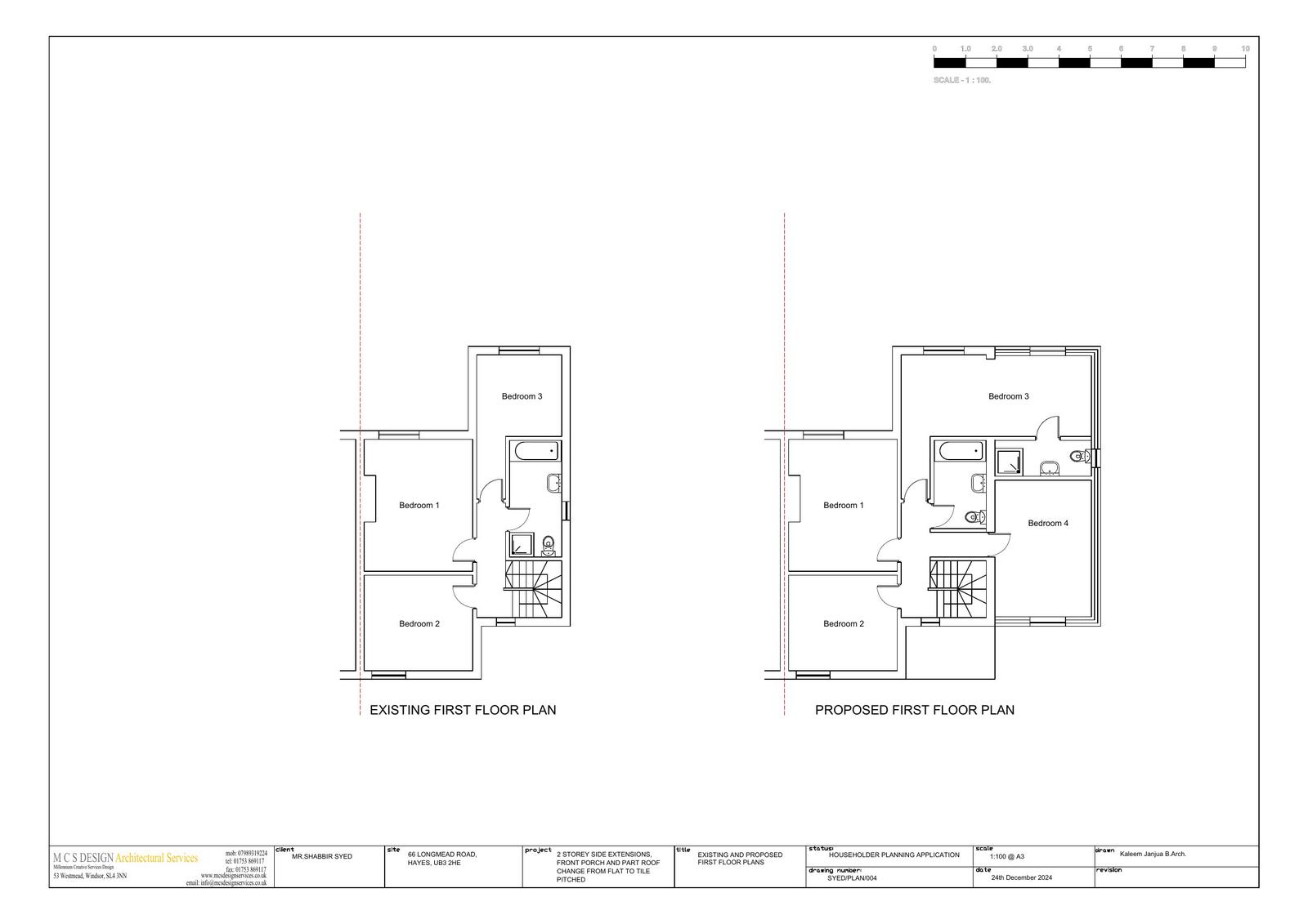
Two-storey side/rear extension, front porch, roof amendments and fenestration changes.
Full Proposal
Erection of a two storey side/rear extension, front porch extension, amendments to the roof including changes to eaves height, conversion of existing flat roof to hipped roof to the rear and amendments to fenestration.
Detail pages
- View live detail on council site
- No archived detail page available.
Documents
APPLICATION FORM
Document
Not downloaded
· Council link
DECISION NOTICE
Document
Not downloaded
· Council link
EXISTING ELEVATIONS
Document
Not downloaded
· Council link
EXISTING PLAN
Document
Not downloaded
· Council link
LOCATION PLAN
Document
Not downloaded
· Council link
OFFICERS REPORTS
Document
Not downloaded
· Council link
PROPOSED AND EXISITNG SITE LAYOUT PLAN
Document
Not downloaded
· Council link
PROPOSED AND EXISITNG SITE LAYOUT PLAN
Document
Not downloaded
· Council link
PROPOSED AND EXISTING ROOF PLANS
Document
Not downloaded
· Council link
PROPOSED ELEVATIONS
Document
Not downloaded
· Council link
PROPOSED PLAN
Document
Not downloaded
· Council link