← London Borough of Hillingdon

Status

Approval House extension
Received
30 Jan 2025
New homes
0

Summary

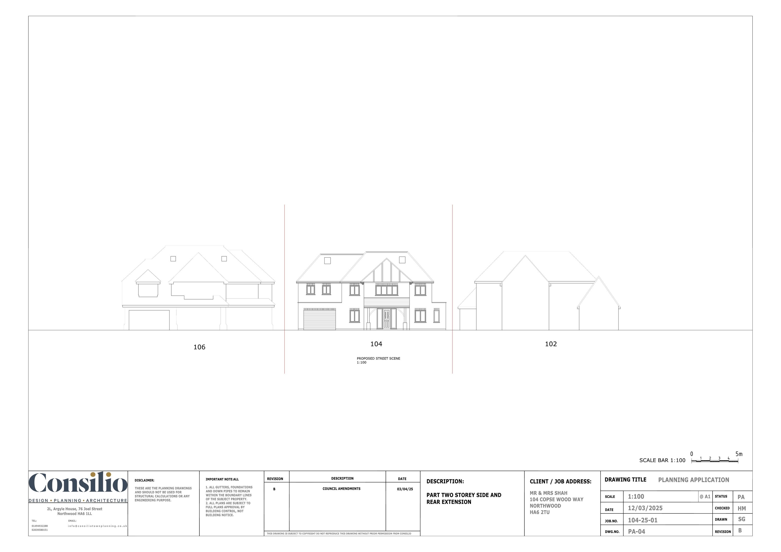
Part single- and two-storey side/rear extension and roof conversion with dormers and rooflights.

Full proposal

Construction of a part single-storey, part two-storey side and rear extension, conversion of roof to habitable space to include the construction of two rear dormers and installation of three roof lights and amendments to fenestration.

Documents

Document
Archived · Original link
Document
Archived · Original link
Document
Archived · Original link
Document
Archived · Original link
Document
Archived · Original link
Document
Archived · Original link
Document
Archived · Original link
Document
Archived · Original link
Document
Archived · Original link

Have your say

Your comment matters. Councils must consider every representation that raises material planning considerations.

Write a comment