← London Borough of Hillingdon

Status

Approval House extension
Received
27 Mar 2025
New homes
0

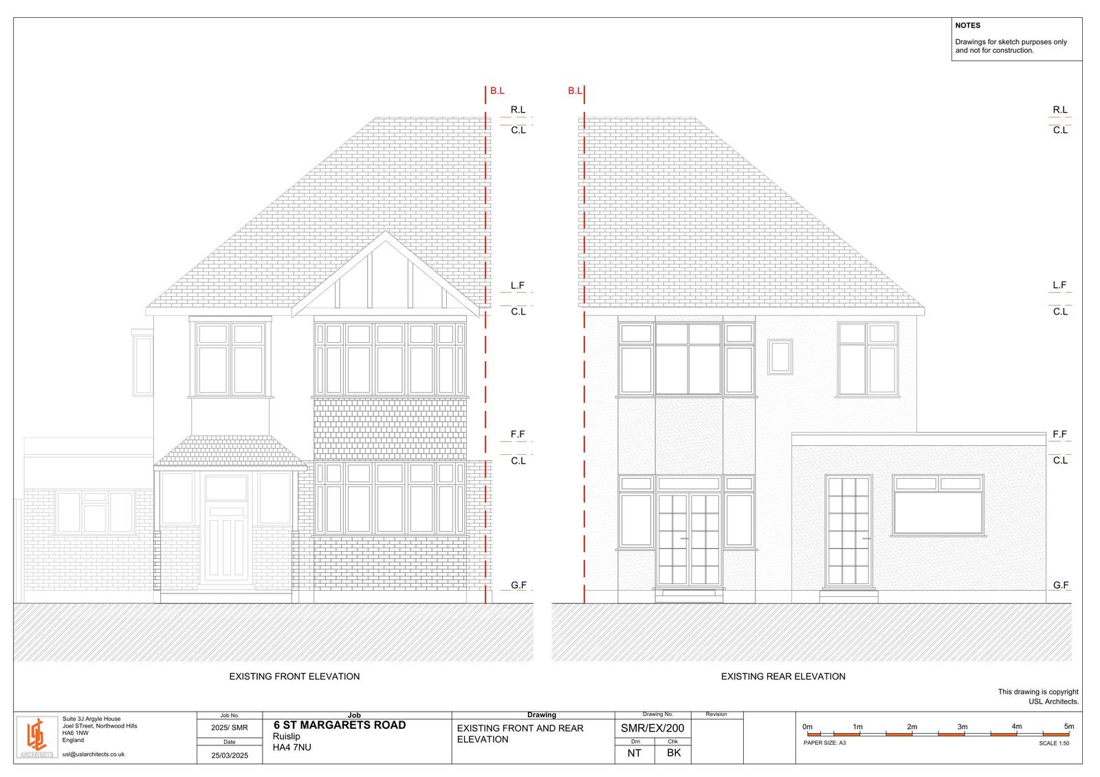
Full proposal

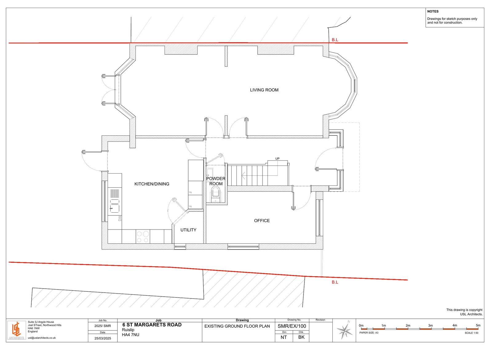
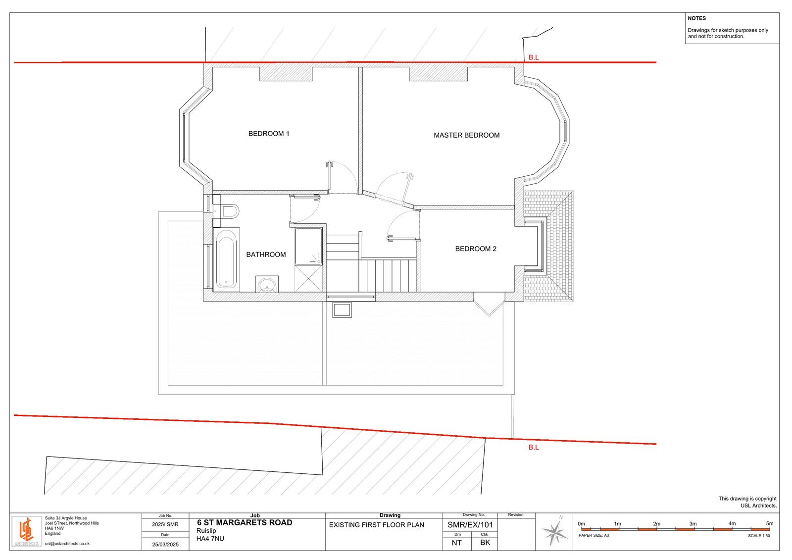
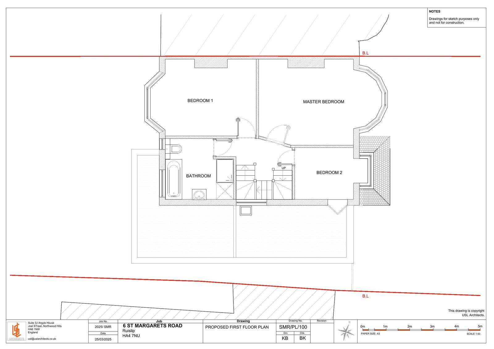
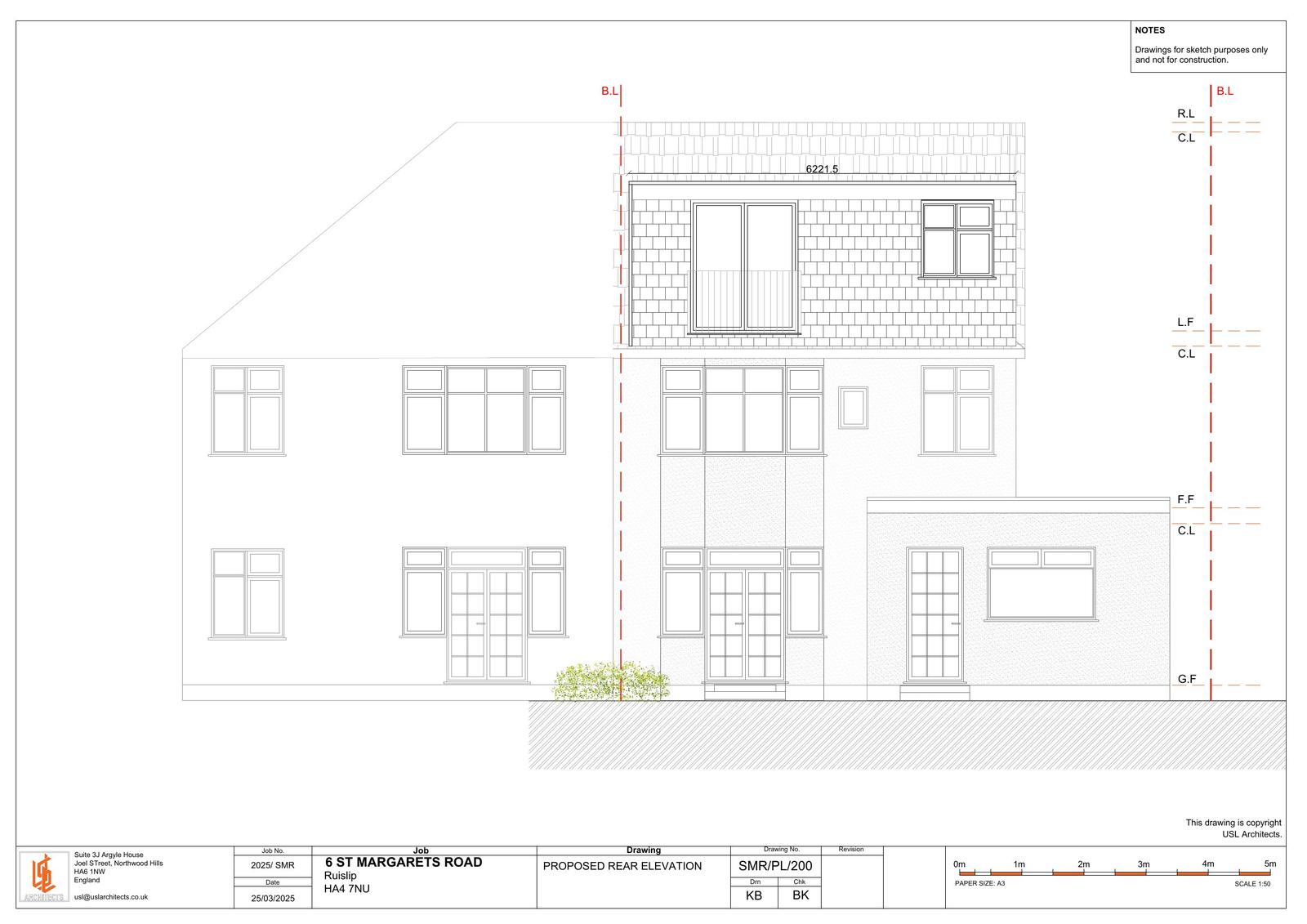
Conversion of roof to habitable use to include a rear dormer with Juliette balcony, 4 no front facing roof lights and conversion from hip to gable end with gable end window.

Documents

Document
Archived · Original link
Document
Archived · Original link
Document
Archived · Original link
Document
Archived · Original link
Document
Archived · Original link
Document
Archived · Original link
Document
Archived · Original link
Document
Archived · Original link
Document
Archived · Original link
Document
Archived · Original link
Document
Archived · Original link
Document
Archived · Original link
Document
Archived · Original link
Document
Archived · Original link
Document
Archived · Original link
Document
Archived · Original link
Document
Archived · Original link
Document
Archived · Original link

Have your say

Your comment matters. Councils must consider every representation that raises material planning considerations.

Write a comment