← London Borough of Hillingdon

Status

Refusal House extension
Received
03 Apr 2025
New homes
0

Full proposal

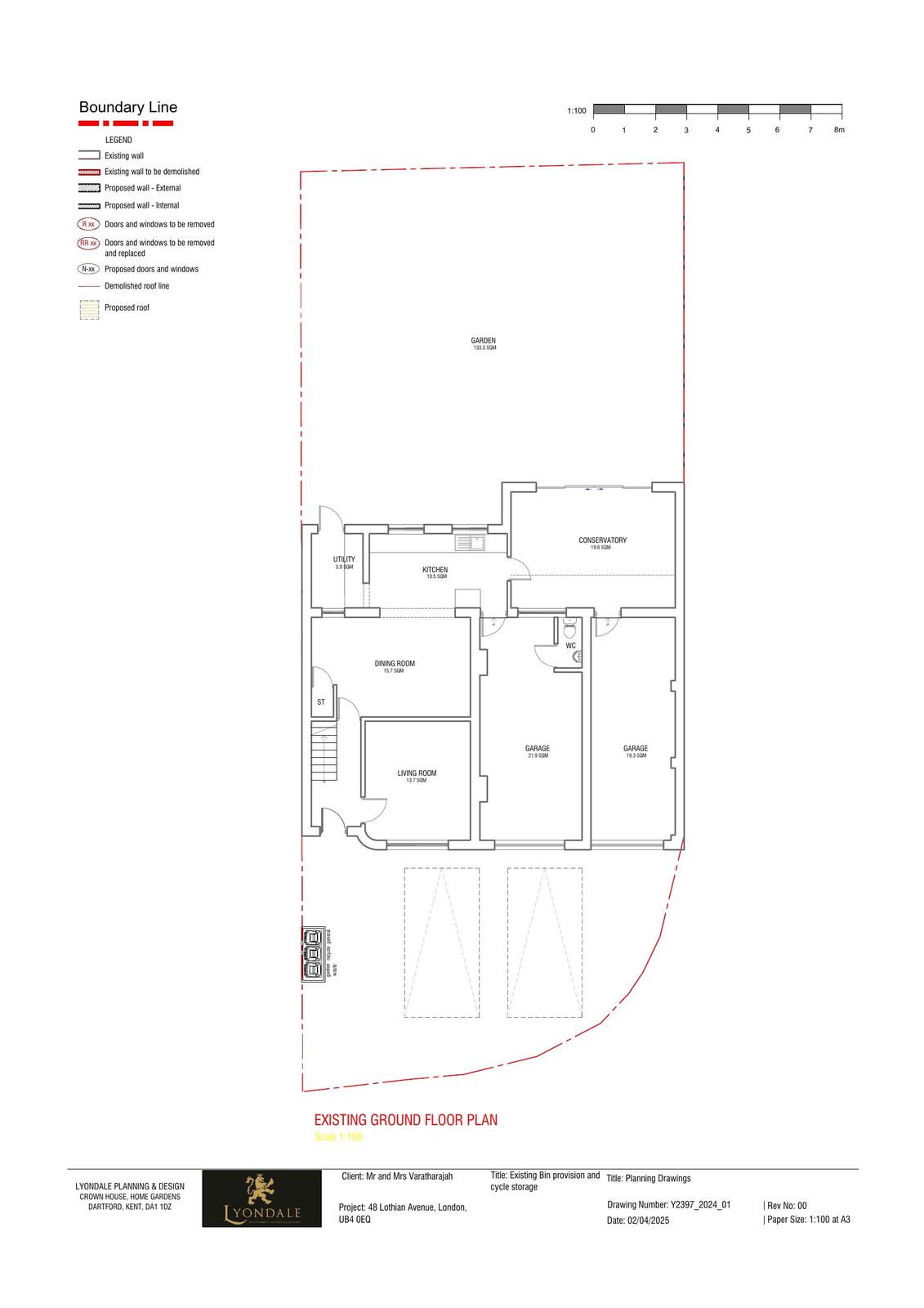
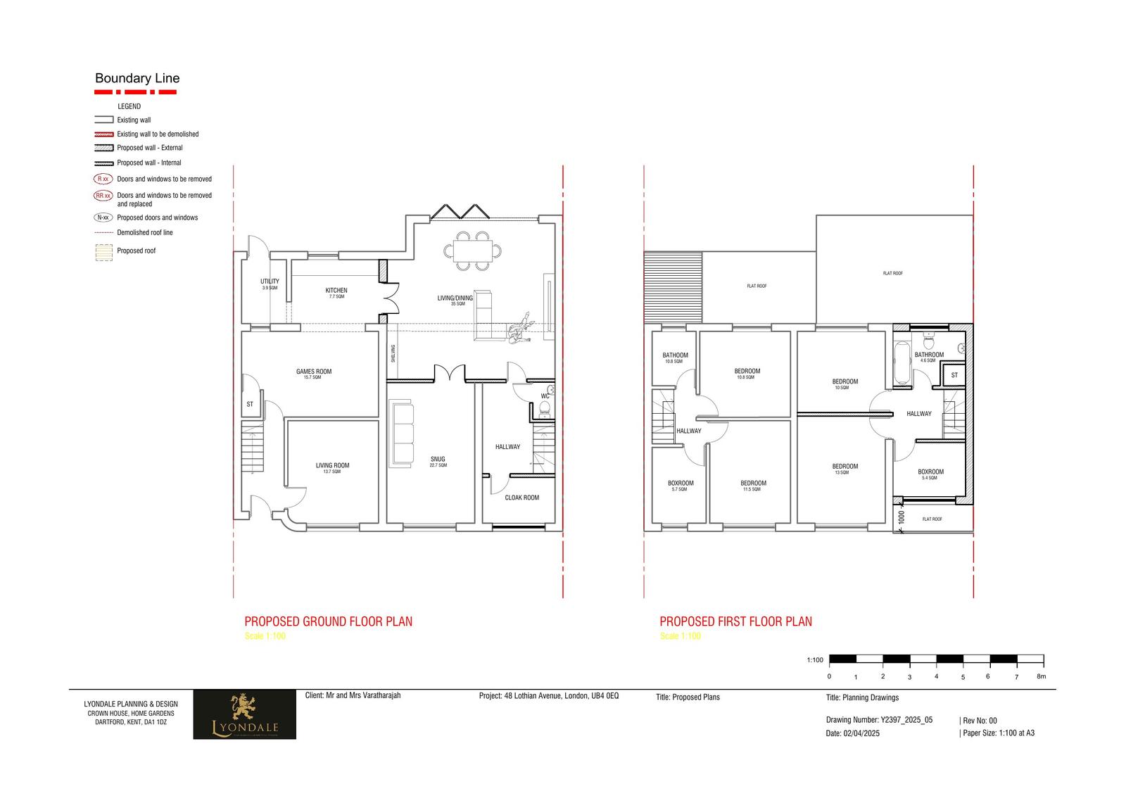
Erection of a single storey first floor extension to the side, conversion of integral garages to habitable accommodation

Documents

Document
Archived · Original link
Document
Archived · Original link
Document
Archived · Original link
Document
Archived · Original link
Document
Archived · Original link
Document
Archived · Original link
Document
Archived · Original link
Document
Archived · Original link
Document
Archived · Original link
Document
Archived · Original link
Document
Archived · Original link
Document
Archived · Original link
Document
Archived · Original link
Document
Archived · Original link

Have your say

Your comment matters. Councils must consider every representation that raises material planning considerations.

Write a comment