← London Borough of Hillingdon

Status

Approval House extension
Received
20 Jan 2025
New homes
0

Full proposal

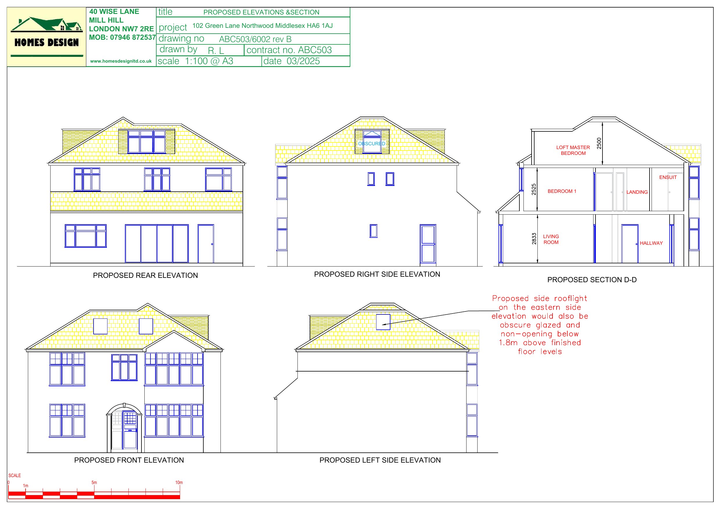
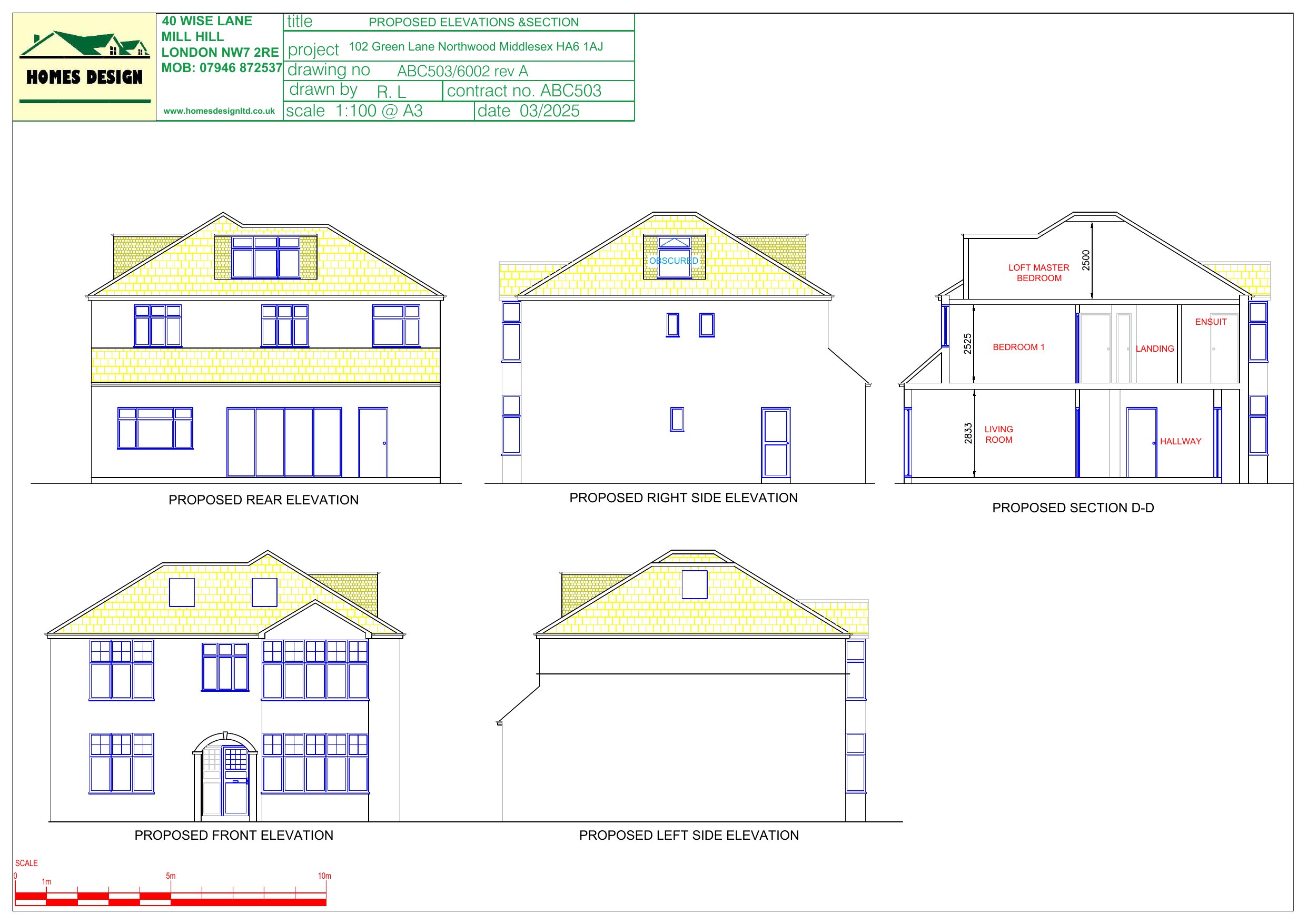
Conversion of roof space to habitable use to include rear dormer, side dormer, side roof light and 2 front roof lights. Conversion of existing integral garage to habitable use.

Documents

Document
Archived · Original link
Document
Archived · Original link
Document
Archived · Original link
Document
Archived · Original link
Document
Archived · Original link
Document
Archived · Original link
Document
Archived · Original link
Document
Archived · Original link
Document
Archived · Original link
Document
Archived · Original link
Document
Archived · Original link
Document
Archived · Original link
Document
Archived · Original link
Document
Archived · Original link
Document
Archived · Original link
Document
Archived · Original link

Have your say

Your comment matters. Councils must consider every representation that raises material planning considerations.

Write a comment