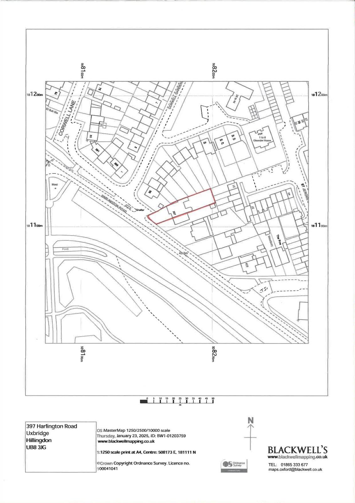
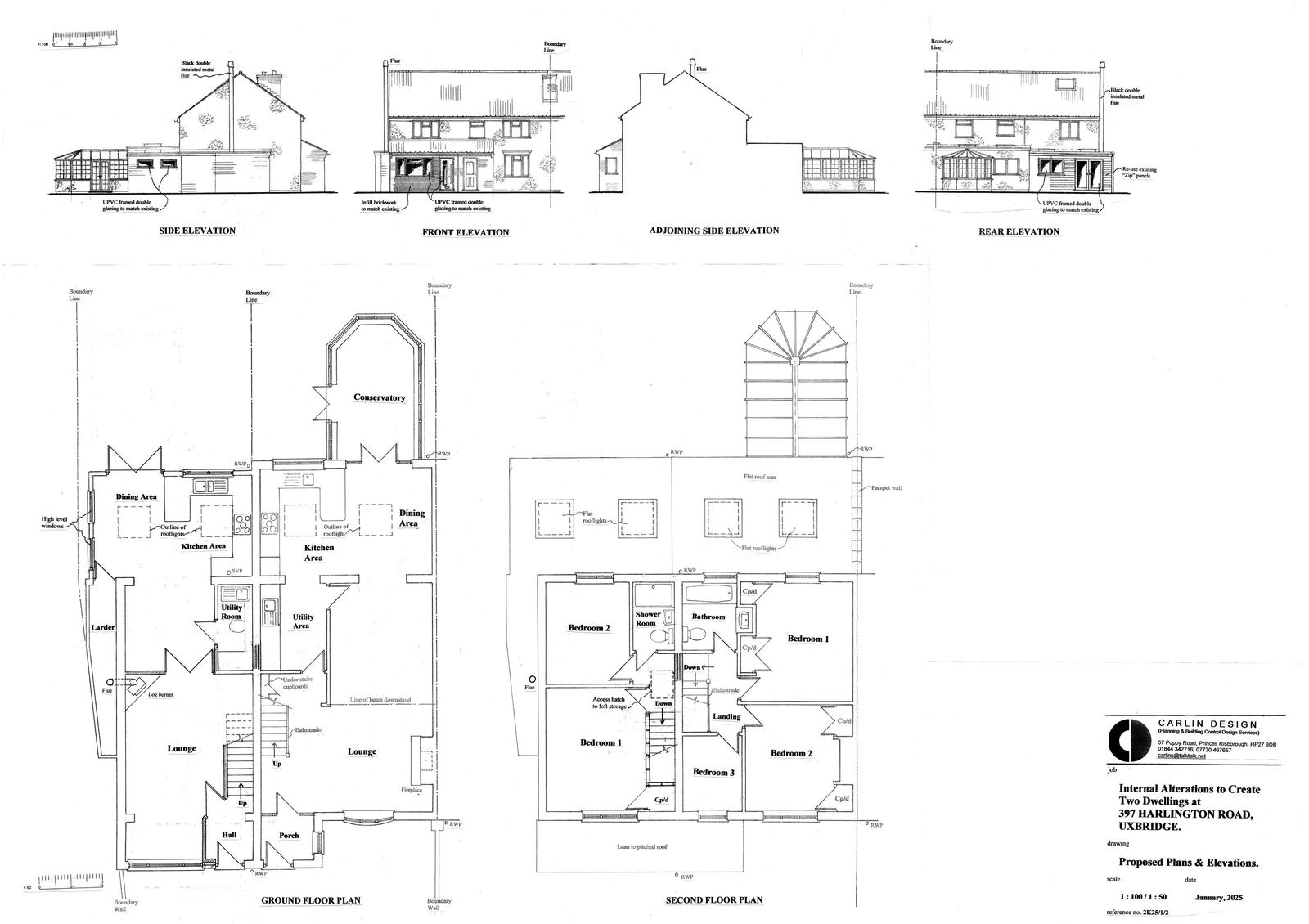
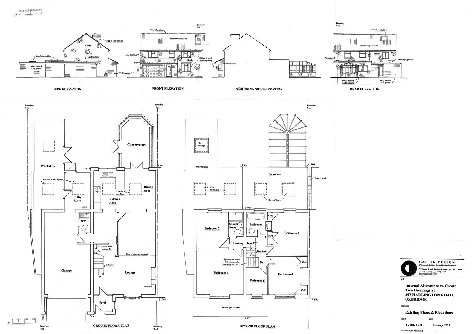
← London Borough of Hillingdon

Status

Approval Change of use
Received
06 Mar 2025
New homes
1

Full proposal

Conversion of single dwellinghouse into two dwellinghouses including conversion of garage into habitable space, partial demolition of existing rear extension, and amendments to fenestrations.

Documents

Document
Archived · Original link
Document
Archived · Original link
Document
Archived · Original link
Document
Archived · Original link
Document
Archived · Original link
Document
Archived · Original link
Document
Archived · Original link
Document
Archived · Original link

Have your say

Your comment matters. Councils must consider every representation that raises material planning considerations.

Write a comment