← London Borough of Hillingdon

Status

Approval Change of use
Received
07 Mar 2025
New homes
0

Full proposal

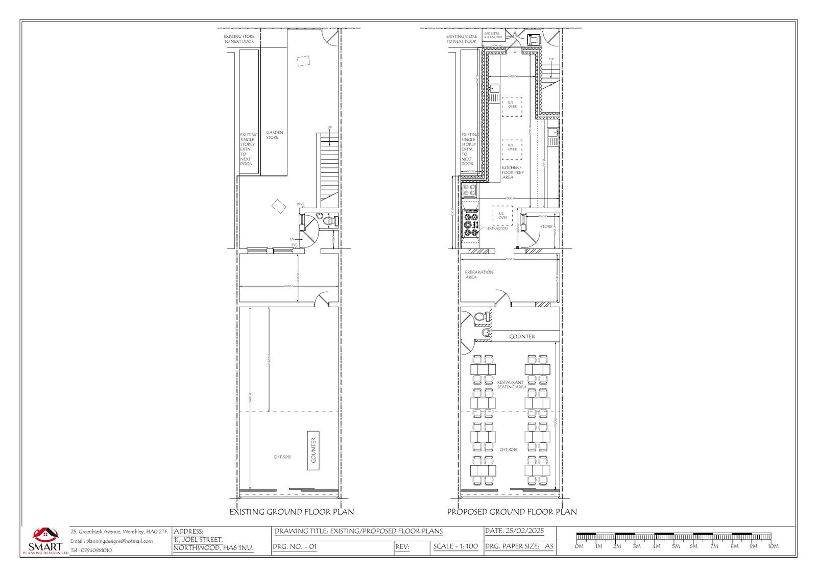
Erection of single-storey rear extension and conversion of the premises from retail shop to a restaurant, including the erection of a chimney/flue and alterations to external stairs.

Documents

Document
Archived · Original link
Document
Archived · Original link
Document
Archived · Original link
Document
Archived · Original link
Document
Archived · Original link

Have your say

Your comment matters. Councils must consider every representation that raises material planning considerations.

Write a comment