← Back to London Borough of Hillingdon
Application
19713/APP/2025/154
London Borough of Hillingdon · OCELLA
Status
Prior Approval N/Req
House extension
Received
21 Jan 2025
New dwellings
0
What you can do
Take Action
Make your voice heard. Authorities need to hear from people who support new homes.
Summary
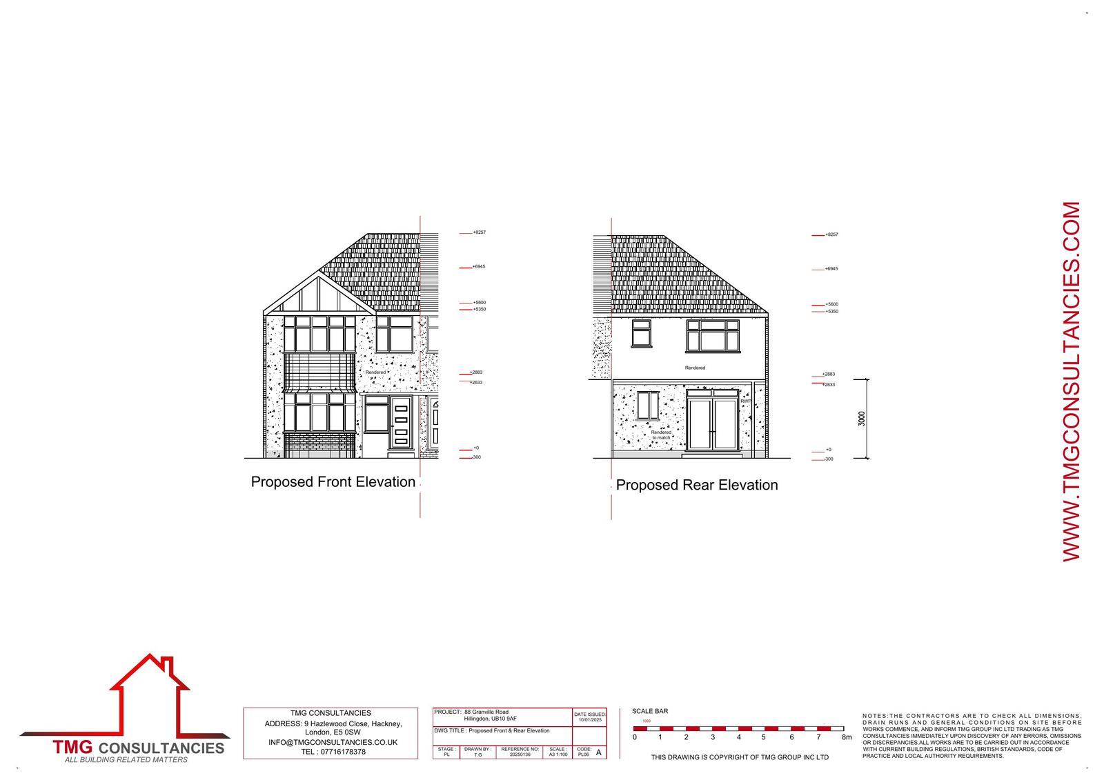
Single storey rear extension projecting 4.00m, maximum and eaves height 3.00m.
Full Proposal
Erection of a single storey rear extension, which would extend beyond the rear wall of the original house by 4.00 metres, for which the maximum height would be 3.00 metres, and for which the height of the eaves would be 3.00 metres
Detail pages
- View live detail on council site
- No archived detail page available.
Documents
APPLICATION FORM
Document
Not downloaded
· Council link
BLOCK PLAN
Document
Not downloaded
· Council link
DECISION NOTICE
Document
Not downloaded
· Council link
EXISTING ELEVATIONS
Document
Not downloaded
· Council link
EXISTING FLOOR PLANS
Document
Not downloaded
· Council link
EXISTING FRONT ELEVATIONS
Document
Not downloaded
· Council link
LOCATION PLAN
Document
Not downloaded
· Council link
OFFICERS REPORTS
Document
Not downloaded
· Council link
PROPOSED ELEVATIONS
Document
Not downloaded
· Council link
PROPOSED ELEVATIONS
Document
Not downloaded
· Council link
PROPOSED FLOOR PLANS
Document
Archived copy
· Council link
SITE LAYOUT - EXISTING
Document
Not downloaded
· Council link