← London Borough of Hillingdon
20093/APP/2025/1111
London Borough of Hillingdon
Status
Approval
House extension
Received
18 Apr 2025
New homes
0
Summary
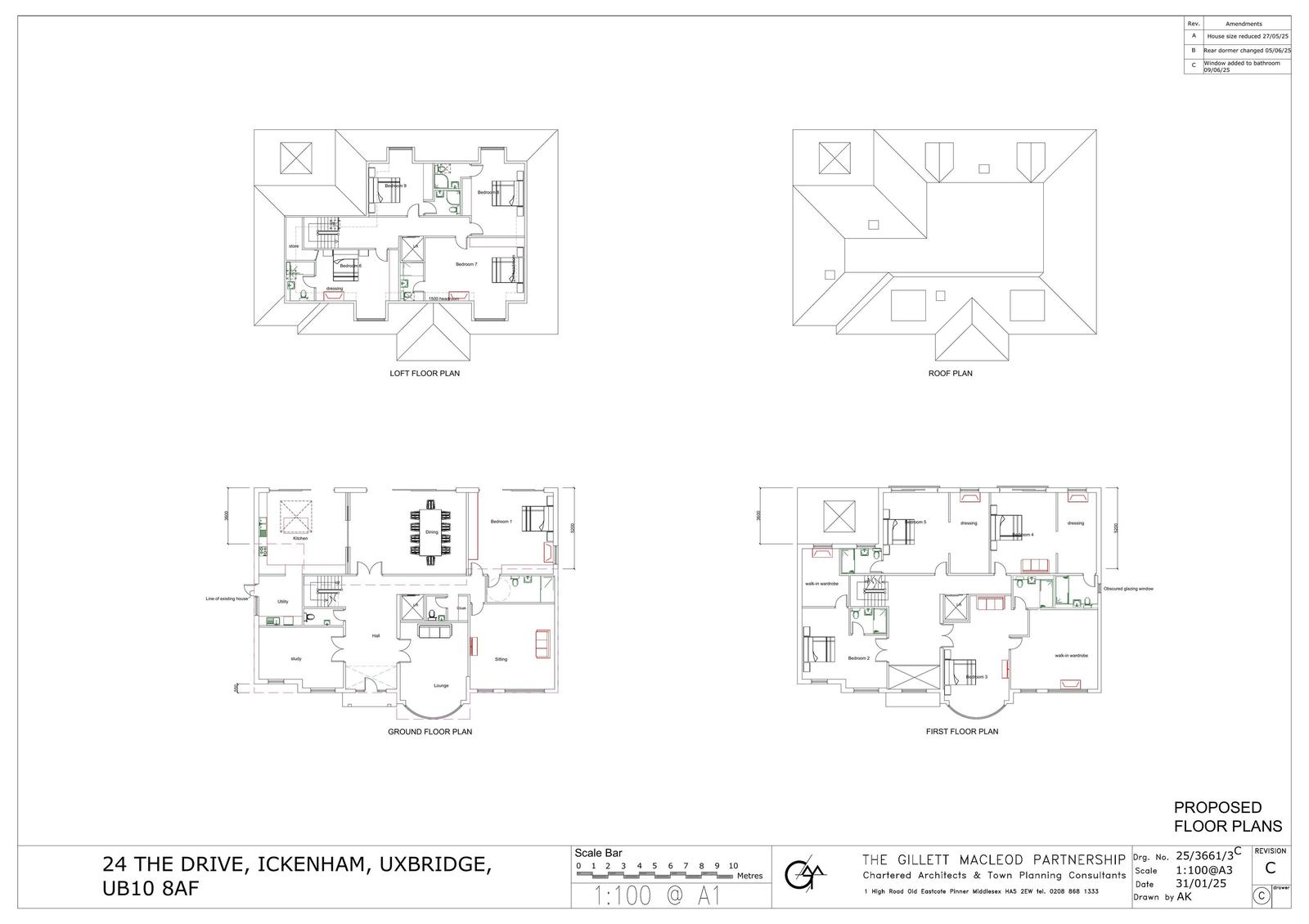
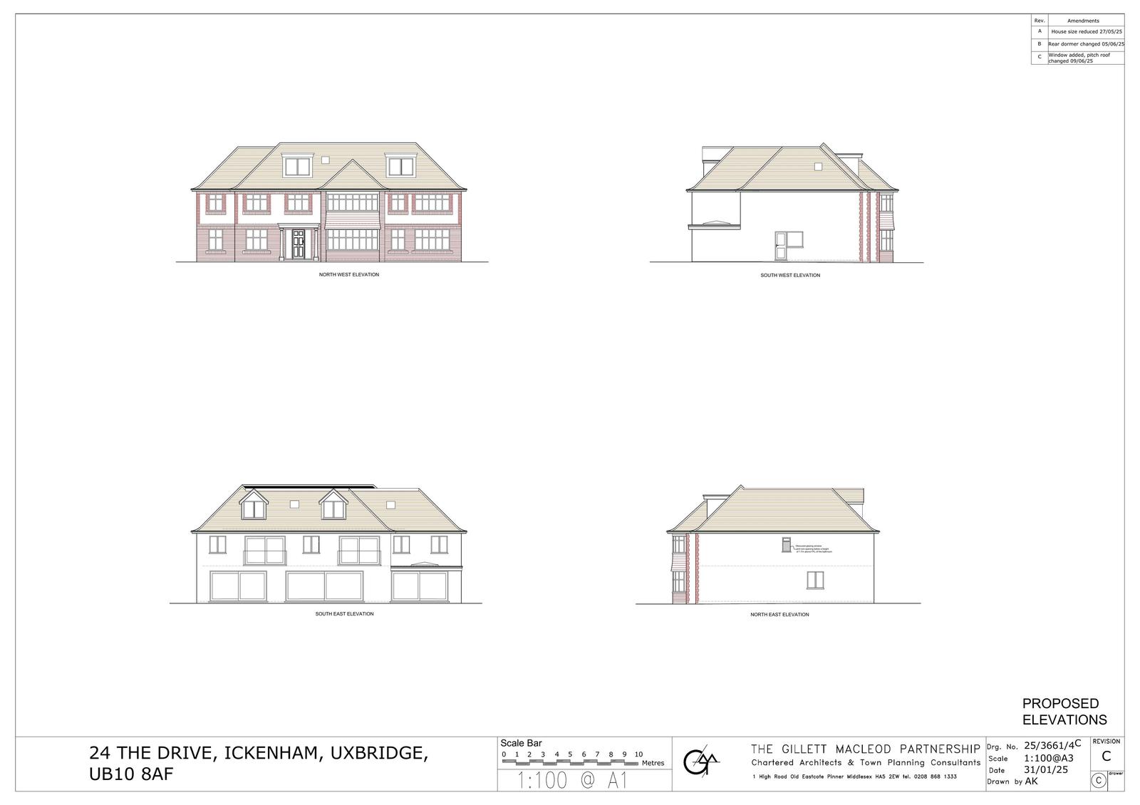
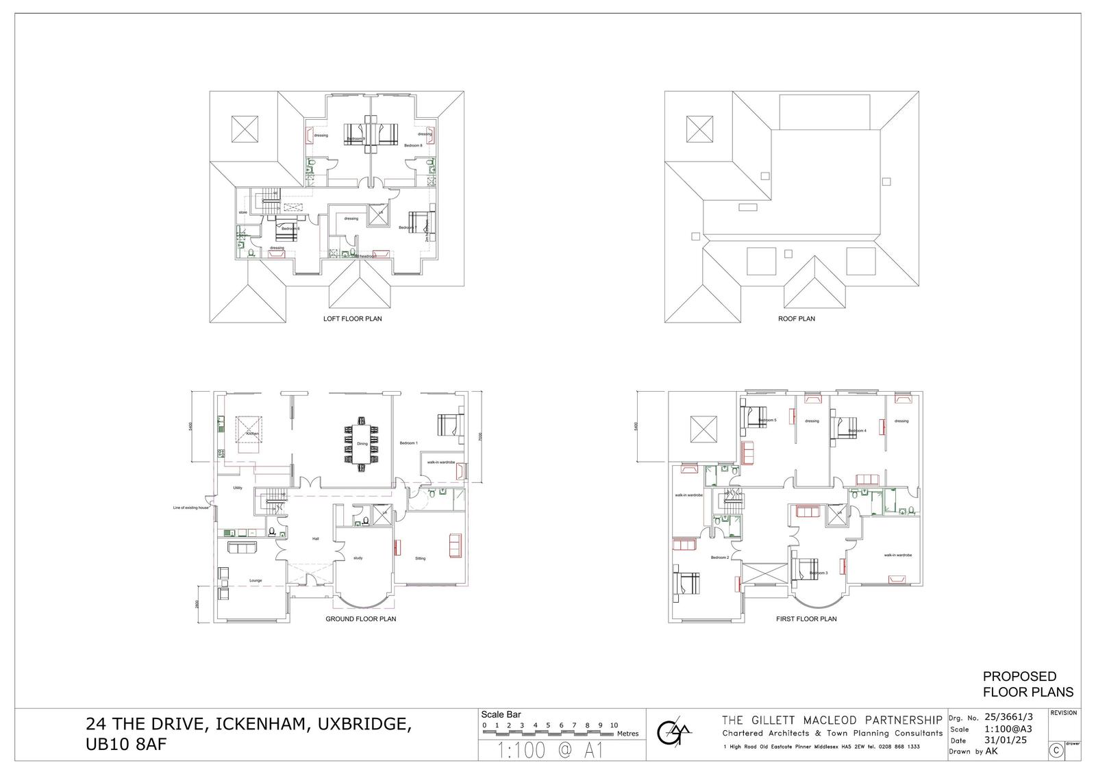
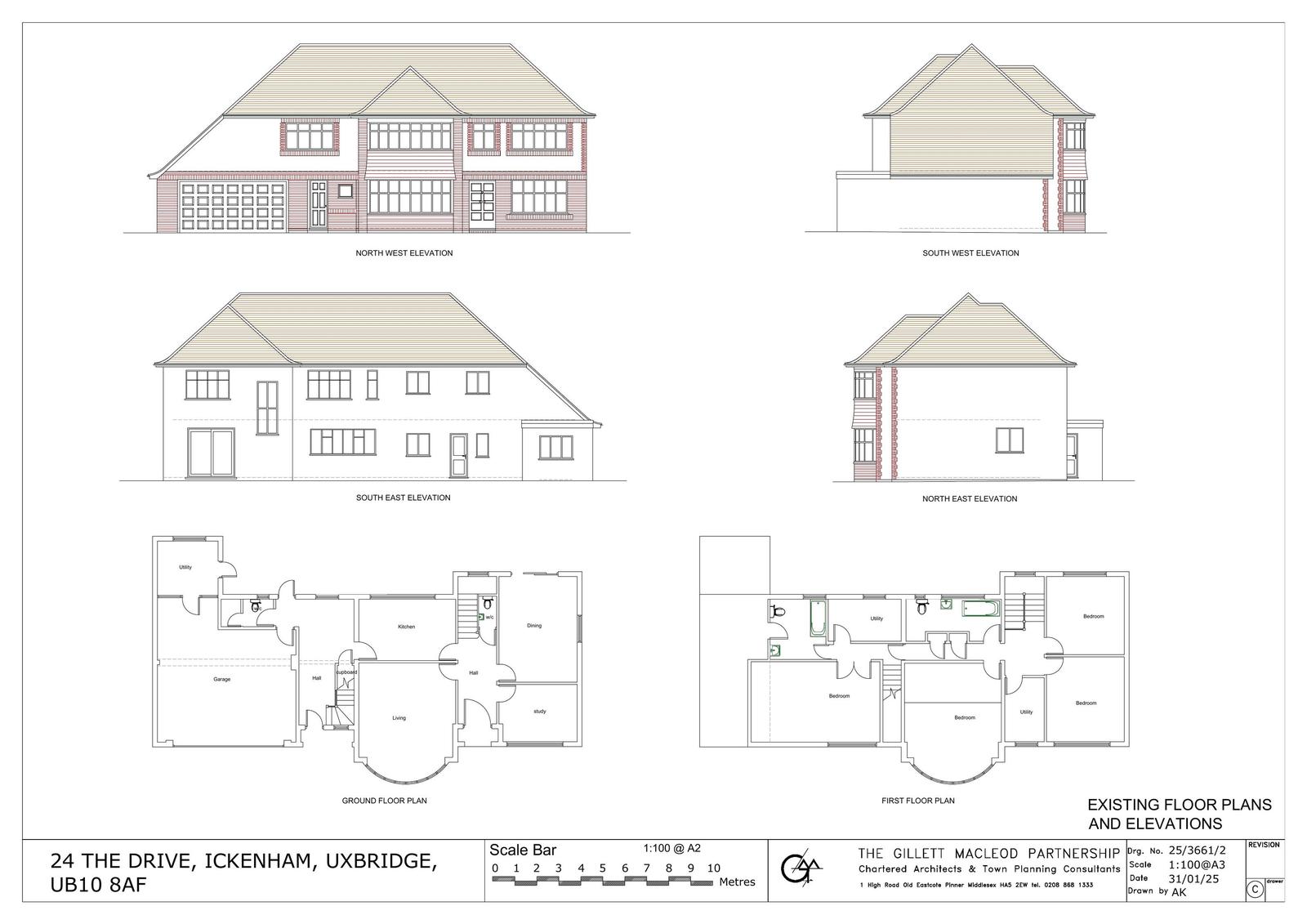
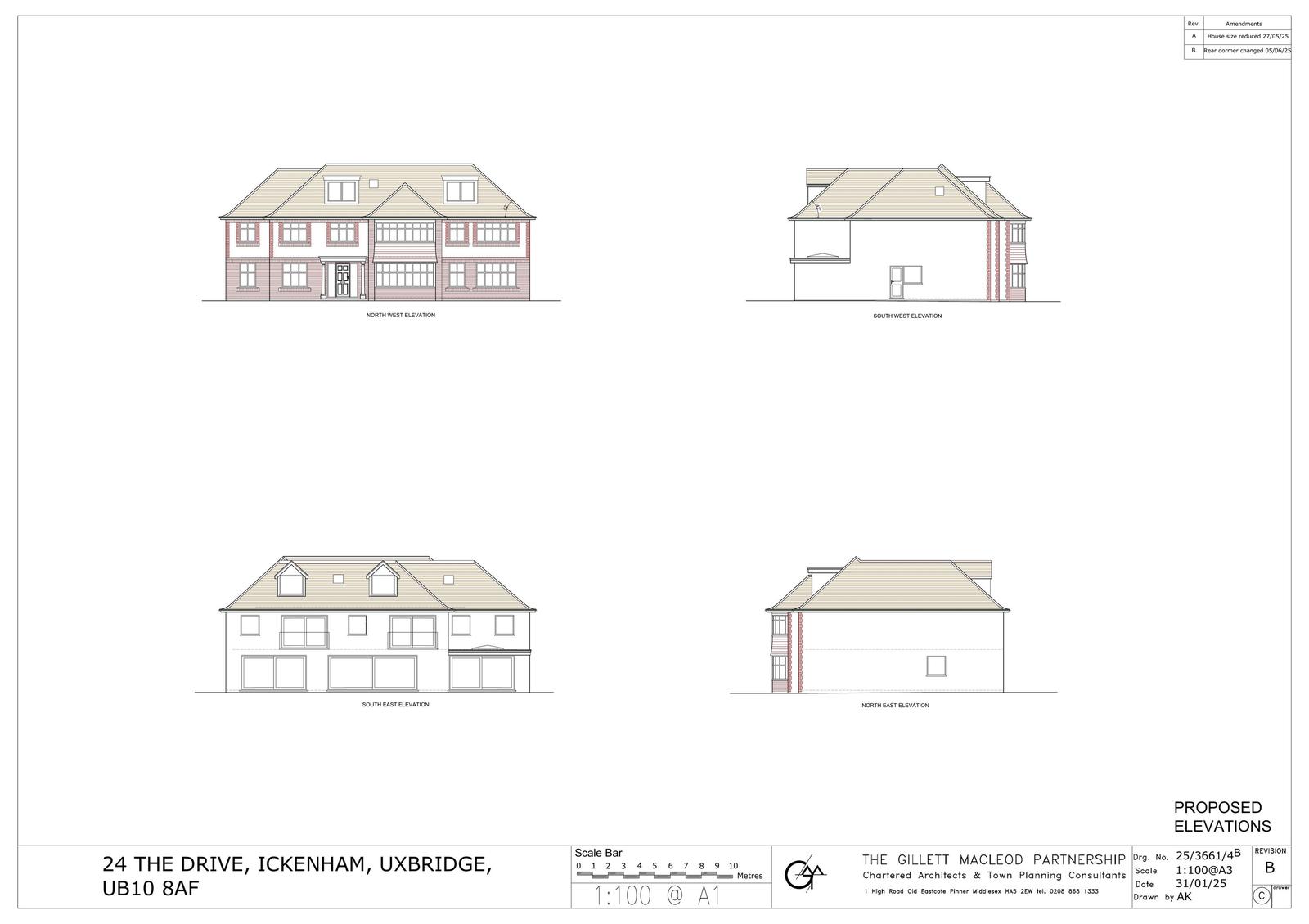
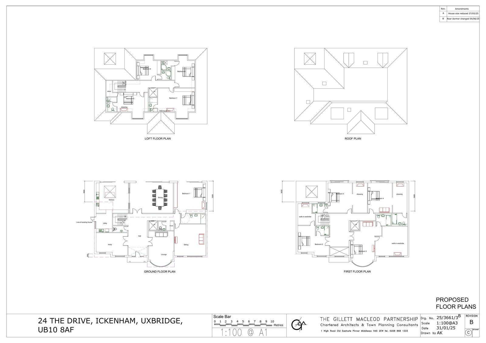
Part single- and two-storey front, side and rear extensions, garage conversion and loft conversion with dormers.
Full proposal
Erection of part single-storey, part two-storey front, side, and rear extensions, including conversion of existing garage into habitable space, conversion of roof space into habitable space including the construction of two rear dormers, two front dormers, the installation of four roof lights, and amendments to fenestration.
Documents
Have your say
Your comment matters. Councils must consider every representation that raises material planning considerations.