← London Borough of Hillingdon

Status

Approval House extension
Received
30 May 2025
New homes
0

Summary

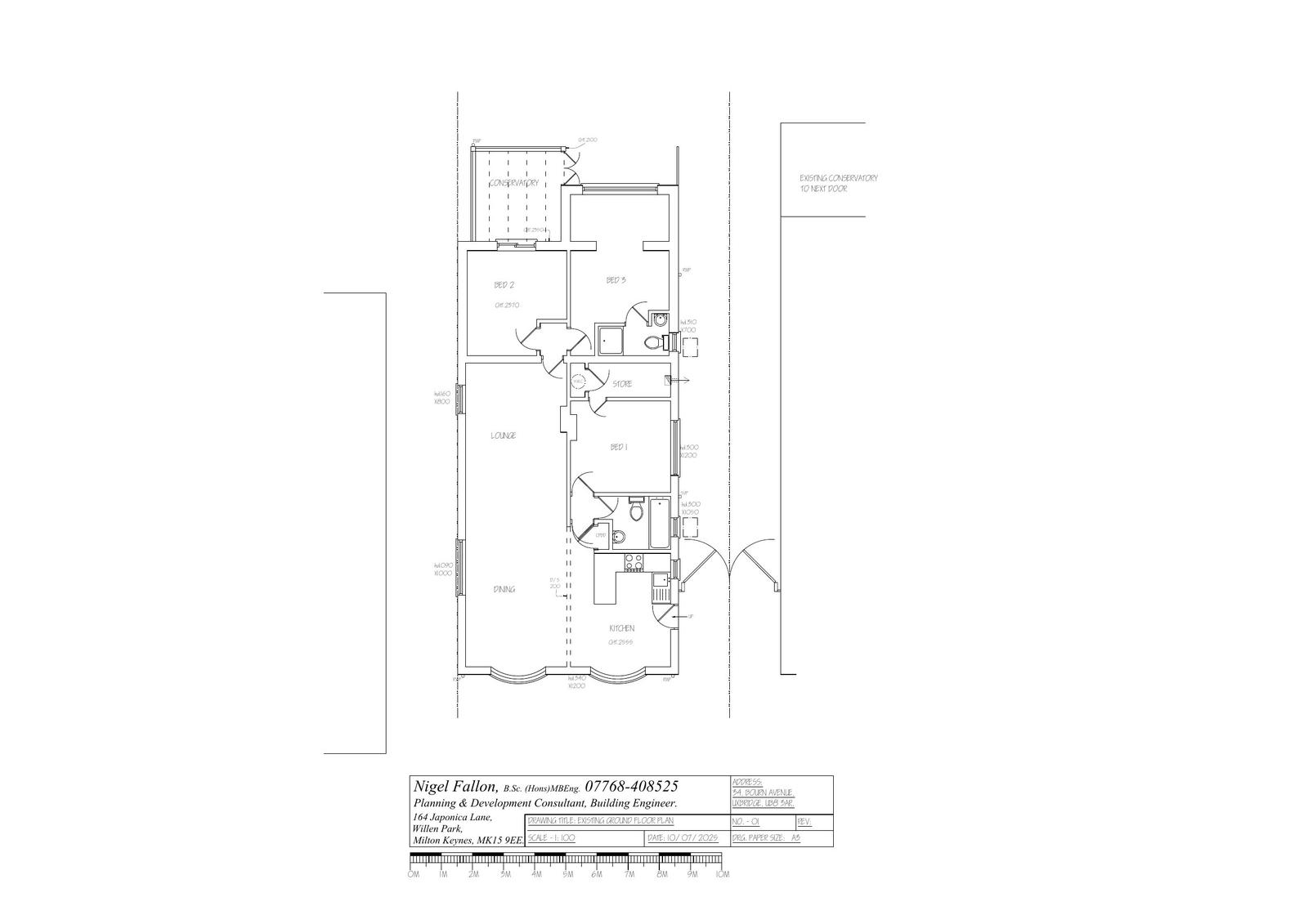
Single storey rear extension plus roofspace conversion and extension with raised ridge, side rooflights and five side dormers.

Full proposal

Erection of a single storey extension to the rear, conversion, and extension of roof space to habitable use to include, raising roof ridge, side rooflights and 5x dormers to the side (amended description)

Documents

Document
Archived · Original link
Document
Archived · Original link
Document
Archived · Original link
Document
Archived · Original link
Document
Archived · Original link
Document
Archived · Original link

Have your say

Your comment matters. Councils must consider every representation that raises material planning considerations.

Write a comment