← London Borough of Hillingdon
23271/APP/2025/1515
London Borough of Hillingdon
Status
Approval
New housing
Received
30 May 2025
New homes
1
Summary
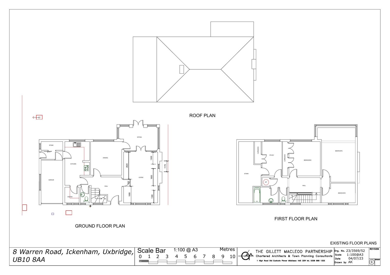
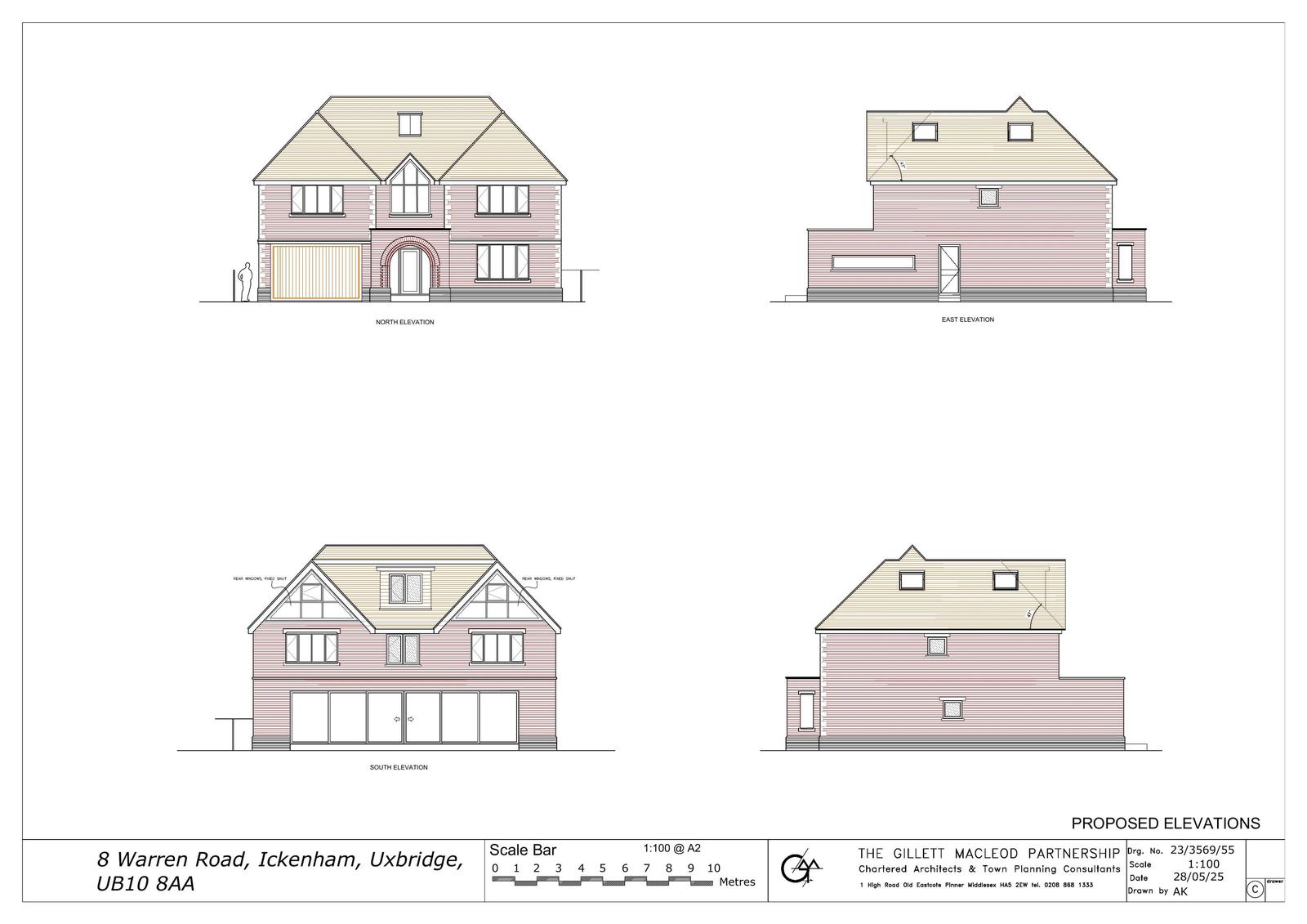
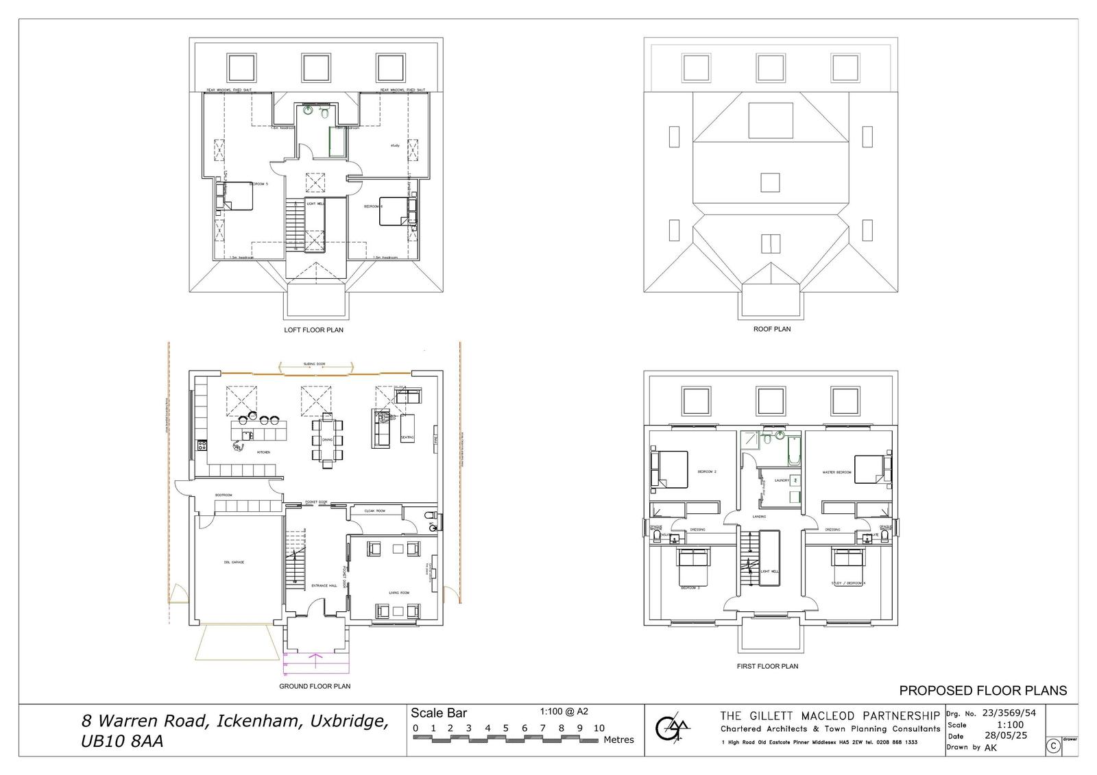
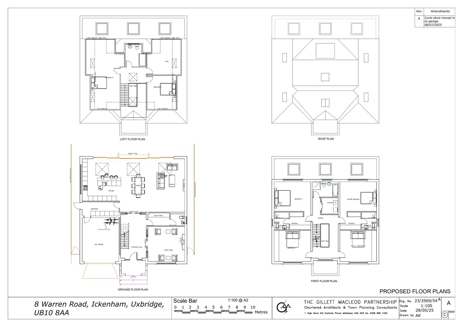
Demolition of existing two‑storey house and erection of new two‑storey house with habitable loft rooms.
Full proposal
Demolition of existing two storey detached dwelling house and erection of two storey detached dwelling house with habitable rooms in loft space.
Documents
Have your say
Your comment matters. Councils must consider every representation that raises material planning considerations.