← London Borough of Hillingdon
23443/APP/2025/919
London Borough of Hillingdon
Status
Prior Approval N/Req
House extension
Received
28 Mar 2025
New homes
0
Full proposal
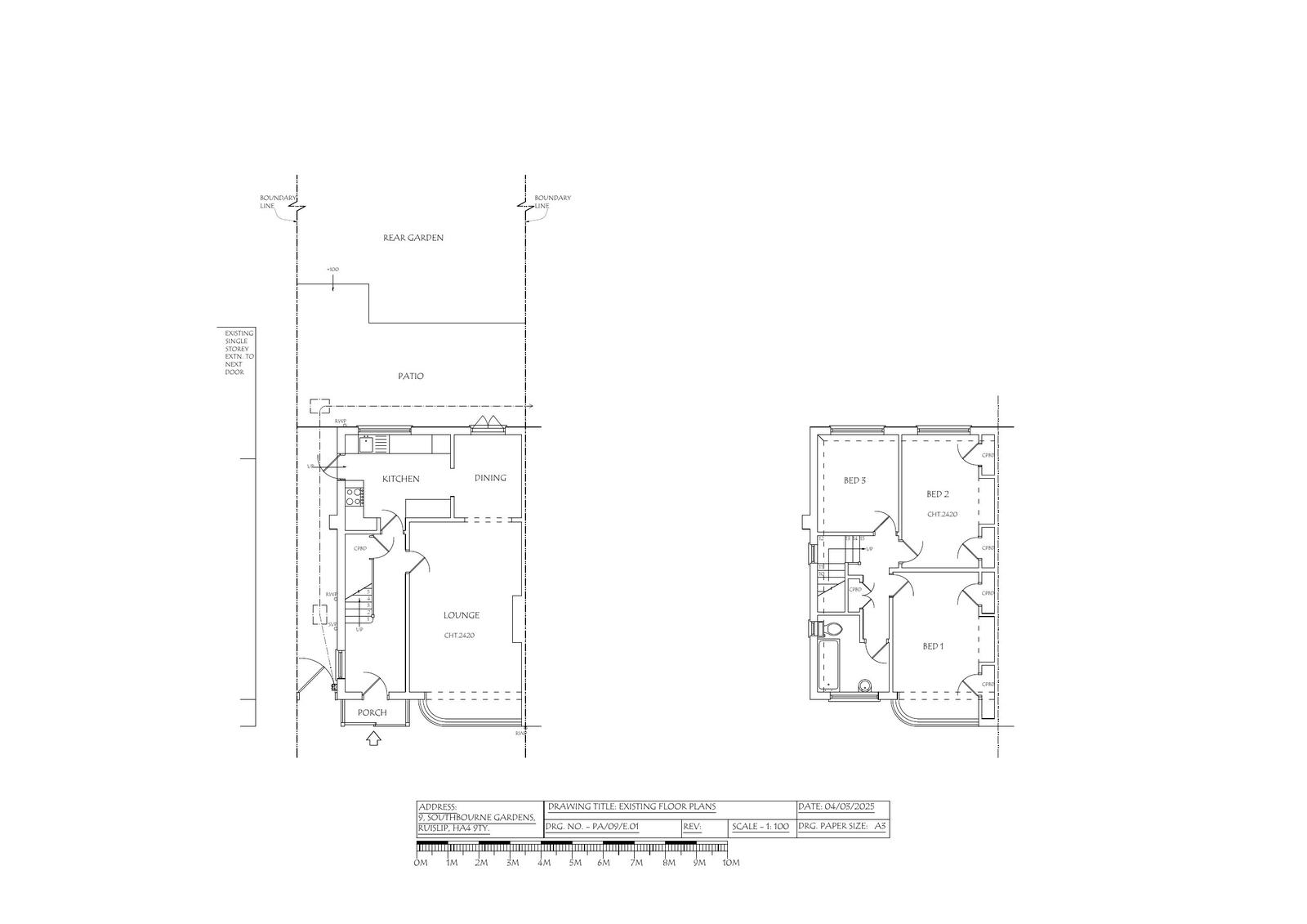
Erection of single-storey rear extension, which would extend beyond the rear wall of the original house by 4.00 metres, for which the maximum height would be 3.53 metres, and for which the height of the eaves would be 2.46 metres
Documents
Have your say
Your comment matters. Councils must consider every representation that raises material planning considerations.