← London Borough of Hillingdon
24192/APP/2025/1179
London Borough of Hillingdon
Status
Prior Approval N/Req
House extension
Received
25 Apr 2025
New homes
0
Full proposal
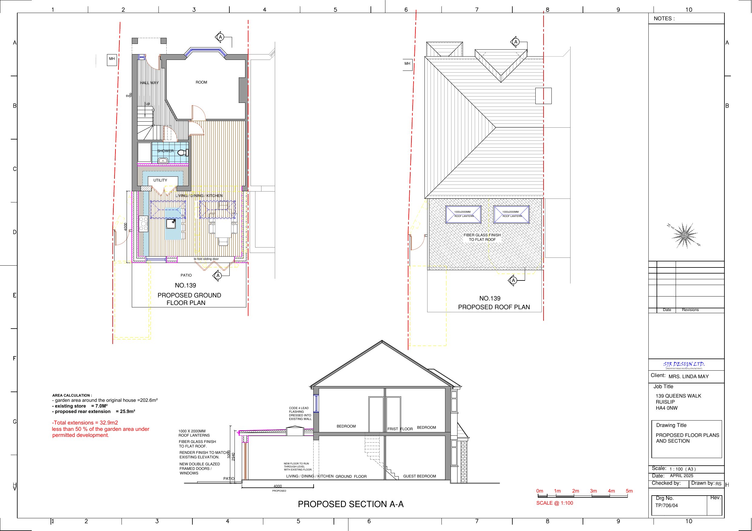
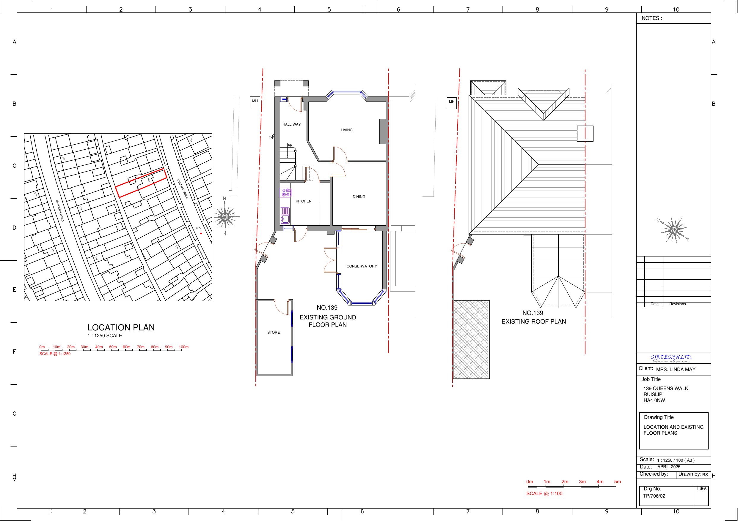
Erection of a single storey rear extension, which would extend beyond the rear wall of the original house by 4.00 metres, for which the maximum height would be 3.20 metres, and for which the height of the eaves would be 2.94 metres.
Documents
Have your say
Your comment matters. Councils must consider every representation that raises material planning considerations.