← London Borough of Hillingdon

Status

Approval House extension
Received
14 Jan 2025
New homes
0

Summary

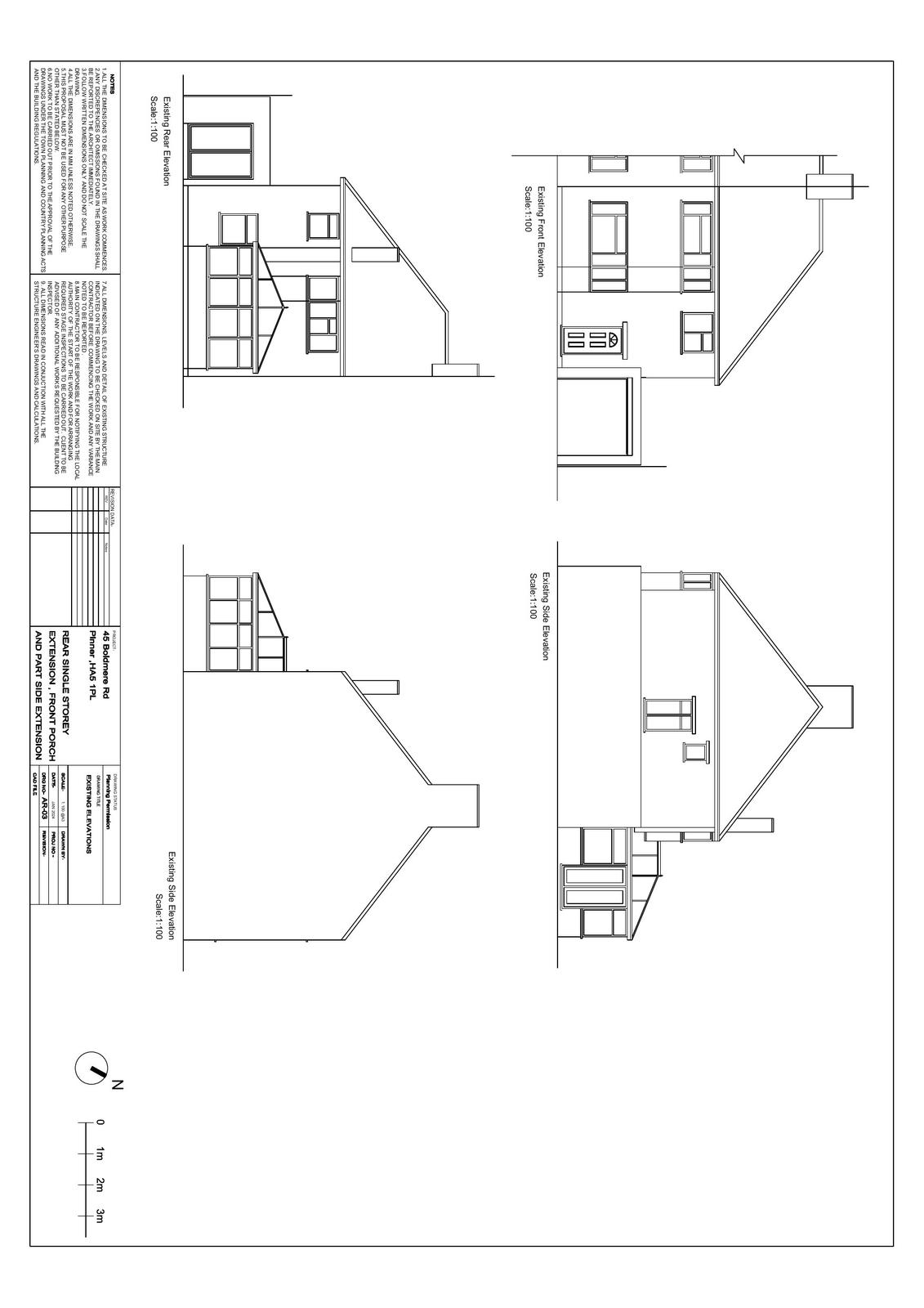
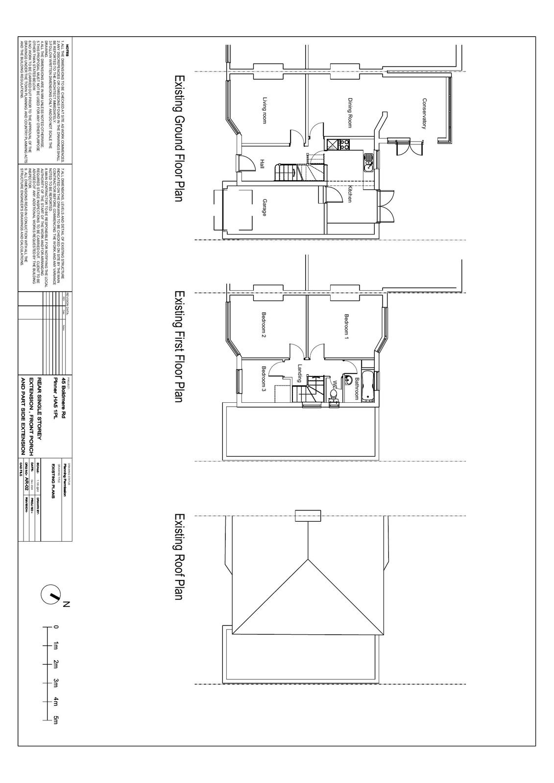
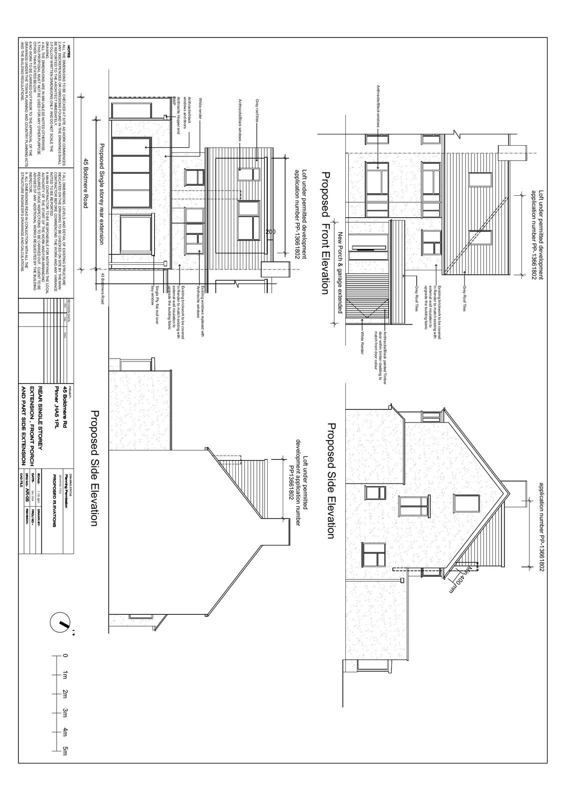
Single-storey rear extension, garage conversion, front porch and roof space conversion with dormer.

Full proposal

Erection of a single storey extension to the rear, partial demolition and conversion of integral garage to habitable accommodation, erection of front porch, conversion of roof space to habitable use to include a rear dormer with 2 front roof lights, conversion of roof from hip to gable end with new gable end window

Documents

Document
Archived · Original link
Document
Archived · Original link
Document
Archived · Original link
Document
Archived · Original link
Document
Archived · Original link
Document
Archived · Original link
Document
Archived · Original link
Document
Archived · Original link
Document
Archived · Original link
Document
Archived · Original link

Have your say

Your comment matters. Councils must consider every representation that raises material planning considerations.

Write a comment