← London Borough of Hillingdon

Status

Approval House extension
Received
17 Apr 2025
New homes
0

Summary

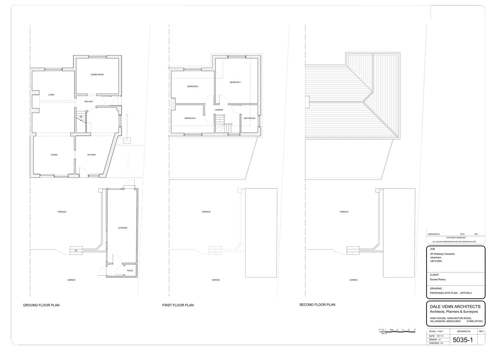
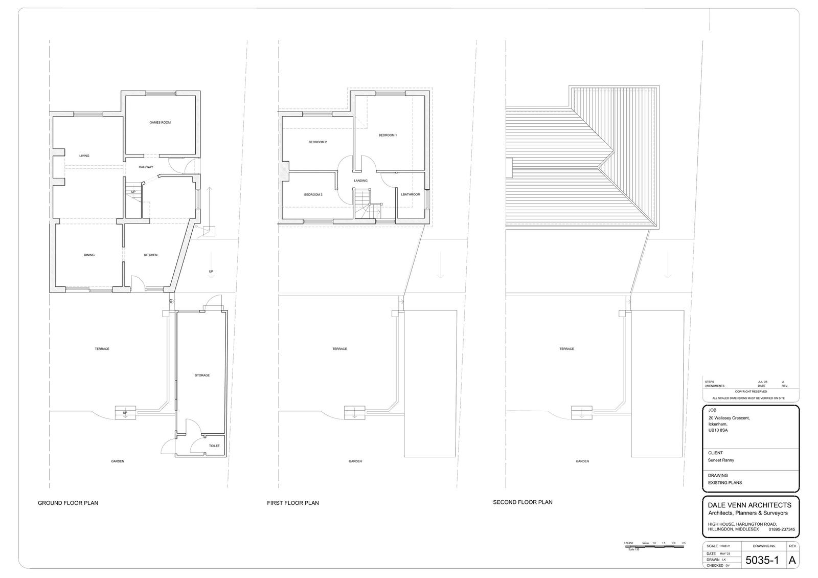
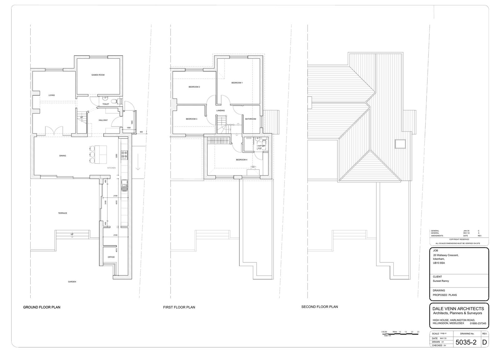
Part single-storey, part two-storey rear/side extension with front porch to dwelling.

Full proposal

Erection of a part single storey, part two storey rear/side extension, erection of front porch.

Documents

Document
Archived · Original link
Document
Archived · Original link
Document
Archived · Original link
Document
Archived · Original link
Document
Archived · Original link
Document
Archived · Original link
Document
Archived · Original link
Document
Archived · Original link
Document
Archived · Original link
Document
Archived · Original link
Document
Archived · Original link

Have your say

Your comment matters. Councils must consider every representation that raises material planning considerations.

Write a comment