← London Borough of Hillingdon

Status

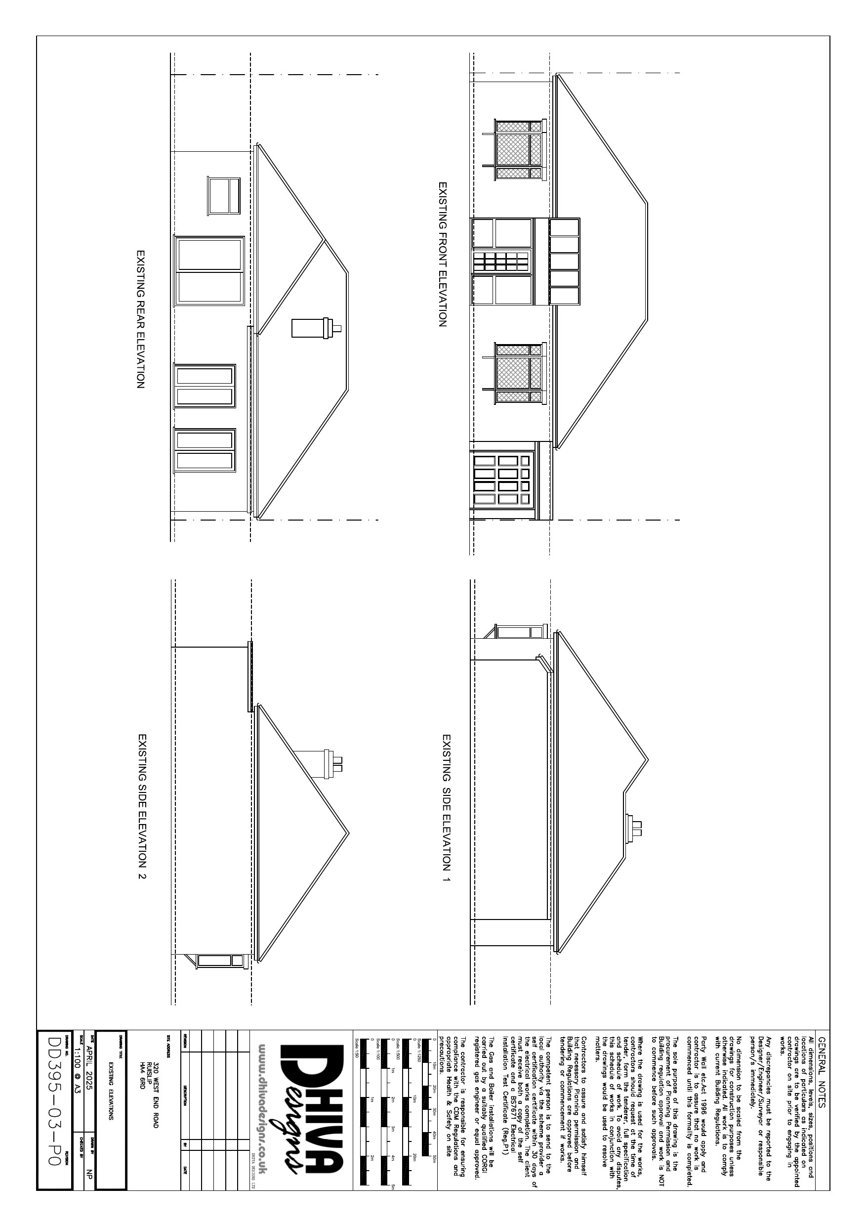
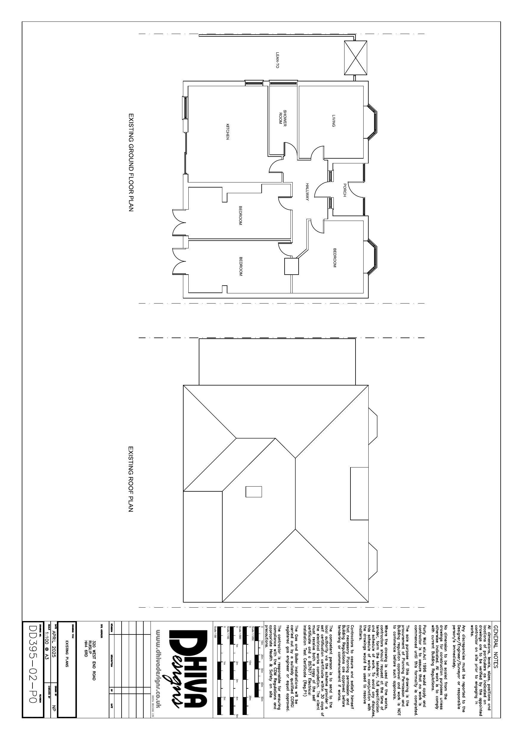
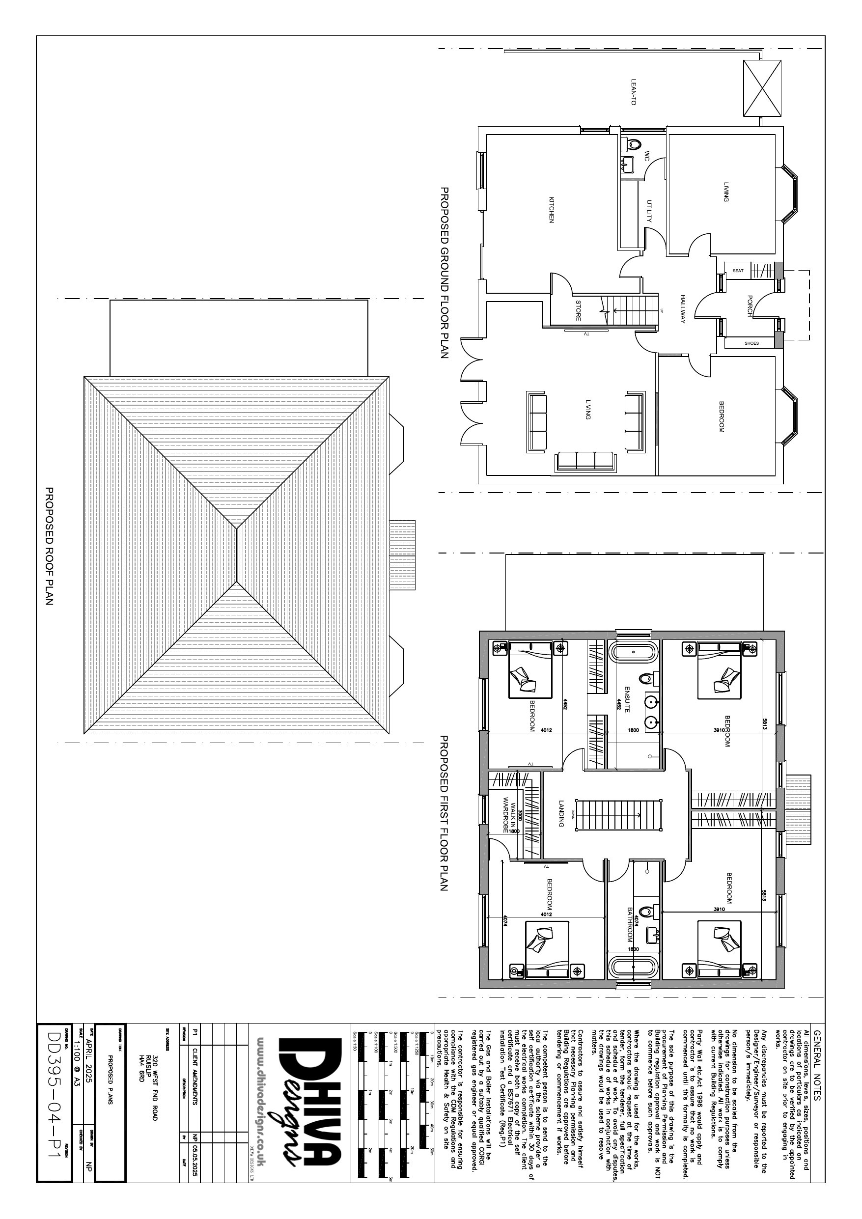
Approval House extension
Received
08 May 2025
New homes
0

Full proposal

Erection of an additional floor to bungalow including new windows and hipped roof.

Documents

Document
Archived · Original link
Document
Archived · Original link
Document
Archived · Original link
Document
Archived · Original link
Document
Archived · Original link
Document
Archived · Original link
Document
Archived · Original link
Document
Archived · Original link

Have your say

Your comment matters. Councils must consider every representation that raises material planning considerations.

Write a comment