← London Borough of Hillingdon
25645/APP/2025/538
London Borough of Hillingdon
Status
Approval
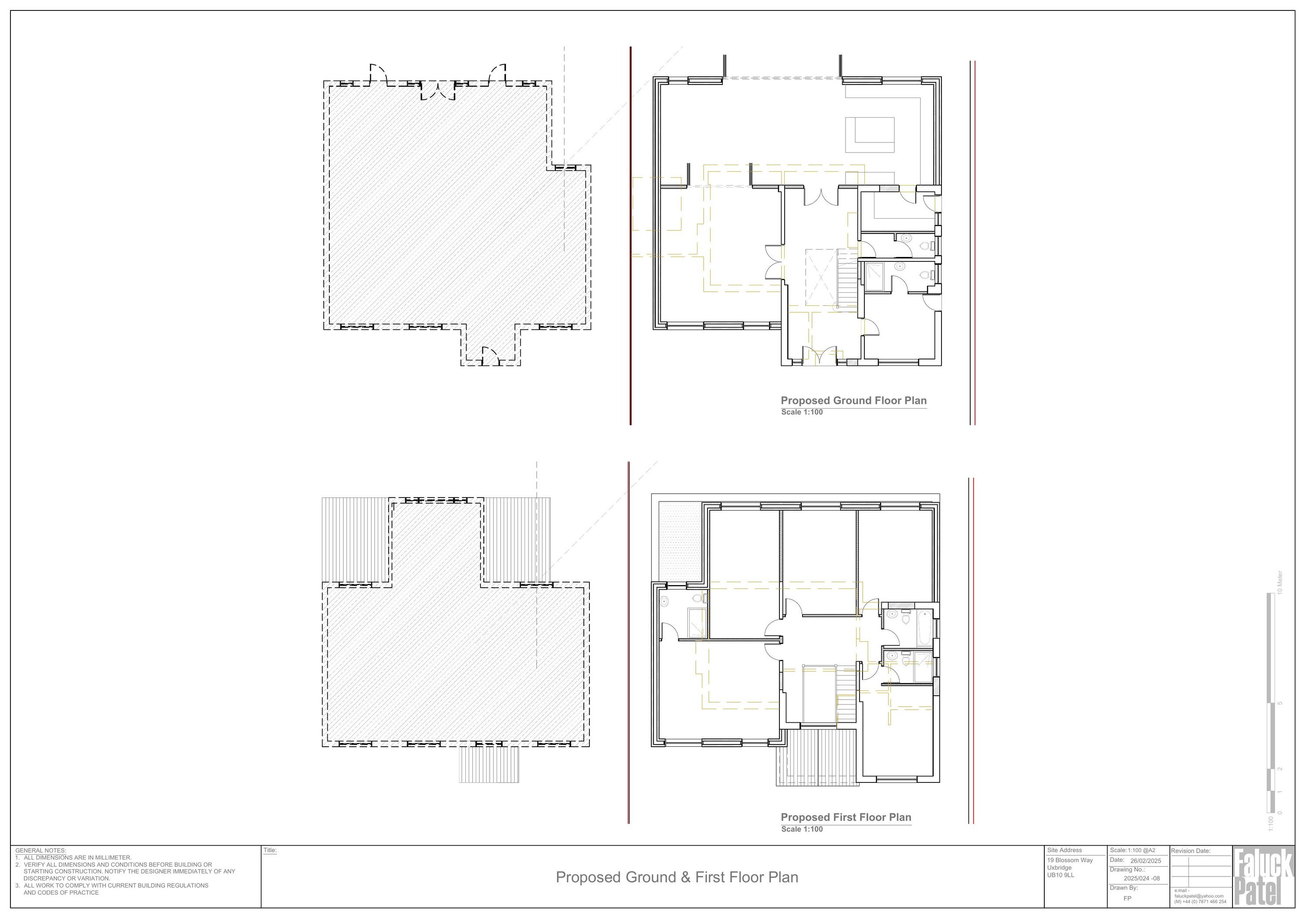
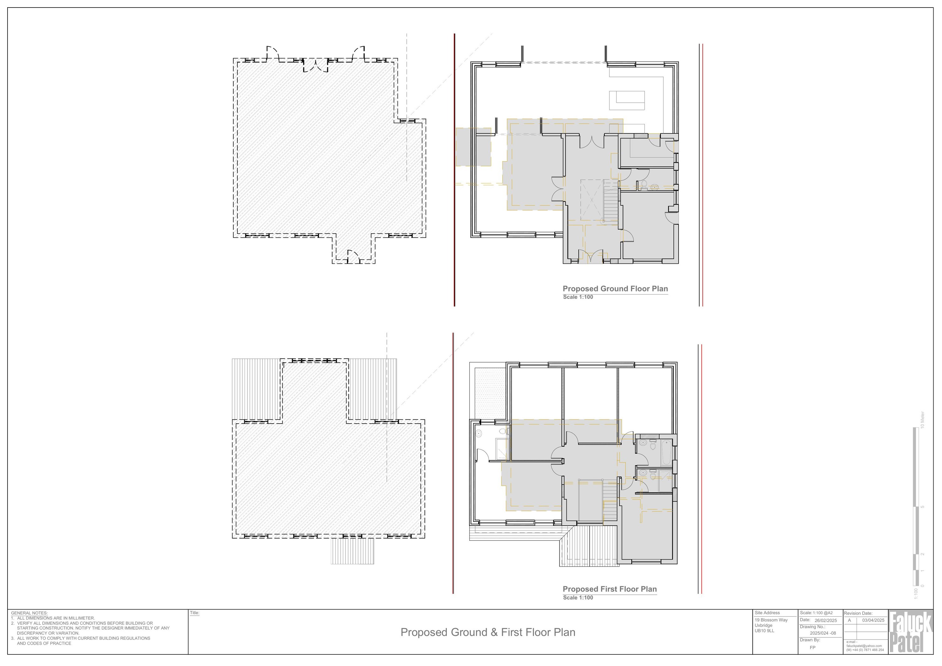
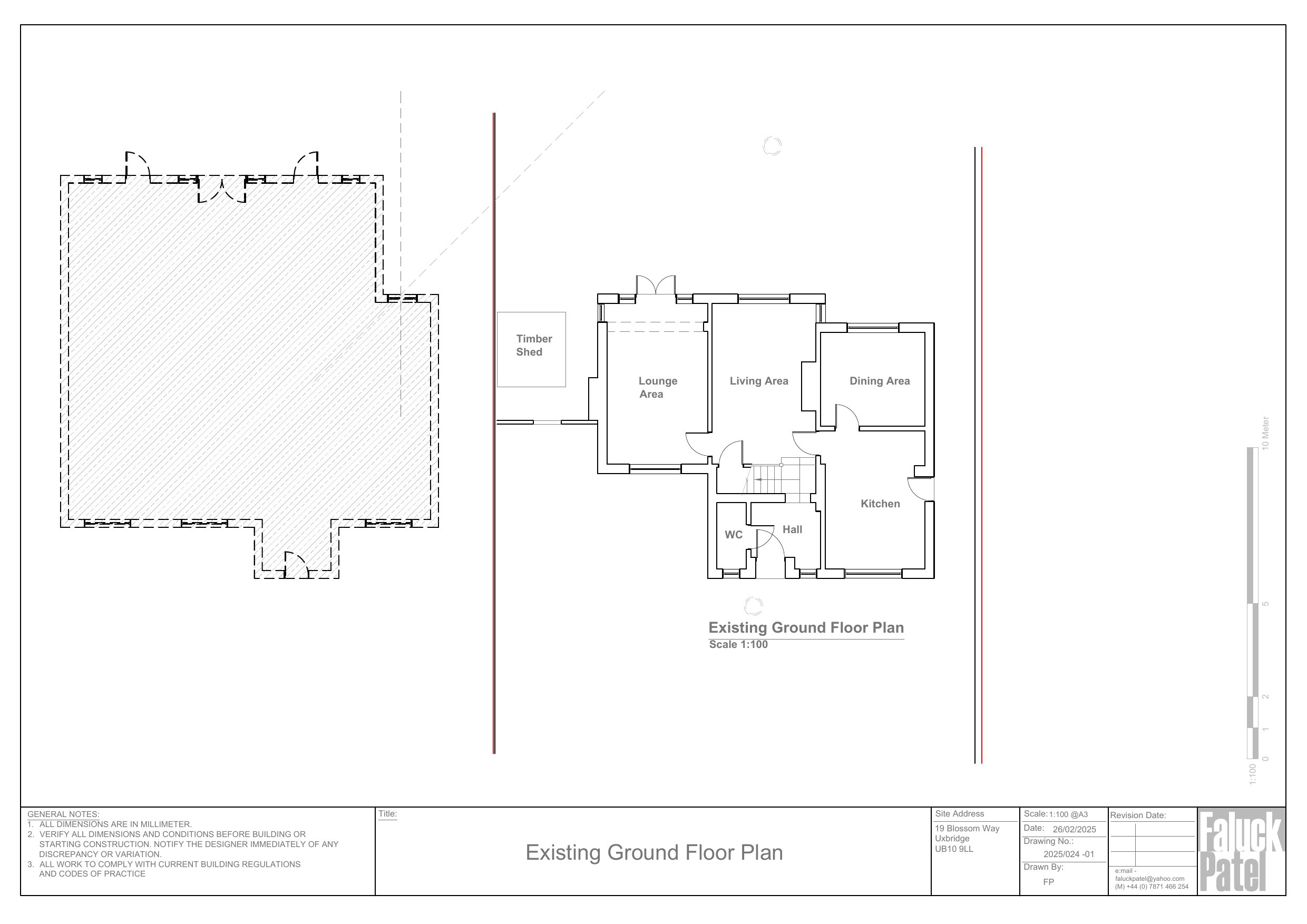
House extension
Received
27 Feb 2025
New homes
0
Full proposal
Erection of a part single part double storey front, side and rear extension with amendments to front porch (amended description)
Documents
Have your say
Your comment matters. Councils must consider every representation that raises material planning considerations.