← London Borough of Hillingdon

Status

Approval House extension
Received
20 Jan 2025
New homes
0

Summary

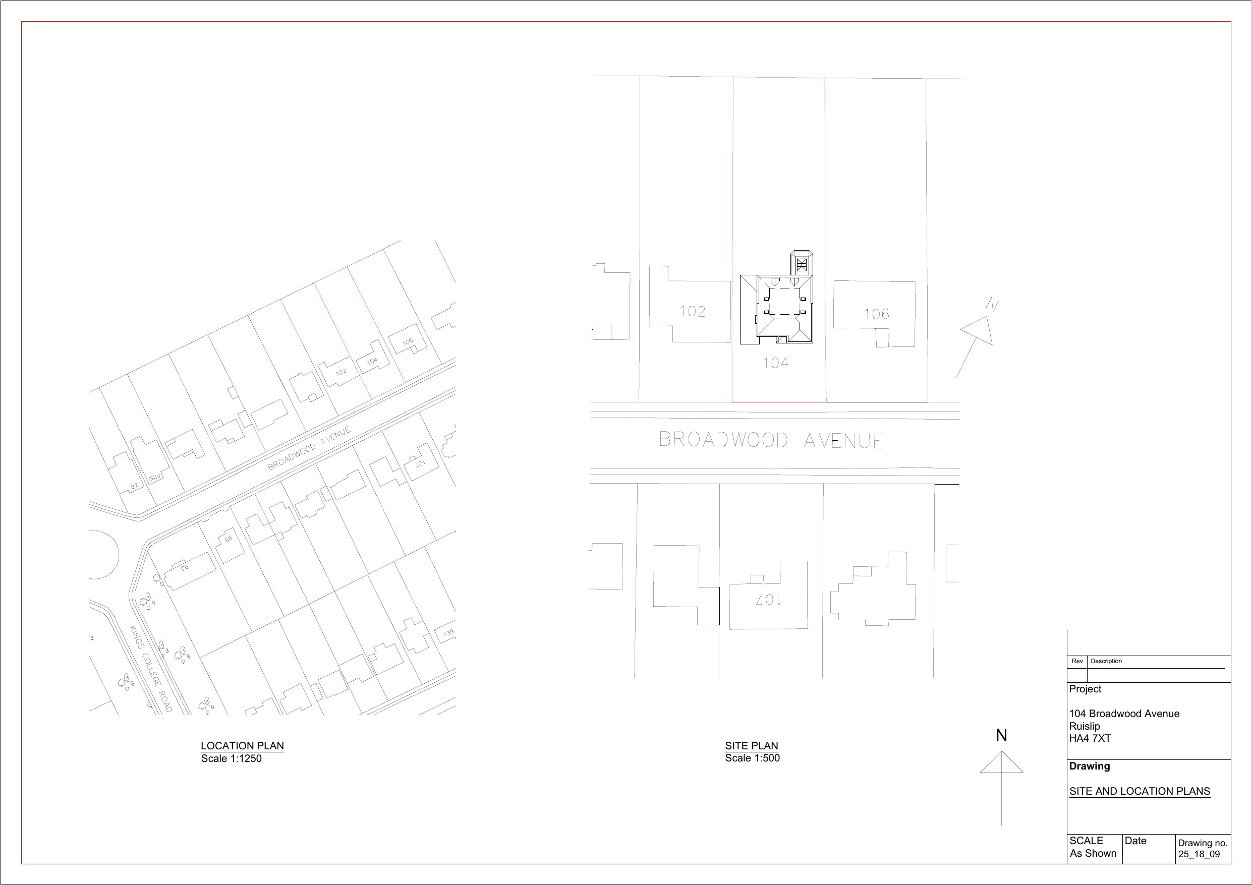
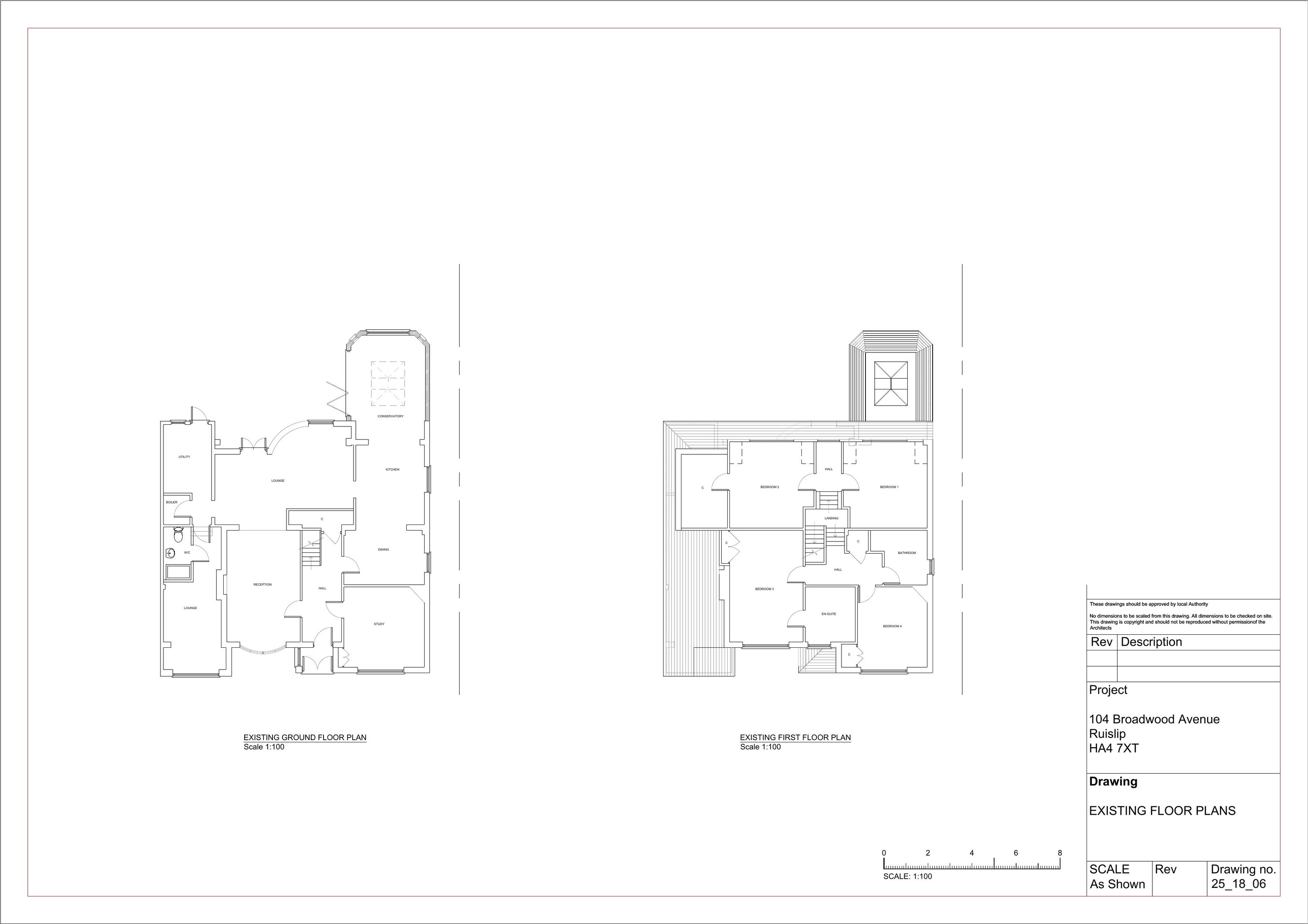
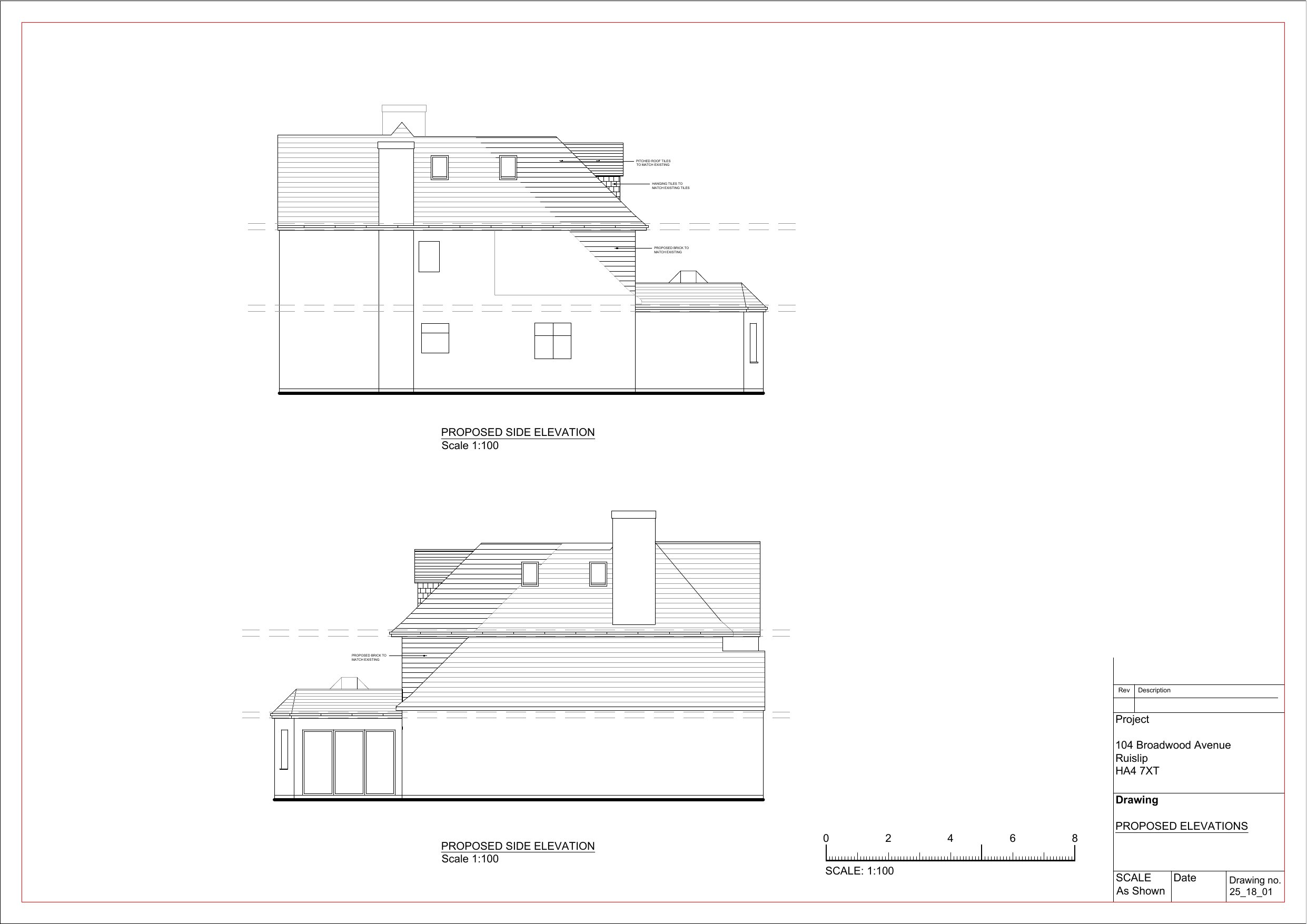
Rear infill and first-floor rear extensions, roofspace conversion with two rear dormers and four side rooflights.

Full proposal

Erection of a single storey infill extension to the rear, a first floor rear extension, conversion of roof space to habitable use to include 2no. rear facing dormers and 4no. side facing roof lights, and amendments to fenestration.

Documents

Document
Archived · Original link
Document
Archived · Original link
Document
Archived · Original link
Document
Archived · Original link
Document
Archived · Original link
Document
Archived · Original link
Document
Archived · Original link
Document
Archived · Original link
Document
Archived · Original link
Document
Archived · Original link

Have your say

Your comment matters. Councils must consider every representation that raises material planning considerations.

Write a comment