← London Borough of Hillingdon

Status

Approval House extension
Received
02 May 2025
New homes
0

Full proposal

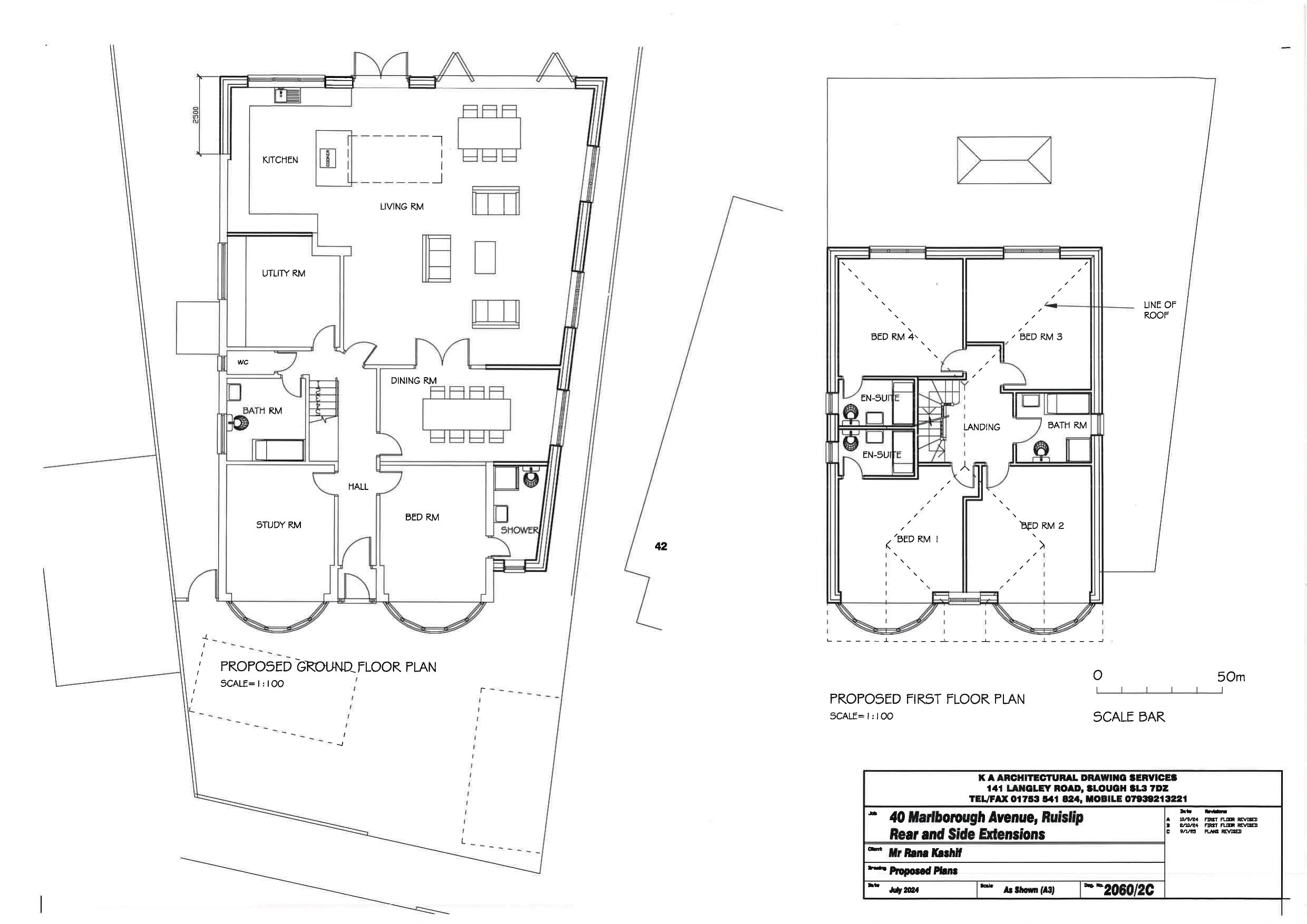
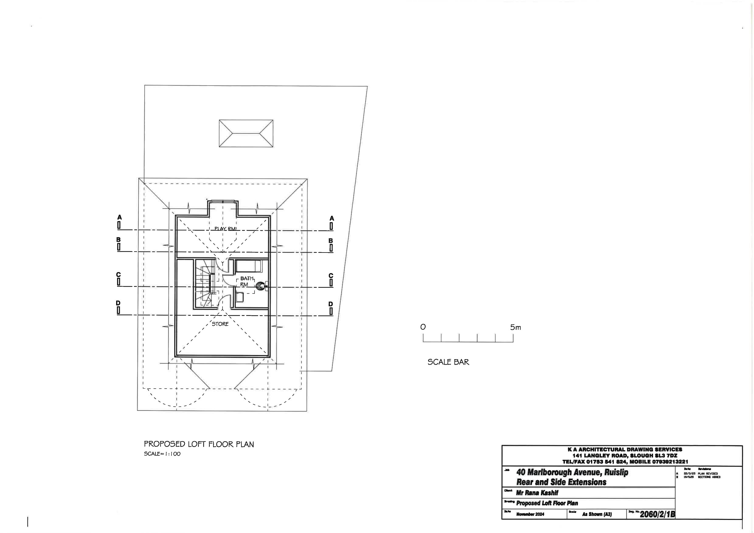
Erection of first floor and loft extension to an existing bungalow with a hipped roof and construction of one rear dormer following the erection of a single-storey rear and side extension following the demolition of an existing store and garage.

Documents

Document
Archived · Original link
Document
Archived · Original link
Document
Archived · Original link
Document
Archived · Original link
Document
Archived · Original link
Document
Archived · Original link

Have your say

Your comment matters. Councils must consider every representation that raises material planning considerations.

Write a comment