← Back to London Borough of Hillingdon
Application
28177/APP/2025/200
London Borough of Hillingdon · OCELLA
Status
Approval
House extension
Received
28 Jan 2025
New dwellings
0
What you can do
Take Action
Make your voice heard. Authorities need to hear from people who support new homes.
Summary
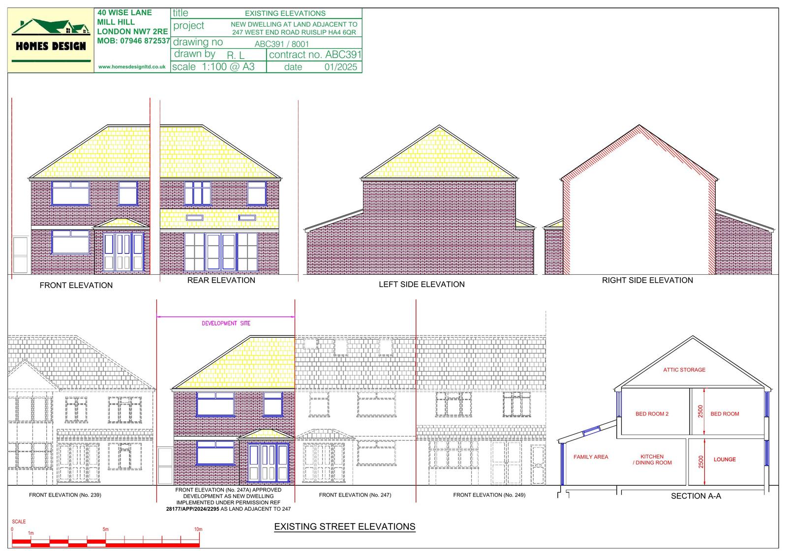
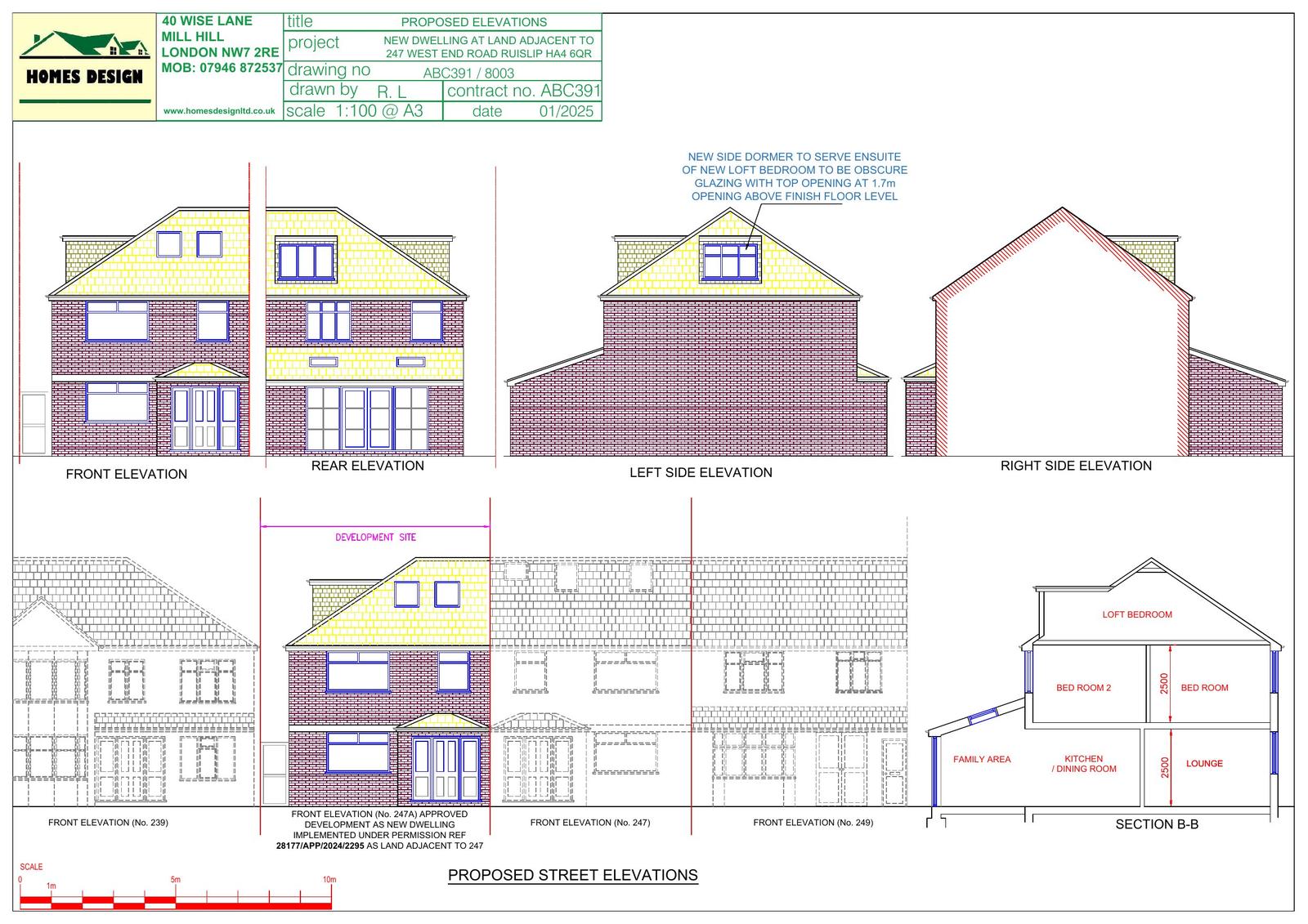
Conversion of roof space to habitable use with rear and side dormers and rooflights.
Full Proposal
Conversion of roof space to habitable use, including the construction of one rear dormer and one side dormer and the installation of two front roof lights
Detail pages
- View live detail on council site
- No archived detail page available.
Documents
APPLICATION FORM
Document
Not downloaded
· Council link
BLOCK PLAN
Document
Not downloaded
· Council link
DECISION NOTICE
Document
Not downloaded
· Council link
DESIGN AND ACCESS STATEMENT
Document
Not downloaded
· Council link
EXISTING ELEVATIONS
Document
Not downloaded
· Council link
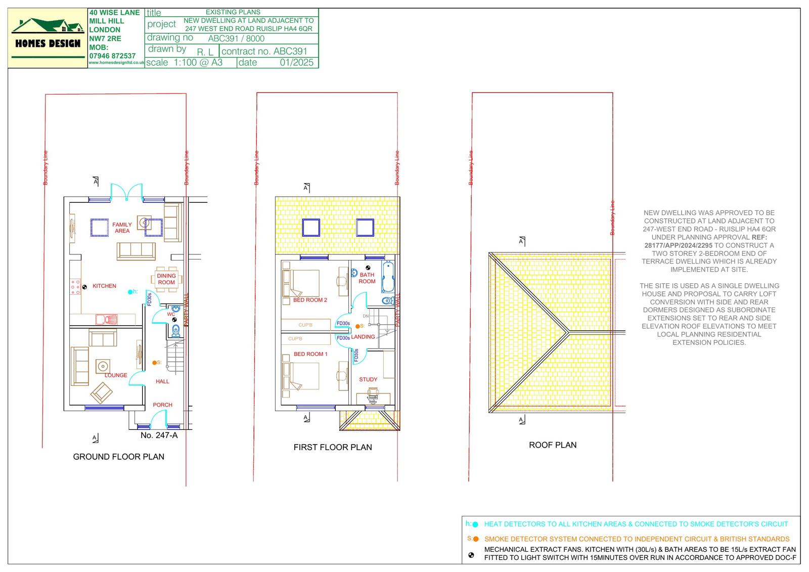
EXISTING FLOOR PLANS
Document
Not downloaded
· Council link
LOCATION PLAN
Document
Not downloaded
· Council link
OFFICERS REPORTS
Document
Not downloaded
· Council link
PROPOSED ELEVATIONS
Document
Not downloaded
· Council link
PROPOSED FLOOR PLANS
Document
Archived copy
· Council link
SUPPORTING INFORMATION
Document
Not downloaded
· Council link
SUPPORTING INFORMATION
Document
Not downloaded
· Council link
SUPPORTING INFORMATION
Document
Not downloaded
· Council link