← London Borough of Hillingdon

Status

Approval New housing
Received
31 May 2025
New homes
1

Summary

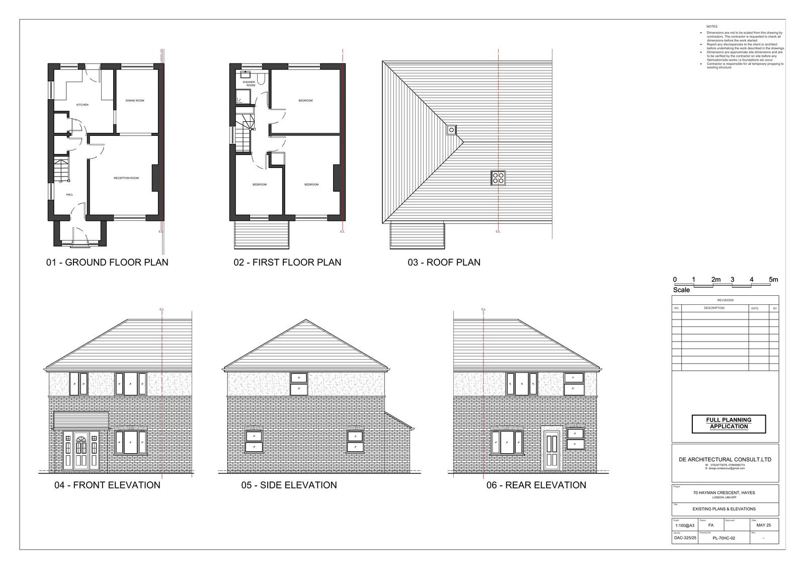
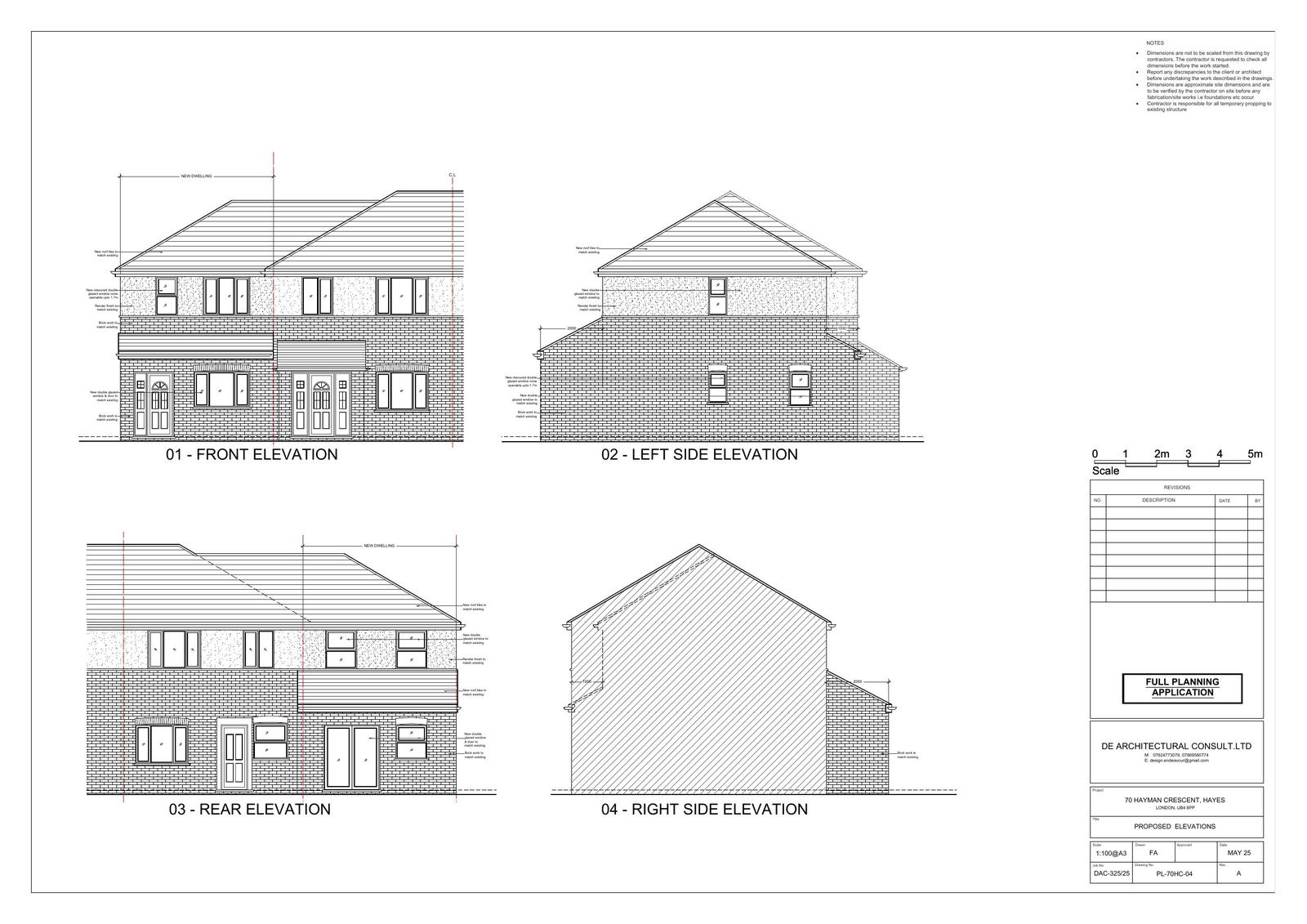
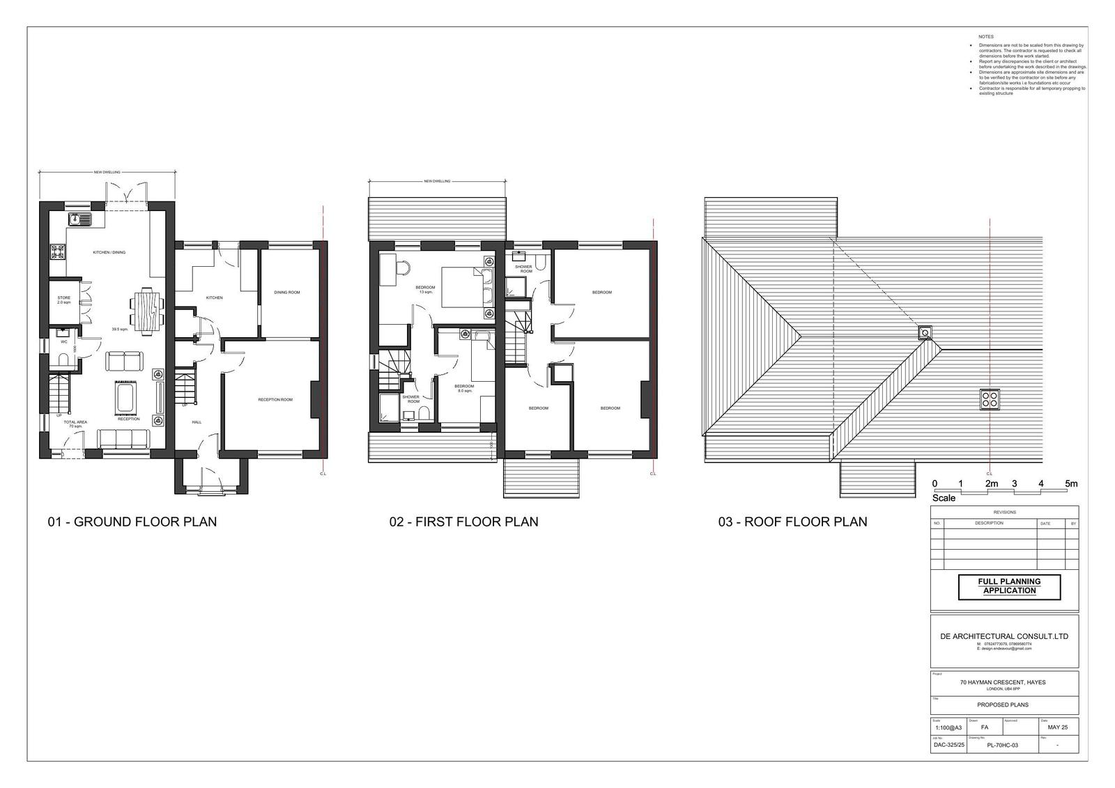
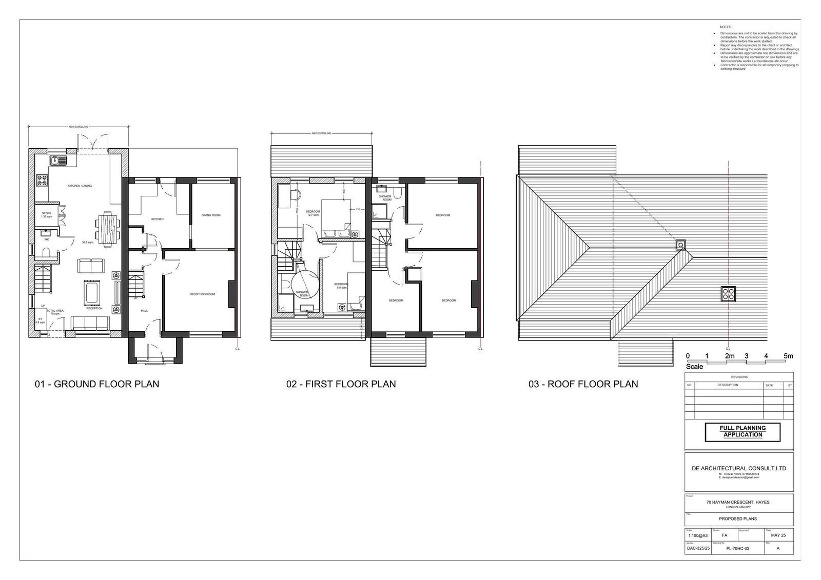
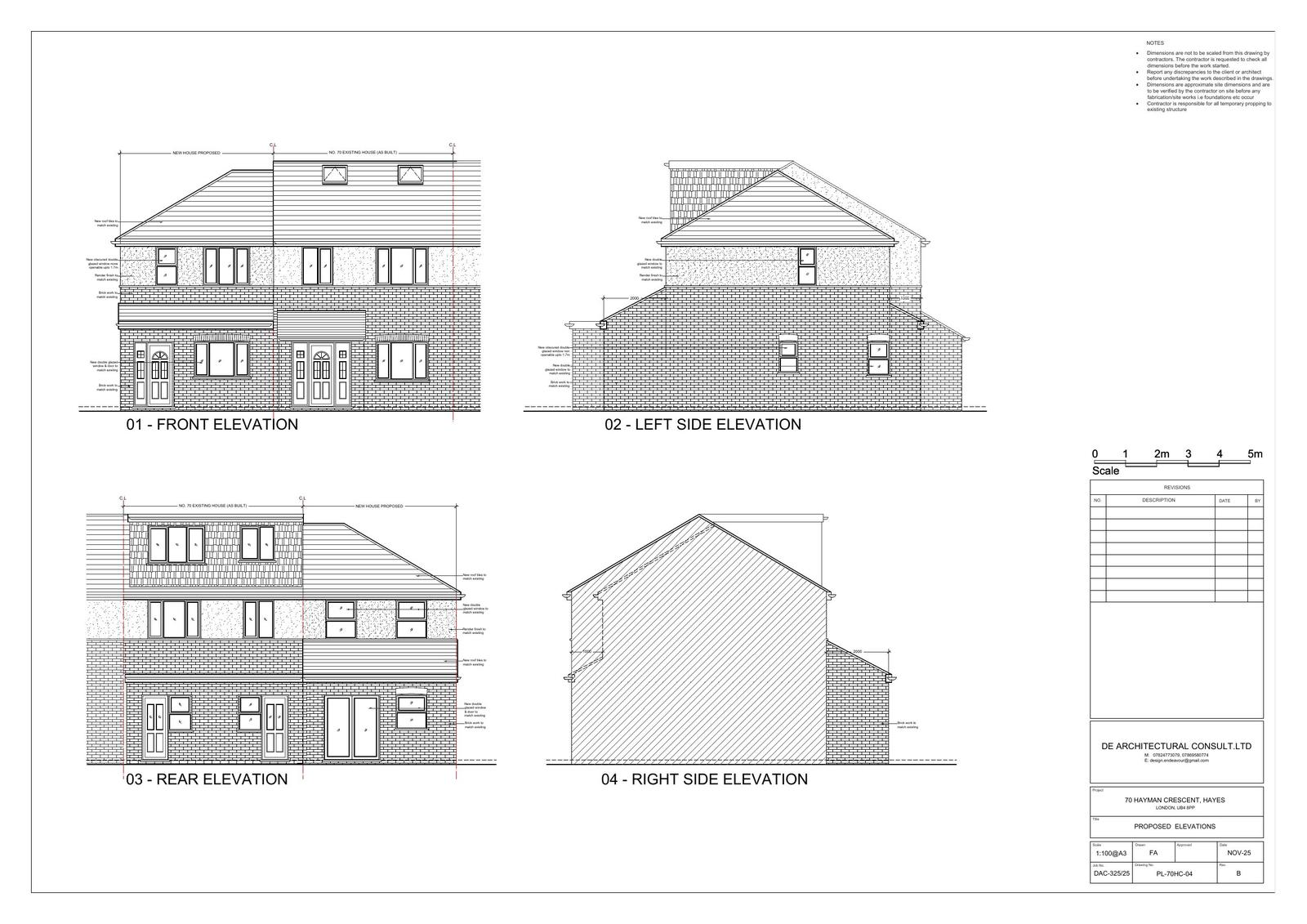
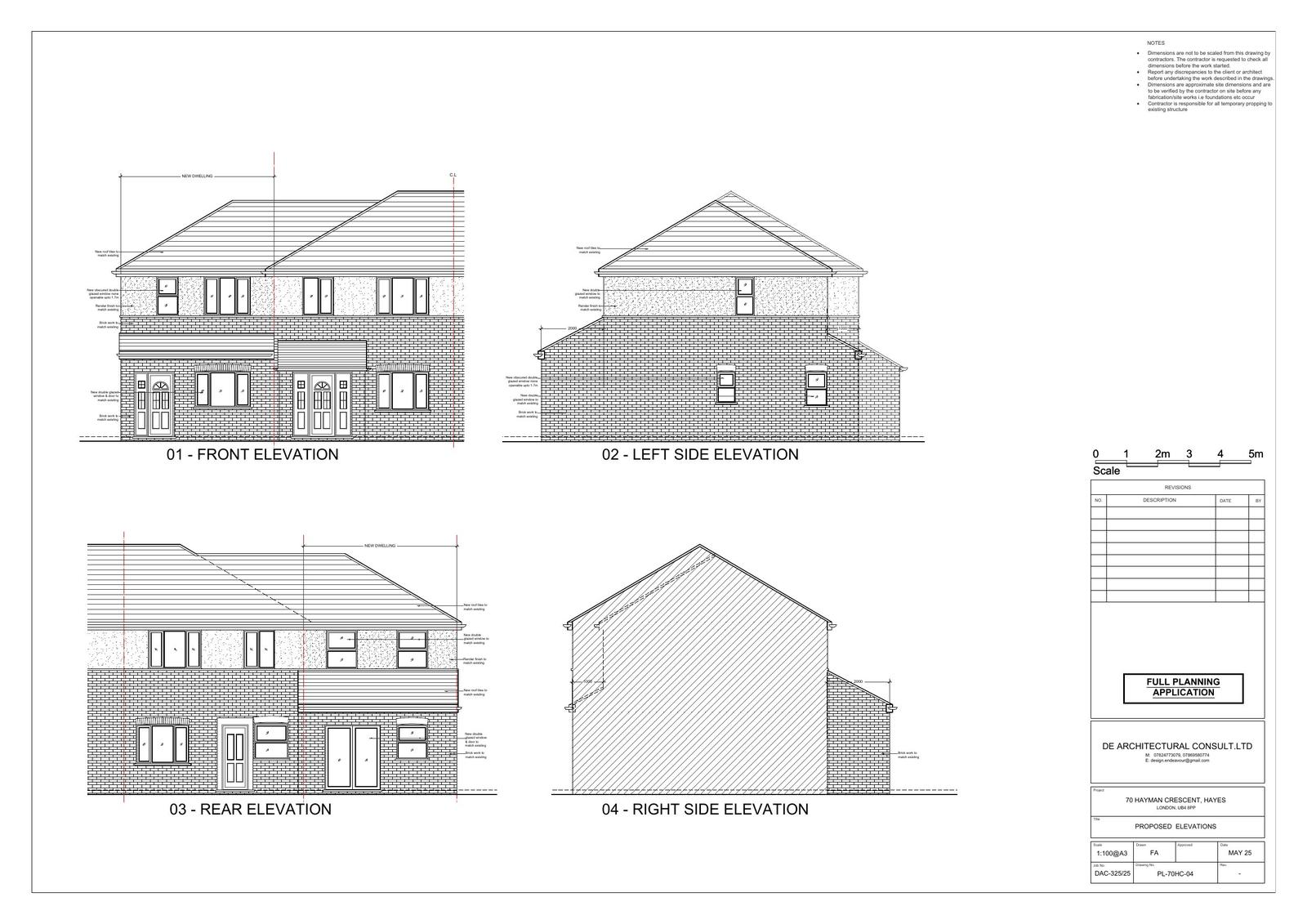
Erection of a new two‑storey 2‑bed dwelling with parking, amenity space and refuse area.

Full proposal

Erection of a new two storey 2-bedroom dwelling, with associated amenity space, parking and refuse area.

Documents

Document
Archived · Original link
Document
Archived · Original link
Document
Archived · Original link
Document
Archived · Original link
Document
Archived · Original link
Document
Archived · Original link
Document
Archived · Original link
Document
Archived · Original link
Document
Archived · Original link
Document
Archived · Original link
Document
Archived · Original link
Document
Archived · Original link
Document
Archived · Original link
Document
Archived · Original link
Document
Archived · Original link
Document
Archived · Original link
Document
Archived · Original link
Document
Archived · Original link
Document
Archived · Original link

Have your say

Your comment matters. Councils must consider every representation that raises material planning considerations.

Write a comment