← London Borough of Hillingdon

Status

Approval House extension
Received
28 Mar 2025
New homes
0

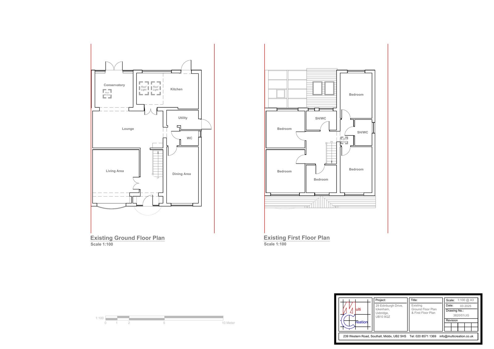
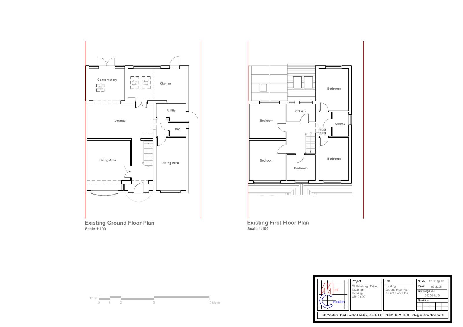
Full proposal

Conversion of roof space to habitable use to include the construction of a rear dormer with Juliette balcony and installation of three front roof lights.

Documents

Document
Archived · Original link
Document
Archived · Original link
Document
Archived · Original link
Document
Archived · Original link
Document
Archived · Original link

Have your say

Your comment matters. Councils must consider every representation that raises material planning considerations.

Write a comment