← London Borough of Hillingdon

Status

Approval House extension
Received
27 Feb 2025
New homes
0

Full proposal

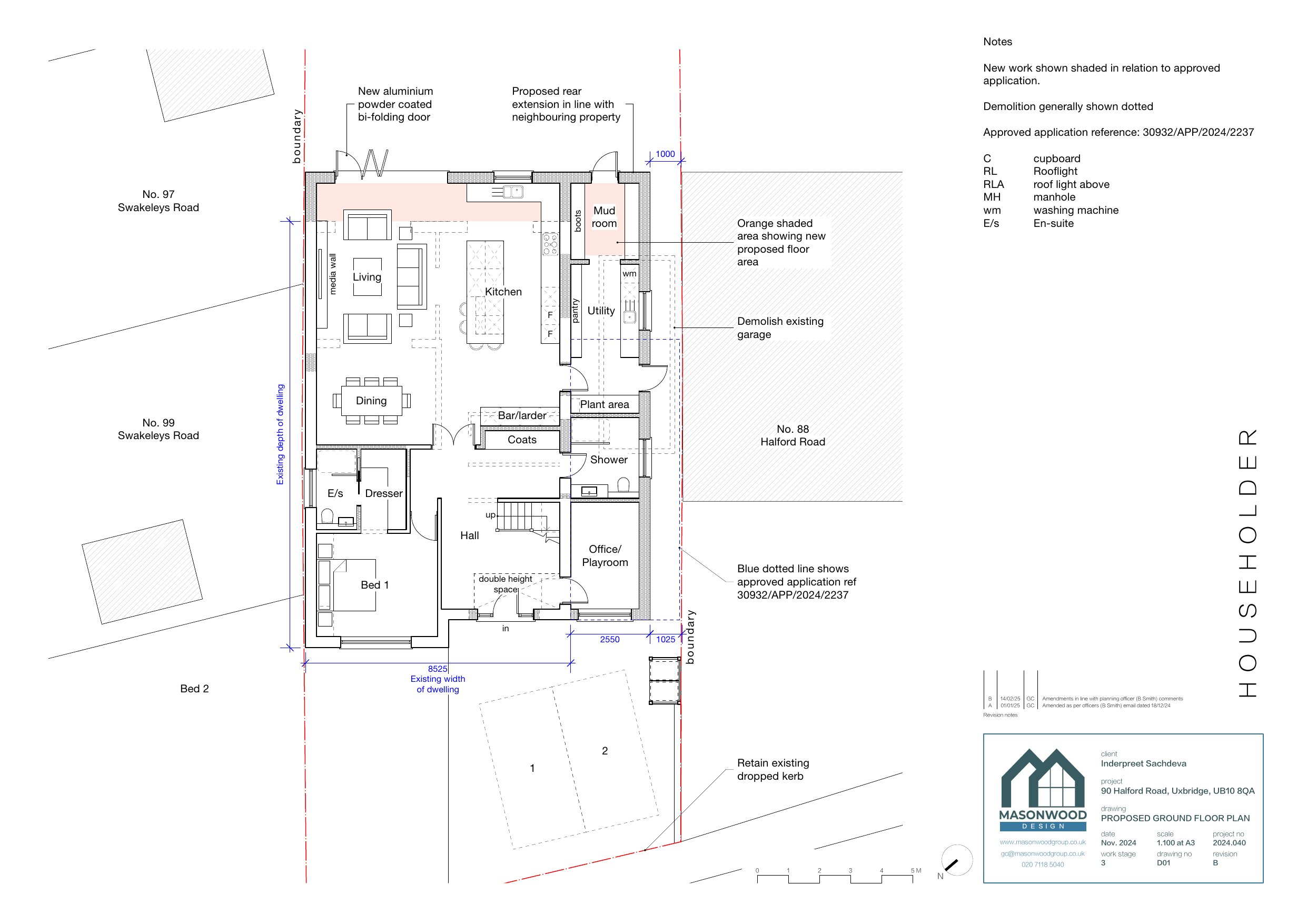
Erection of a single storey to the side and rear. Extension and conversion of roof space to habitable use to include extension of existing roof over rear extension, 4 no. side facing dormers.

Documents

Document
Archived · Original link
Document
Archived · Original link
Document
Archived · Original link
Document
Archived · Original link
Document
Archived · Original link
Document
Archived · Original link
Document
Archived · Original link

Have your say

Your comment matters. Councils must consider every representation that raises material planning considerations.

Write a comment