← London Borough of Hillingdon

Status

Approval House extension
Received
14 Feb 2025
New homes
0

Full proposal

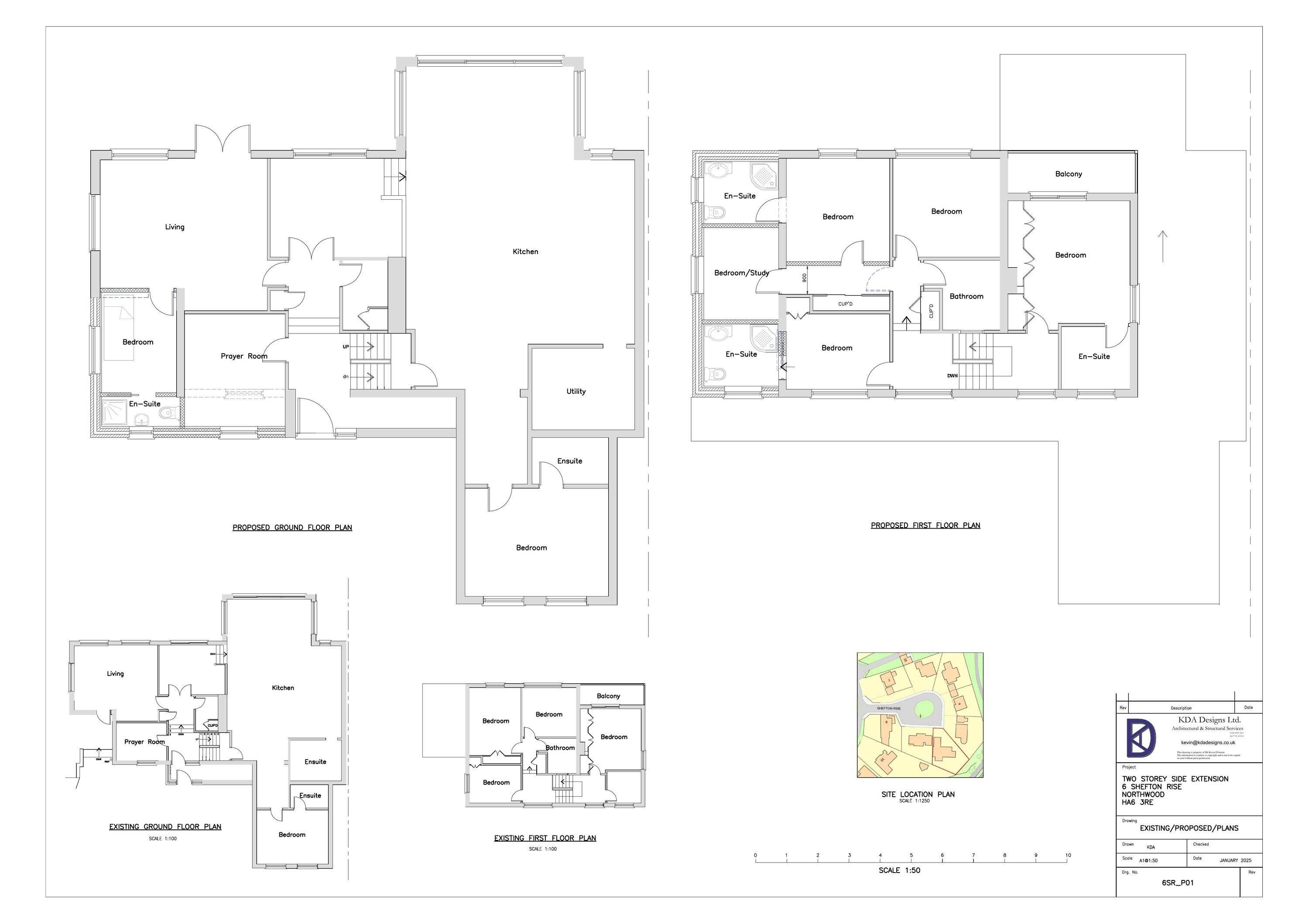
Erection of a part single part two storey front and side extension.

Documents

Document
Archived · Original link
Document
Archived · Original link
Document
Archived · Original link
Document
Archived · Original link

Have your say

Your comment matters. Councils must consider every representation that raises material planning considerations.

Write a comment