← London Borough of Hillingdon

Status

Approval House extension
Received
23 May 2025
New homes
0

Summary

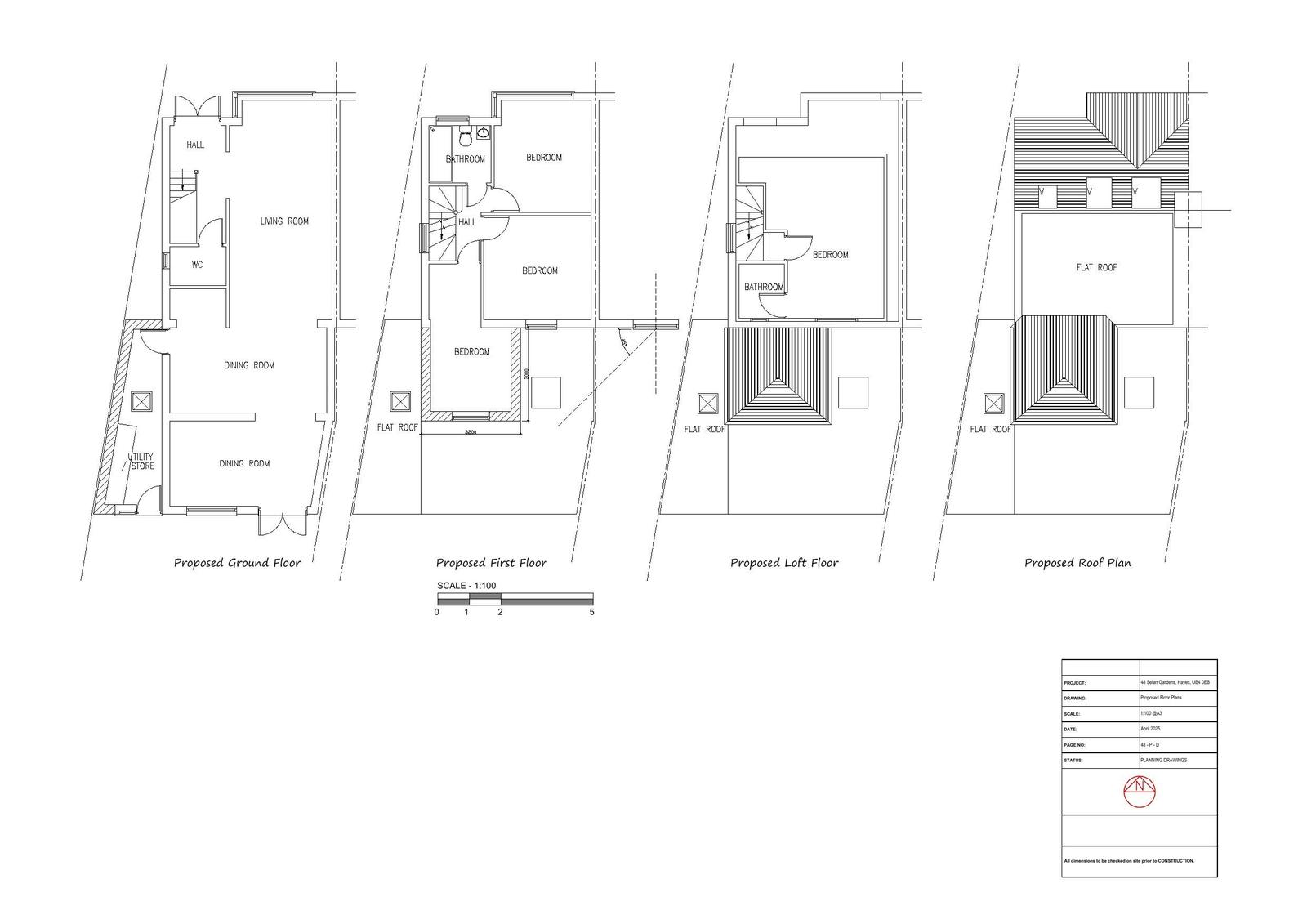
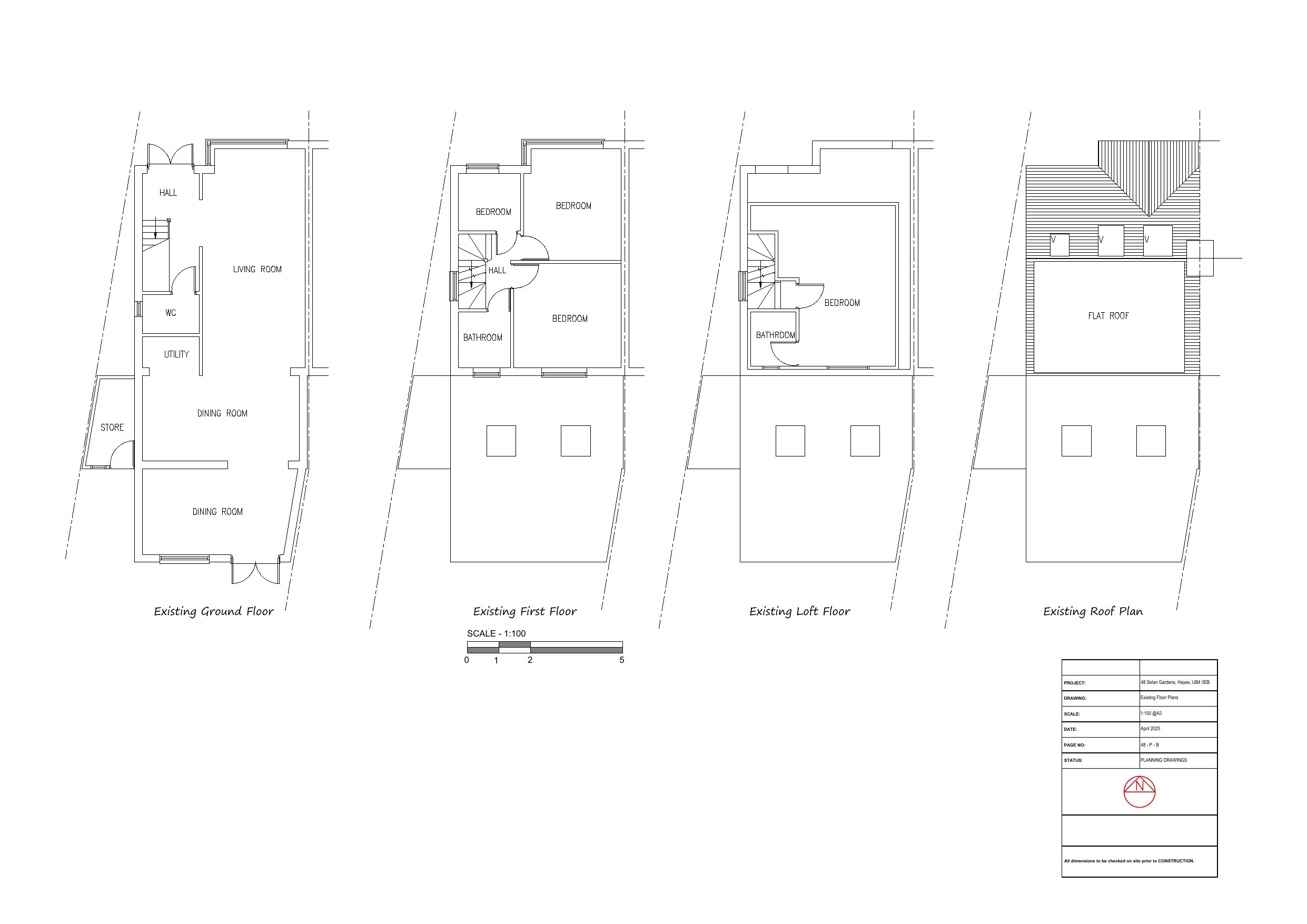
First floor rear extension and single storey side extension after demolishing side extension.

Full proposal

Erection of a first floor rear extension, and a single storey side extension, following demolition of existing side extension.

Documents

Document
Archived · Original link
Document
Archived · Original link
Document
Archived · Original link
Document
Archived · Original link
Document
Archived · Original link
Document
Archived · Original link
Document
Archived · Original link
Document
Archived · Original link

Have your say

Your comment matters. Councils must consider every representation that raises material planning considerations.

Write a comment