← Back to London Borough of Hillingdon

Status

Approval House extension
Received 13 Jan 2025
New dwellings 0

What you can do

Take Action

Make your voice heard. Authorities need to hear from people who support new homes.

Summary

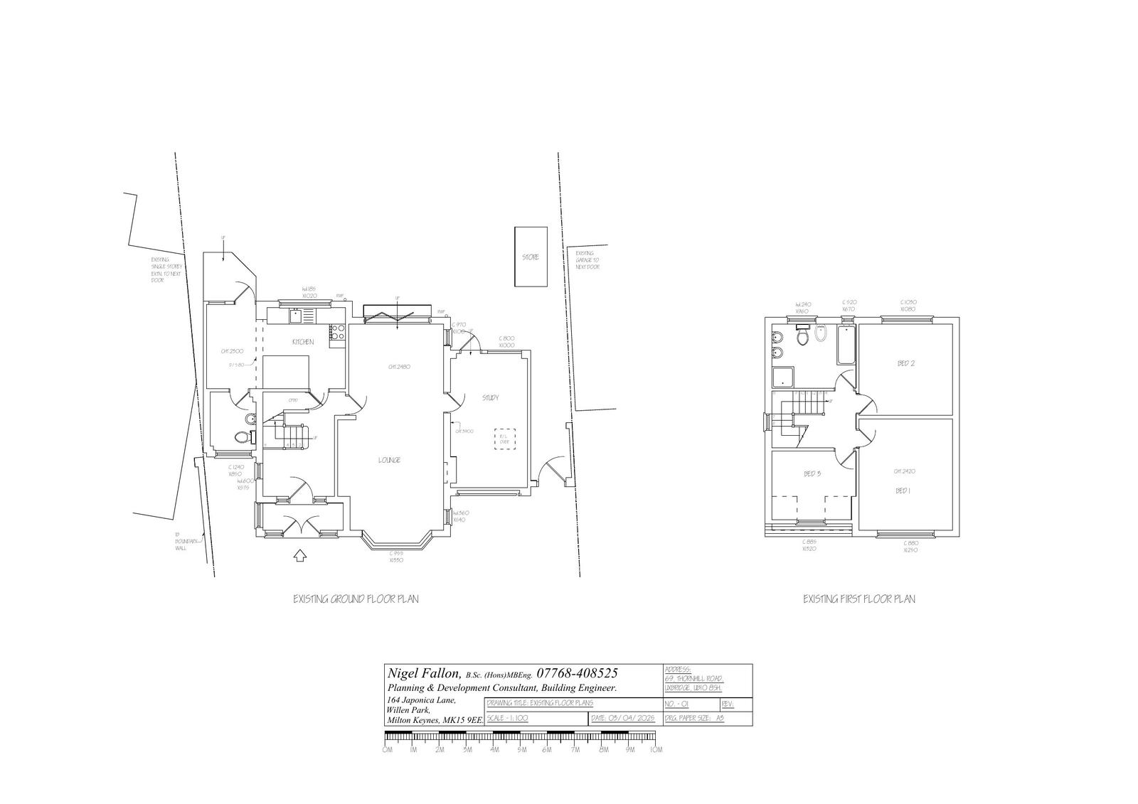
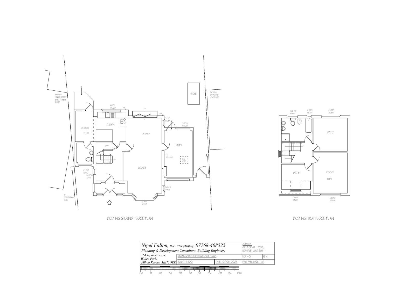
Part single- and part two-storey side and rear wraparound extension and garage conversion.

Full Proposal

Erection of a part single storey, part two storey side and rear wraparound extension, conversion of garage to habitable space including removal of garage door, rendering to the exterior walls, and replacement of existing roof tiles.

Detail pages

Documents

APPLICATION FORM
Document
Not downloaded · Council link
DECISION NOTICE
Document
Not downloaded · Council link
FLOOD AND DRAINAGE ASSESSMENT
Document
Not downloaded · Council link
LOCATION PLAN
Document
Not downloaded · Council link
OFFICERS REPORTS
Document
Not downloaded · Council link
PHOTOGRAPHS (Supporting info)
Document
Not downloaded · Council link
PLAN
Document
Not downloaded · Council link
PLAN AMENDED
Document
Not downloaded · Council link