← Back to London Borough of Hillingdon
Application
33956/APP/2025/146
London Borough of Hillingdon · OCELLA
Status
Approval
House extension
Received
21 Jan 2025
New dwellings
0
What you can do
Take Action
Make your voice heard. Authorities need to hear from people who support new homes.
Summary
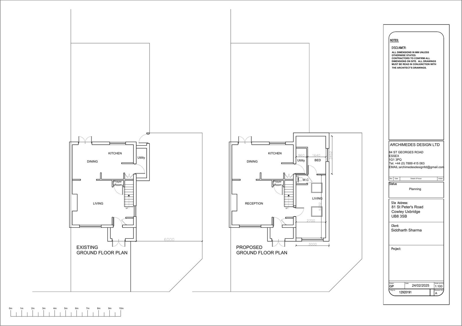
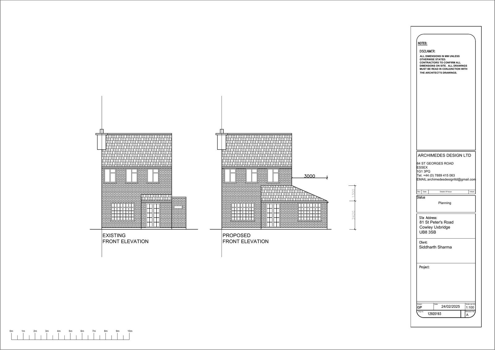
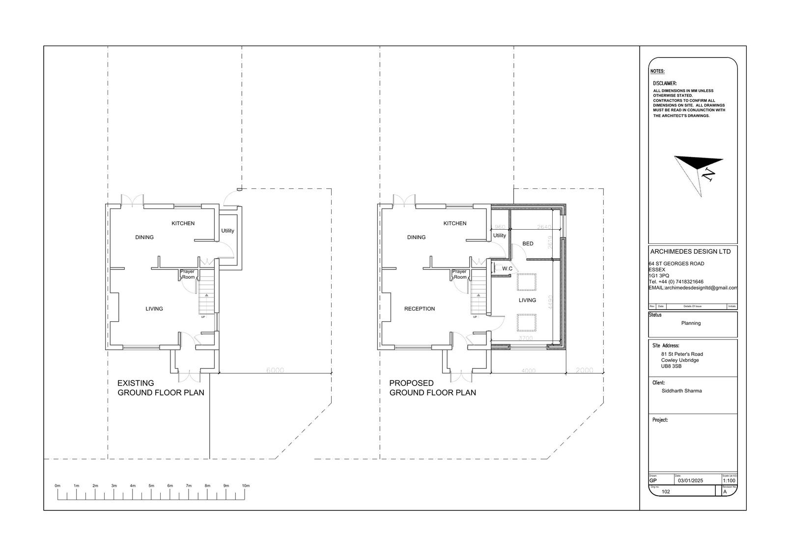
Single storey extension to side, front and rear.
Full Proposal
Erection of a single storey extension to the side, front and rear.
Detail pages
- View live detail on council site
- No archived detail page available.
Documents
APPLICATION FORM
Document
Not downloaded
· Council link
DECISION NOTICE
Document
Not downloaded
· Council link
DESIGN AND ACCESS STATEMENT
Document
Not downloaded
· Council link
LOCATION PLAN
Document
Not downloaded
· Council link
OFFICERS REPORTS
Document
Not downloaded
· Council link
PLAN AMENDED
Document
Not downloaded
· Council link
PROPOSED AND EXISITNG SITE LAYOUT PLAN
Document
Not downloaded
· Council link
PROPOSED AND EXISTING FRONT ELEVATIONS AMENDED
Document
Not downloaded
· Council link
PROPOSED AND EXISTING REAR ELEVATIONS AMENDED
Document
Not downloaded
· Council link
PROPOSED AND EXISTING ROOF PLANS AMENDED
Document
Not downloaded
· Council link
PROPOSED AND EXISTING SIDE ELEVATIONS AMENDED
Document
Not downloaded
· Council link
PROPOSED AND EXISTING SIDE ELEVATIONS AMENDED
Document
Not downloaded
· Council link
SUPPORTING INFORMATION
Document
Not downloaded
· Council link