← Back to London Borough of Hillingdon

Status

Refusal New housing
Received 28 Jan 2025
New dwellings 1

What you can do

Take Action

Make your voice heard. Authorities need to hear from people who support new homes.

Summary

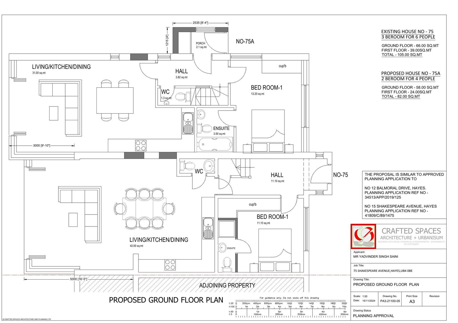
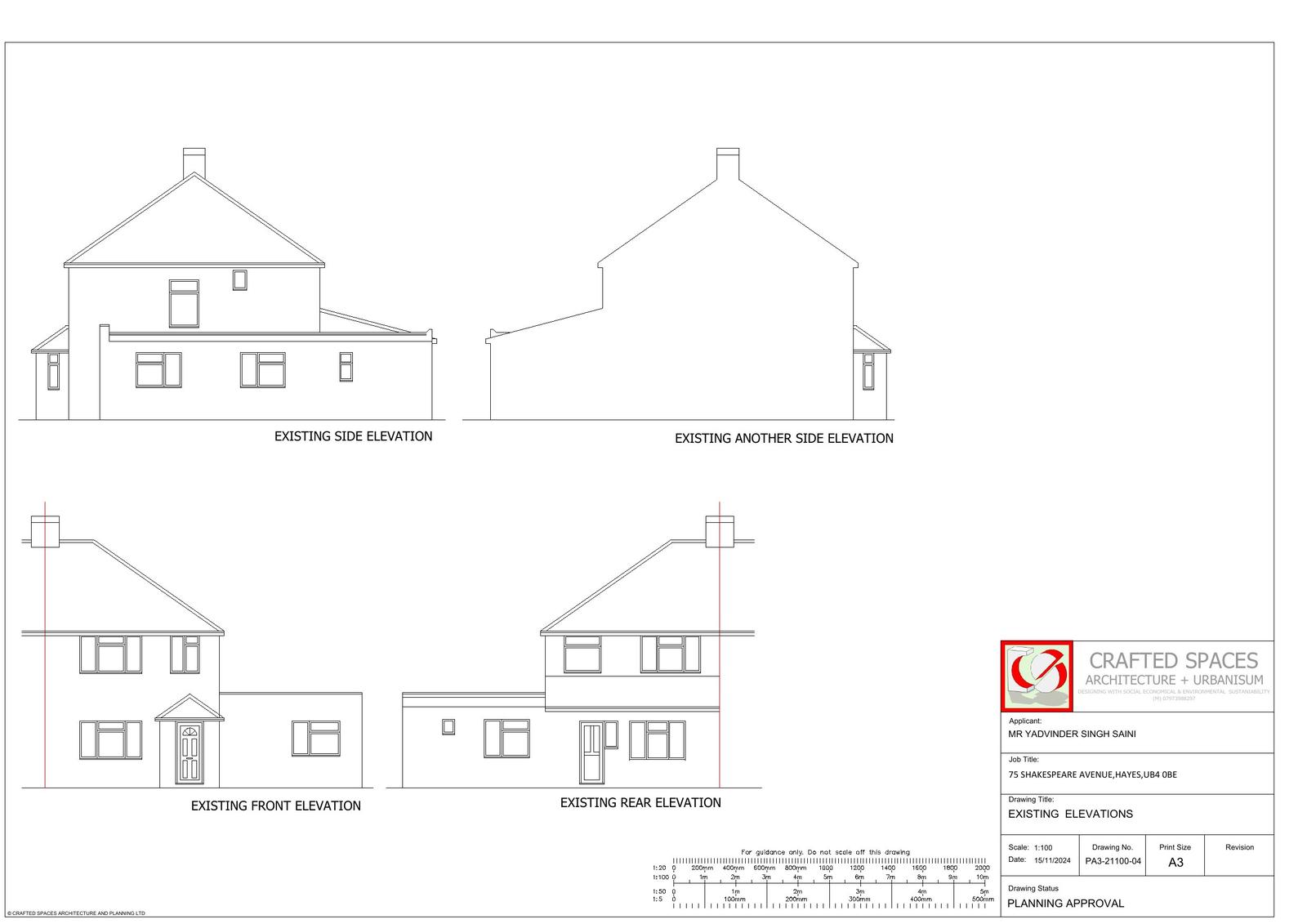
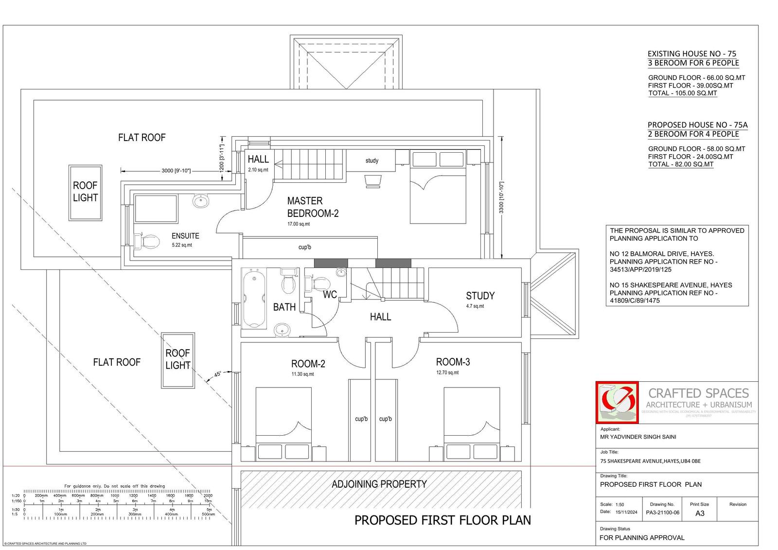
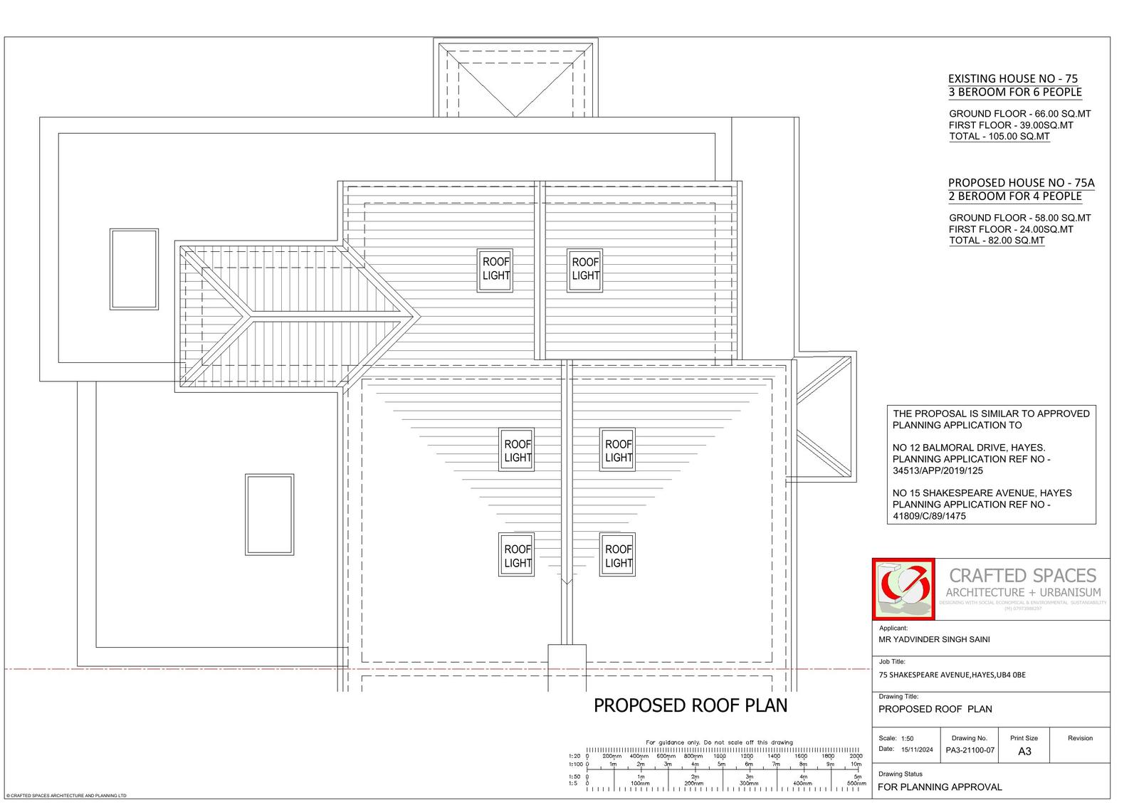
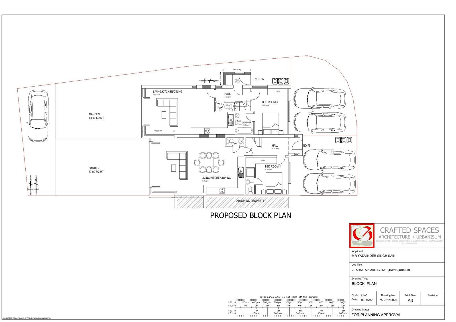
Erection of a two-bedroom dwelling with parking and amenity space, plus roof conversion.

Full Proposal

Erection of a 2-bedroom dwelling and associated car parking and amenity space to the side of the existing dwelling involving a part single storey, part double storey extension to the front, side and rear of the dwelling and conversion of roof space to habitable use to include conversion from hip to gable end, 3 front and 3 rear facing roof lights.

Detail pages

Documents

APPLICATION FORM
Document
Not downloaded · Council link
BLOCK PLAN
Document
Not downloaded · Council link
DECISION NOTICE
Document
Not downloaded · Council link
EXISTING ELEVATIONS
Document
Not downloaded · Council link
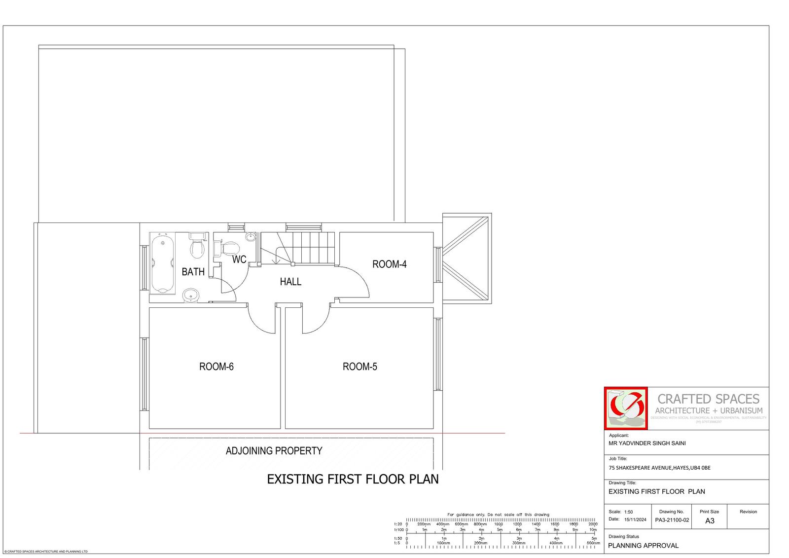
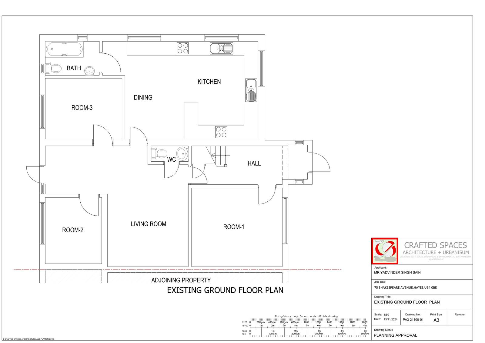
EXISTING FLOOR PLANS
Document
Not downloaded · Council link
EXISTING FLOOR PLANS
Document
Not downloaded · Council link
EXISTING ROOF PLANS
Document
Not downloaded · Council link
LOCATION PLAN
Document
Not downloaded · Council link
OFFICERS REPORTS
Document
Not downloaded · Council link
PROPOSED ELEVATIONS
Document
Not downloaded · Council link
PROPOSED FLOOR PLANS
Document
Archived copy · Council link
PROPOSED FLOOR PLANS
Document
Archived copy · Council link
PROPOSED ROOF PLANS
Document
Not downloaded · Council link